无锡奥体潮鸣售楼处电话→地址→户型→价格→2025无锡奥体潮鸣楼盘详情→无锡奥体潮鸣最新销售动态
扫描到手机,新闻随时看
扫一扫,用手机看文章
更加方便分享给朋友
无锡奥体潮鸣售楼处电话✅:400-116-7720转777
✅无锡奥体潮鸣营销中心电话☎:400-116-7720转777【营销中心已认证】🥇🥇
✨无锡奥体潮鸣售楼处电话✅:400-116-7720转777
无锡奥体潮鸣营销中心电话☎:400-116-7720转777【营销中心已认证】🥇🥇
奥体潮鸣的每一次出手,都是对无锡楼市的一次颠覆;每一次出场,都能成为一场典型性示范!
2023年,奥体潮鸣一登场,就因超流体立面一炮而红,首开劲销12.8亿,118套房源被一抢而定;(销售金额数据来源于案场统计)
2024年,建面约225㎡湖景大平层样板间公开,“太湖宽屏取景器”有了实质展现,也是这一年,奥体潮鸣以18.66亿的傲人业绩,稳居无锡市区商品住宅项目销售金额TOP1;(排名数据来自克而瑞无锡)
2025年,又是奥体潮鸣,开启「潮鸣荟5T生活服务体系」,构建垂直领域的高净值圈层社交,游艇、骑行、高尔夫3大首发社群,开启无锡圈层生活模板。

奥体潮鸣实景图
就在近期,奥体潮鸣建面约278㎡全新大平层样板间开放。
十字中轴仪式玄关、全景舱端厅、270°云幕视野、三联宽屏阳台……多重buff叠加,项目再次凭借超级硬核的产品力,实力出圈,重塑奥体板块平层居住体验新高度!
建面约278㎡样板间实景(图片所示窗外景色为效果合成,具体以实际呈现为准)

不论市场如何跌宕起伏,唯有不断创新,突破上限,才能穿越周期成为经典。
奥体潮鸣全新公开的建面约278㎡户型,通过权利礼序、空间尺度、全景视野、代际包容、居住实用性五维升舱,实现全新突破的高级表达。

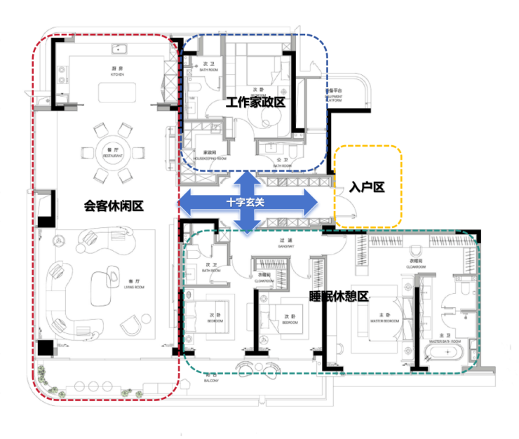
★ 权利礼序的升舱
两梯两户的设计,形成独立电梯厅的归家仪制;打开门,即是欧美豪宅、宫廷专属的“十字圆厅”。
它以对称轴线和秩序之美,将古西方官邸的恢弘以及家族荣耀的象征搬到太湖畔,加持奥体潮鸣业主的家族品味。
“十字圆厅”不仅赋予了该户型殿堂级的归家礼序,它还将空间分为会客休闲区、工作家政区、睡眠休憩区、入户区,在有序隔离的同时,又形成“礼仪屏障”的效果。

★ 空间尺度的升舱
整个户型南向面宽约19.9米,搭配约3.15米的层高,构建出城市精英专属的、悬浮于太湖之上的环幕行宫。
经典LDKB一体化生活轴线,超100㎡的公区内,聚合宽屏阳台、会客空间、社交空间、私宴厅、中西厨等超奢生活场景于一体,精准链接超级「顶豪」的生活需求,构建品味、格调皆在线的私属社交主场。
建面约278㎡样板间实景(图片所示窗外景色为效果合成,具体以实际呈现为准)
值得注意的是这个户型对于厨房、餐厅空间的重视。
开阔的U型厨房内,中西双厨皆有各自场域;方形餐厅,容得下8人圆桌,甚至是10人圆桌,无论是商务伙伴的远见卓识,还是家人之间的亲密交流,都在此从容承载。
建面约278㎡样板间实景(图片所示窗外景色为效果合成,具体以实际呈现为准)
★ 全景视野的升舱
无视野,不豪宅。
奥体潮鸣建面约278㎡户型以约12.9米宽的三联阳台+三面巨幅玻璃的端厅全景舱设计,消隐空间边界,形成270°云幕视野。
高楼层可俯瞰一城繁华,让太湖波光与城市地标成为业主独属的天际私藏;低楼层则可感受窗外中轴景观与室内互动的舒适感,实现真正的“全面屏”窗景。
建面约278㎡样板间实景(图片所示窗外景色为效果合成,具体以实际呈现为准)
★ 代际包容的升舱
当传统豪宅仍在用“大”标榜卧室价值时,奥体潮鸣建面约278㎡户型已经完成了卧室从“睡眠容器”到“生活能量场”的基因重构。
四房设计,灵活适配家族生命周期的变化,让住宅成为凝聚家族的空间纽带;其中三个卧室为套房设计,代际的独立分区,尊重每一位家人的“私密领地”。
建面约278㎡样板间实景(图片所示窗外景色为效果合成,具体以实际呈现为准)
在主人居住的尊贵性上,奥体潮鸣专门打造出一套相当于小型公寓的主卧。
以2米宽床为核心的睡眠区、可放置数百件衣物的奢阔衣帽间、配置双台盆+独立浴缸+淋浴间+马桶区的四分制主卫,南向落地窗畔的赏景区,共同构筑出一个融合休憩、观景、休闲等多维场景的“生活能量场”。
建面约278㎡样板间实景(图片所示窗外景色为效果合成,具体以实际呈现为准)
★ 居住实用性的升舱
奥体潮鸣建面约278㎡无界大宅从不是冰冷的奢美容器,它以高定精装、多维收纳,构建深入肌理的 “身心奢适系统”。
高定精装:大金(或三菱)中央空调、兰舍(或百朗)双向新风系统、威能(或博世)地暖锅炉,搭建舒适生活底色;瑞士进口劳芬(或同级别品牌)、smeg(或博士)、美国怡口(或3M)等国际一线品牌,让居所的每一处都透着低调的奢华。
建面约278㎡样板间实景-硬包样式为非交付标准(图片所示窗外景色为效果合成,具体以实际呈现为准)
多维收纳:入户处的十字玄关多柜收纳,主卧衣帽间,次卧衣帽区的预留,厨房丰沛的橱柜空间,卫生间镜柜,独立家政间等「PRO级全屋收纳」,让居住摆脱繁琐,重回纯粹、松弛。
建面约278㎡样板间实景(图片所示窗外景色为效果合成,具体以实际呈现为准)

真正的鼎级豪宅,始终要靠地段说话。放眼全球,每一座鼎豪的诞生,皆源自于对稀缺资源的占有以及对城市发展前瞻性的研判。
奥体潮鸣坐拥自然与城市的双重礼赞,它附近的每一寸土地都是城市精粹所在,具有时代引领性和不可替代性。
三万顷太湖之畔,历史在此沉淀,生态在此绵延。
项目加推的G5号楼作为一线瞰湖高层,前排为叠墅(最高7层),采光、视野几乎无遮挡。
居于此,高楼层可尽情享受大自然赋予的宁静与惬意,让业主仿佛置身于一幅水墨画卷之中;低楼层则靠近中轴景观泳池,碧波荡漾着业主的底气与胸怀。

奥体潮鸣从不止于自然中心,更立于资源核心。
奥体潮鸣周边聚合了奥体中心(在建中)、无锡国际会议中心、太湖国际博览中心、江苏首座K11 Select购物艺术中心(在建中)、无锡美术馆(在建中)等一系列高浓度资源,它是无锡对话世界的骄傲坐标,价值无可比拟。
加上无锡南站(太湖新城枢纽)(规划中)的推进,交通、商业、艺术在此相互交错、深度咬合,从而让城市顶配资源在项目附近形成“高效闭环”。

从城市维度上看,奥体潮鸣的价值答案显而易见,从产品维度上看,作为无锡唯一一个获得意大利A'设计奖的项目,它真正把“高端改善”刻进了DNA里。
超流体立面:震撼的建筑美感和视觉冲击力
如果说直线是一种理性、标准化的“工业美”,那么,曲线则是轻盈中带着律动的一种“高级美”。
奥体潮鸣将太湖波光织入建筑肌理,以曲线赋予建筑更有生命力的外观。
流畅的转角弧面玻璃+超高窗墙比,让建筑宛若一个“宽屏取景器”一般,将城市地标、太湖美景框为生活背景,这带来的不仅是奢华的视觉体验感,更是城市峯层的「身份密码」。
奥体潮鸣实景图
超星级会所:拥抱艺术,回归生活
奥体潮鸣约2000㎡的超星级会所,打破传统,与未来对话,通过艺术和诗意,展现当代瑧品生活方式,塑造业主在空间中的内在精神联结与情感共鸣。
会所内,约600㎡立体无边恒温泳池、健身房、瑜伽房、私宴厅、社区图书馆等多功能空间,汇聚全球高端生活方式,创造愉悦生活体验与归属感。
奥体潮鸣实景图
主题架空层:重新定义高端社区生活
奥体潮鸣的高层一楼为全架空设计,为业主提供遮风避雨的公共社交场所,开辟“家外之家”的生活延展。
奥体潮鸣实景图
独立又各有特色的主题,触达业主不同的核心需求,这种对空间情绪价值的深度挖掘,打破了传统架空层的功能边界,使建筑灰空间转化为承载情感记忆的「生活剧场」。
随着业主的时间释放,不仅能为社区生活增添无尽的生机与活力,还能高效汇聚同频圈层,形成圈层社交舱,进而推动人脉、乃至事业的发展。
奥体潮鸣实景图

多维高配是奥体潮鸣的真实写照。
在此基础上,项目不断进行实景兑现,从超星级会所、奢华地库、实体样板间,到叠墅外立面、高层外立面,到部分架空层、景观,业主当下已经可以体验到部分未来的生活场景。
此次全新加推的G5号楼建面约278㎡新品,前排为别墅,采光几乎无遮挡,高层楼可直瞰太湖;加上项目紧邻中央景观泳池,靠近奥体中心,黄金位置,每一席,都珍贵!
无锡奥体潮鸣售楼处电话✅:400-116-7720转777
✅无锡奥体潮鸣营销中心电话☎:400-116-7720转777【营销中心已认证】🥇🥇
✨无锡奥体潮鸣售楼处电话✅:400-116-7720转777
无锡奥体潮鸣营销中心电话☎:400-116-7720转777【营销中心已认证】🥇🥇
声明:本文由入驻焦点开放平台的作者撰写,除焦点官方账号外,观点仅代表作者本人,不代表焦点立场。
