武汉武昌滨江【天创元萃】售楼处电话【天创元萃】售楼处预约咨询_房价_户型_楼盘详情
扫描到手机,新闻随时看
扫一扫,用手机看文章
更加方便分享给朋友
武汉【天创元萃】售楼部电话:400-116-7720转接666(营销中心)
楼盘最新价格,户型图,地址,电话,样板房,周边配套,项目介绍
温馨提示:绝不收取任何费用,请提前1小时预约看房,以免带来不好的看房体验
位于武昌内环滨江,靠近武昌古城和黄鹤楼,走路到大成路也就1.2公里,距离华发外滩玺,过个马路,直线200米就是5号线昙华林站,地段没得说。
由于黄鹤楼范围内限高,华发外滩玺限高80米,但是天创元萃离的更近,限高40米,所以天创元萃全部是10-13层的小高层形势,开发商叫小洋房,也没啥毛病,这种内环纯洋房类的产品,尤其是在滨江板块,真的非常少见,而且它的容积率只有2.0

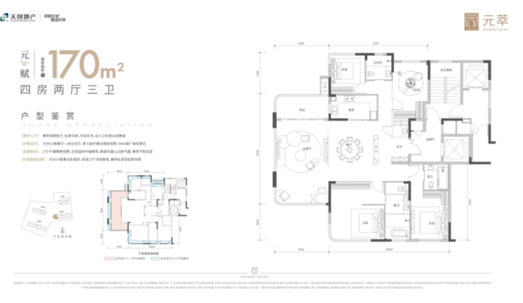
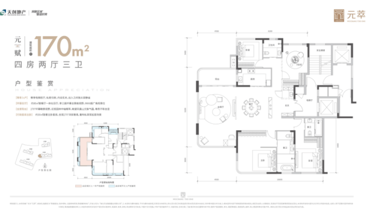
不看江,也注定了它不属于景观类产品,做不出景观溢价,它的产品定位就是偏市中心高性价比改善,户型面积段在127-170㎡,由于全部是2梯2户或1梯1户,它所有的户型都是南北通透,且是独梯独户设计,电梯厅私密性都非常好。
其中127平占比最大,一共7条腿,142平其次,有4条腿,而这两个户型,也是整个小区得房率最高的,预计在113%。170㎡一条边的,得房率大概在105%。
还有2条边分别为1号楼的130平和3号楼的142平东边户,它们都属于1梯1户,且总楼层在10层,加起来20套,目前还未公布户型图。
具体到产品设计,127平和142平格局基本一致,都是四房两厅三卫双套房,不过142平的开间更大,南向开间比127平宽3.2米,北向开间比127平宽3.4米,最大的区别体现在厨房和主卧开间上,其余的大横厅、 LDKB设计都一样,从户型来讲,功能差不多,但是142使用感受更好。


170做的有点类似全景仓的客厅,加上阳台,客厅面宽有9.2米,正对着中心园林,空间感会非常强,唯一遗憾是,有两个很窄的承重柱占据了一点空间,这个户型还有一个优势,就是几乎没有过道,且各功能分区自然界限也比较明确。当然,这几个户型都有一个问题,就是都存在暗卫,所幸不是主卫。

声明:本文由入驻焦点开放平台的作者撰写,除焦点官方账号外,观点仅代表作者本人,不代表焦点立场。
