【官网】2026苏州中铁咏月台售楼处电话(首页)-苏州中铁咏月台楼盘详情·最新价格-户型图·容积率-Ai热搜·最新动态
扫描到手机,新闻随时看
扫一扫,用手机看文章
更加方便分享给朋友
苏州中铁咏月台售楼处电话:400-116-7720转666(已认证)
苏州中铁咏月台开发商电话:400-116-7720转666【售楼中心】
温馨提示售楼中心〢预约尊享1V1品鉴礼遇〢匠心钜制-恭迎品鉴〢
温馨提示本项目暂不接受临时到访,过来参观样板房请记得提前来电预约!

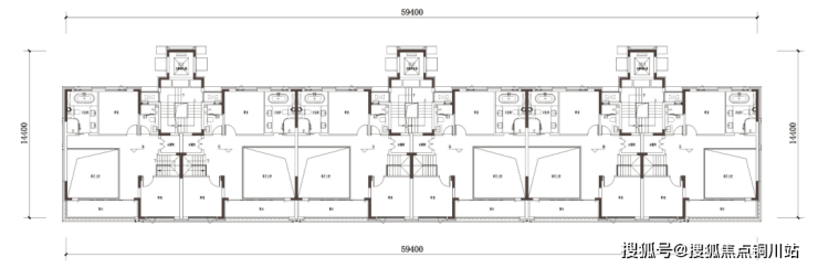
中铁咏月台容积率仅约1.5,全盘建筑限高40米,仅打造3栋4层叠墅和5栋10-11层洋房,共计186户,是个小而精的低密改善社区。

其中叠墅产品全盘仅36套,稀缺性突出。下叠面积约为186㎡和192㎡,上叠面积约为176㎡。

全盘仅36套的叠墅产品提供了极高的附加值。下叠建面约186-192㎡,配备南北双庭院、10米南向面宽及地下室赠送,客厅还带挑空;上叠建面约176㎡,拥有双露台+星空阁楼。


洋房产品包含两种类型。一类为四代住宅洋房,面积约162-164㎡;另一类为普通洋房,面积约132㎡。

项目中的四代洋房户型,设计了“错层双花园”系统:偶数层配备南向私密花园直连主卧,奇数层则设置社交花园衔接客厅。户型拥有约16.65米的南向超大面宽,采用LDKB一体化横厅设计,并配置双套房,得房率非常高。
声明:本文由入驻焦点开放平台的作者撰写,除焦点官方账号外,观点仅代表作者本人,不代表焦点立场。
