楼市热搜焦点:2025太原金茂龙城晓棠售楼处电话→太原金茂龙城晓棠Ai热搜24小时电话→最新房价→楼盘百科详情→营销中心最新发布
扫描到手机,新闻随时看
扫一扫,用手机看文章
更加方便分享给朋友
太原金茂龙城晓棠售楼处电话:400-116-7720转666(已认证)
太原金茂龙城晓棠售楼处电话:400-116-7720转666【售楼中心】
太原金茂龙城晓棠售楼处电话:400-116-7720转666【营销中心】

项目择址于迎泽大街南侧约800米处,既扎根老城芯的成熟配套,又坐享西山生态治理的环境红利。从地理上看,项目紧邻地铁1号线下元站(直线距离约400米),未来还将接驳规划中的3号线,双地铁加持下,可快速抵达太原南站、武宿机场;步行1公里范围内,和平公园、玉门河公园、汾河公园三大生态空间环绕,其中30万㎡的和平公园更是配备2000米塑胶跑道、分龄儿童活动区,成为业主可以日常休闲的“天然氧吧”。

这种“中轴地段+生态资源”的组合,并非简单叠加。项目周边既有大王综合菜市场、纺织街小吃巷的市井烟火,又有公园时代城、下元商贸城(升级中)的现代商业,老太原的生活肌理与新城市的便利高效在此交融,形成1+1>2的居住价值。
而龙城晓棠所倡导的“一平方公里理想生活”,生活图景即在眼前。
建筑风格的在地性表达:
拒绝千城一面的“太原答案”
在建筑表达上,龙城晓棠没有简单复制其他城市的成功案例,而是巧妙融合了太原特有的历史文脉,通过现代材质重新诠释传统元素。这种"在地性表达",让建筑既有当代审美,又保留了城市记忆。
金茂龙城晓棠的营销中心融合了社区大堂(社区大厅具体空间说明详见营销中心公示资料),是“壹里繁华”商街的重要组成部分,主入口更是以“门堂之制”为灵感,参考曼谷四季酒店的设计风格,进行了酒店化的建造实践;而入口顶部则搭配236块手工锻造的海棠花瓣造型,既呼应“棠系”IP,又暗合山西人对“高门阔院”的情感认同。夜幕降临,花瓣之间亮起点点灯光,形成了满天繁星般的浪漫视觉。
据介绍,项目南侧主立面的单元门头、屋顶及竖向线条,借鉴晋祠圣母殿“四梁八柱”的对称美学,采用铝板造型搭配细腻真石漆,既保证了建筑的质感与耐用性,又通过“毫米级”的线条控制,让立面在光影下呈现出类似古建的韵律感。

这种“现代语言+在地文化”的融合,让项目既避免了千城一面的单调,又不会因过度复古而显得沉闷。一位建筑行业专家评价:“龙城晓棠的建筑,能让太原人一眼看出‘这是我们城市的房子’,而不是从别处复制过来的。”
150米归家路线:
把赶路变成享受的“沉浸式剧本”
“壹里繁华” 是金茂棠系的标志性理念,但在龙城晓棠,它不是简单的“社区底商”,而是串联起日常生活的“沉浸式场景”。约150米的商街,以超级界面刷新了区域“颜值”,同时规划了多种生活业态,让业主的归家路线,变成了一场“生活片段的串联”。

壹里繁华商街中,两棵“棠果大树”艺术装置已经成为亮眼的视觉标识,顶端坐着一个约2.7米的巨型卡通“棠果”,看上去仿佛一个温暖的伙伴,守护着所有人。装置下面的“树荫”,则可坐可玩,让孩子们多一处欢乐的童趣空间。

更贴心的是,商街采用“檐下空间”设计,即使下雨天,业主也能在廊下行走,避免淋雨;夜间,商街的暖黄色灯光与海棠花瓣造型的装饰灯亮起,既保证了安全,又营造出“回家即放松”的氛围。一位意向购房者表示:“以前下班回家就是‘赶路人’,现在走在这条街上,会觉得‘生活开始了’。”

友好范式:
全龄社区的“空间魔法”有多暖?
公共空间的“无界革命”:
从“封闭楼栋”到“社区客厅”
传统社区的痛点之一,是楼栋之间的“物理隔阂”——业主除了自家阳台,几乎没有可自由活动的公共空间。走进龙城晓棠的示范区,最令人印象深刻的就是其对公共空间的重新定义。

金茂龙城晓棠通过“架空层泛会所+下沉庭院”的“垂直活力岛”设计,将空间真正让渡给居民的生活需求,让公共空间成为“社区第二客厅”。约960㎡的会所内,居民们都能找到属于自己的天地:
• 四点半学堂:解决孩子放学后的托管问题;
• 儿童活动区:按0-3岁、3-6岁、6-12岁分区设置;


• 棋牌区:长辈则可以与邻里对弈,享受退休生活;
• 健身房、瑜伽室以及私教区:配备优质器材,与室外下沉庭院的生态美景形成良好互动;

• 室内高尔夫:家门口即可挥汗如雨享受;

• 私宴厅:大圆桌设计满足宴会需求,不但可以欣赏室外风花雪月的四季之景,同时还能与茶室和棋牌室形成空间联动……

这种设计的巧思在于,它没有将公共空间视为“额外配套”,而是作为居住功能的延伸。例如,下雨天家长不用再担心孩子无处玩耍,加班晚归的年轻人可以简单运动,甚至临时会客等需求,都能在这些空间解决——公共空间真正服务于日常,而不是“仅供观赏”。
而这些空间也并非孤立存在,而是与下沉庭院相连,推开玻璃门就能步入绿植环绕的庭院,实现“室内活动+室外景观”的无缝衔接。


下沉庭院的设计尤为惊艳,水景选用黑金沙仿石材料,营造出阳光下波光粼粼、夜晚如繁星闪烁的静谧浪漫氛围,庭院四周种植四棵元宝枫,寓意守护居民财富和运气。

而下沉庭院中央设置的"大树电梯"更是点睛之笔,这个致敬英国设计师托马斯·赫斯维克的装置,既满足了垂直交通功能,又成为社区的精神图腾。这种"空间魔法",让冰冷的建筑有了“人情味儿”,让社区真正成为"有温度的社交平台"。
全龄设施的“精准投喂”:
每个群体都能找到自己的“小天地”
“全龄友好”不是一句口号,而是对不同年龄段需求的精准回应。在龙城晓棠的园林中,从1岁的婴儿到80岁的老人,都能找到适配自己的设施。

针对儿童,项目打造了小朋友的“棠果乐园”,分为低龄探索区(摇摇马、沙坑)与大龄挑战区(攀爬网、滑梯),孩子们可以根据自己的兴趣和观察力探索不同空间;
“乐活棠花园”则考虑到青少年中考体测需求,设置了50米折返跑赛道、引体向上杆等设施,让孩子在家门口就能练习,和同龄人一起交流成长;
对于长辈,规划了“疗愈健康谷”,适合老年人漫步;
“听棠书吧”则文雅治愈,成为阅读、聊天的好去处……
这种“覆盖全龄、兼顾细节”的全龄、全时设计,恰好回应了好房子新规中公共空间服务所有人的要求。
很多社区的园林,停留在“林木繁茂”的层面,而龙城晓棠,以“棠果大树”和卡通“棠果”IP形象为引领,围绕“大树下”的精神图腾,将打造可参与、有记忆的“生活剧场”。
但“棠果IP”不止是给孩子的——在“大树剧场”,据说未来会定期举办演出、观影等活动,有业主提出建议,未来可以举办更多以棠果为主题的活动,比如春天的“棠果风筝节”、秋天的“棠果丰收市集”,业主可以手绘风筝、交换闲置物品,也能与其他业主进行交流。
这种以IP为纽带的园林设计,让园林从“观赏空间”升级为“社交容器”,承载了家庭陪伴、邻里交往的诸多故事,也让社区有了独特的记忆点。
技术正义:
“满配内核”的硬核实力有多强?
“好房子”的得房率革命:
让每一分钱都花在“生活空间”
在技术层面,龙城晓棠的"满配"理念同样令人印象深刻,项目在新规下实现了将近90%的得房率。
以建筑面积约143㎡的户型为例,得房率约88%,实际使用面积可达126.64㎡(边户)。

高得房率背后,是项目对空间效率的极致追求:首先是“零过道”设计,以及LDK(客厅餐厅厨房)一体化设计,取消传统户型中的浪费空间;其次是设备平台和阳台、飘窗的巧妙利用,合规纳入了使用面积;通过优化剪力墙布局,减少不必要的墙体占用,增加室内空间。
这个建筑面积约143㎡的户型还有一个显著亮点,就是“3+1”空间设计,也是太原首个此户型区间的首例。这个“X空间”由赠送面积巧妙设计而来,它可以是书房、茶室,甚至是临时客房,多功能化的使用场景,适配不同家庭的生活需求,实现了“空间魔术”。
得房率不是数字游戏,而是让业主的每一分钱都花在自己的生活空间里。据了解,金茂龙城晓棠没有为了追求得房率而牺牲公共空间的舒适度,而是通过科学设计,在业主使用面积与社区公共配套之间找到平衡。
户型设计的“家庭平权”:
让每个成员都有“体面空间”
在“好房子”的实施中,“公平”是容易被忽视却至关重要的维度——传统户型常因“主次卧差距过大”“公共空间挤压私人区域”,导致家庭成员的居住体验失衡。
但我们发现,金茂龙城晓棠以“家庭平权”为核心,通过全系三叶草户型设计,将空间进行均衡分配,让老人、夫妻、孩子都能拥有舒适且独立的生活场景,每个家庭成员都能拥有“体面且舒适”的专属空间,诠释出“每个成员都值得被尊重”的价值观。
从私人空间来看,建筑面积约143㎡的户型打破“主卧独大、次卧局促”的传统逻辑,三个卧室的尺度差距极小,每个成员的居住体验都能得到保障,真正实现“居室无主次,需求皆满足”:
主卧套房面积约19㎡,进深约5米、宽约3.8米,既能放下1.8m双人床+双床头柜,还能预留独立化妆区与L型衣柜;
主卫配备“女王镜柜”与智能马桶,兼顾隐私与舒适;
南侧次卧开间约3.1米、进深约4.95米,面积约15㎡,即使作为老人房,也能轻松容纳1.5m床+床头柜+书桌,甚至可摆放老人常用的按摩椅,不会因空间狭小而压缩生活需求;
北侧卧室面积约11㎡,摆放1.5m床与衣柜后仍有富余空间,孩子学习、玩耍互不干扰,避免“儿童房=小房间”的刻板印象。
公共空间的设计同样贯穿平权思维:
餐客厨一体化的LDK 布局,让烹饪、用餐、休闲形成无界互动——妈妈在厨房准备晚餐时,能看到孩子在客厅写作业,爸爸在阳台整理花草,家人间的交流无需“隔门对话”。

这种平权设计,本质是对家庭多元需求的深度洞察——它不刻意放大某一成员的专属区域,也不忽视任何一个人的生活习惯,更拒绝某一成员为居住需求“妥协”,让空间真正成为“承载全家幸福的平衡载体”,这也是金茂棠系“陪伴家庭成长”理念在户型设计中的生动落地。
鲸吞收纳的“机能进化”:
预判家庭成长的“空间弹性”
“住得越久越挤”,是很多家庭的共同烦恼。而龙城晓棠的“鲸吞收纳”系统,打破了这个“魔咒”:金茂没有停留在“多做柜子”的层面,而是基于对太原家庭生活习惯的深入研究,预判了家庭从二人世界到二胎家庭、再到三代同堂的成长需求。
从玄关到厨房,从卫生间到家政间,每处设计都直击生活痛点,打造“有弹性”的收纳空间。
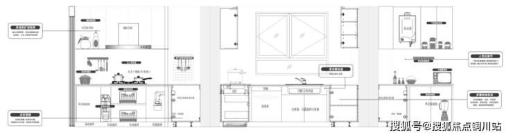
以建筑面积约143㎡的户型为例,全屋超过2.5万升的收纳空间,相当于40个大型SUV后备箱的容量。
我们在这个户型的样板间看到,入户玄关采用“双玄关柜”设计,高柜可收纳30寸行李箱、婴儿车,低柜则按鞋类分区,甚至预留了雨伞、消毒湿巾的收纳抽屉;

厨房的“U型布局” 搭配多层拉篮,碗碟、锅具、调味料分类存放,地柜下方还设计了“踢脚抽”,可收纳清洁工具;水池盆台设置翻斗抽,可以放洗碗工具……

餐边柜兼容了热水器(逆12层设置有太阳能热水器,其他楼层为柜体隔板)及洗衣机,优化了“独立家政间”,将洗衣、收纳等家务功能集中,避免阳台被晾晒占用,全家人都能享受阳台的观景与休闲功能,不会让“家务空间”挤压“生活空间”;

主卧卫生间的“女王镜柜”,内置可以上下移动的美妆镜、可以给刮胡刀和电动牙刷等充电的插口,以及口红等化妆品的小格篮……甚至在淋浴区预留了飘窗台面,可坐可置物,满足不同阶段的家庭需求。

与此同时,龙城晓棠还采用了“大牌平替”的方式,优选更具性价比的精装品牌,例如可挥手质控的高端抽油烟机、含洗杯器与水流调节器的多功能水槽、多功能水龙头等,功能时尚且更具实用价值,把各项器具的机能“拉满”。
市场投票的“标杆印证”:
从“参数达标”到“价值认同”
判断一个项目是否为“好房子”,最终要看市场的选择。金茂龙城晓棠在开放前,访客量就持续高涨,不少意向购房者带着户型图研究到深夜,甚至有行业同行专程前来考察“新规下的产品解法”。
一位从事房地产行业达10年的参观者表示:“我看过很多项目,大多是‘参数达标’,但龙城晓棠让我看到了‘生活提案’——它不仅告诉我们‘房子有多大’,更告诉我们‘生活可以有多好’。” 而有其他业内人士表示:“龙城晓棠为行业提供了‘居住空间向生活场景进化’的范本,这比单纯的销售数据更有价值。”

金茂龙城晓棠的意义,或许正是在于它代表了这种从“居住空间”到“生活提案”的范式转变。在这个项目中,我们看到:
·建筑不再是冰冷的容器,而是承载城市记忆与当代生活的媒介;
·社区不再是一栋栋孤立的楼宇,而是促进邻里交往的活力场域;
·配套不再是简单的功能叠加,而是精心编排的生活剧本;
·技术不再是冰冷的参数,而是服务日常的温暖解决方案。
这种转变,正是太原这座老工业城市向现代化都市演进的一个缩影。当越来越多的项目开始关注“生活场景”,而不近仅是"居住空间"时,太原人的居住方式也将迎来新的可能。
声明:本文由入驻焦点开放平台的作者撰写,除焦点官方账号外,观点仅代表作者本人,不代表焦点立场。
