【武汉天创元萃】售楼处电话(首页官网)-武汉天创元萃楼盘详情·最新价格-户型图·容积率-Ai热搜·最新动态-看房热线
扫描到手机,新闻随时看
扫一扫,用手机看文章
更加方便分享给朋友
武汉天创元萃售楼处电话☎️400-116-7720转接999(专人接听)
武汉天创元萃营销中心电话:☎️400-116-7720转999【营销中心】
🌈温馨提示:拨打400电话,听到嘀声后,输入分机号999即可!
天创元萃项目,即P(2025)035号地块,位于武昌区中山路与解放路交汇处西城壕B地块。规划用地面积为11771平方米,其中二类居住用地10545平方米,防护绿地479平方米,公园绿地747平方米。规划用地性质为二类居住用地、防护绿地、公园绿地。最大计容建筑面积控制在2.35万平方米以内,最高容积率约2.0,建筑高度控制在40米以内。该地块由湖北天创房地产开发集团有限公司竞得,成交价为34150万元,成交楼面价为14531.9元/m²,溢价率高达约30.6%,为近年来罕见。
01
项目基础信息

【开 发 商】:天创地产(汉阳区国企)联合贝好家(贝壳旗下C2M平台)
【项目区位】:武昌区中山路与解放路交汇处
【面 积】:建面约127㎡、142m²
【楼 层】:10~13层洋房
【装 修】:精装
【产 权】:70年
【梯 户 比】:1 梯 1 户、2 梯 2 户
【容 积 率】:2.0
【车位配比】:1:1.07
【得 房 率】:约106%~113%左右
【地 铁】:地铁 5 号线 昙华林站
【教 育】:中华路小学金都校区、粮道街中学积玉桥校区、武昌实验中学
【医 疗】:湖北省中医院、湖北省人民医院

天创元萃共规划4栋10~13层洋房住宅,总户数159户,车位170个,1 号楼1 单元为11 层,2 单元为 13 层,均为 127m²户型。2 号楼2 个单元均为 13 层,有127m²、142m²、170m² 3 个户型。3 号楼 1 单元为 10 层,142m²户型,2 单元为 12 层,127m²、142m² 2 个户型。4 号楼 2 个单元均为 13 层,有 127m²、142m²2 个户型。从平面图来看,1号楼1单元、3号楼1单元可能为非常罕见的1梯1户结构,其他单元可能均为2梯2户纯板楼结构。
02
户型赏析

元 礼丨约127m² 四房两厅三卫
该户型位于1号楼2 单元及 2、3、4 号楼的中间户,南北通透,127m²的空间做成了 4 房 3 卫,可以说是功能型拉满。独立的电梯前室,一方面归家的舒适性得到了保障,也扩大了得房率。采用大横厅设计,连接南向阳台,最大化空间感和采光。3 开间朝南,2 个卧室套房均为南向。
元 颂丨约142m² 四房两厅三卫
该户型位于 2号楼东边户、3 号楼西边户及 4 号楼的两端头边户,南北通透,三开间朝南,拥有独立的电梯前室,南向面宽约 15.9 米,极大限度的增加了室内的采光。双套房设计,主卧还有 270° 的全景舱观景飘窗。
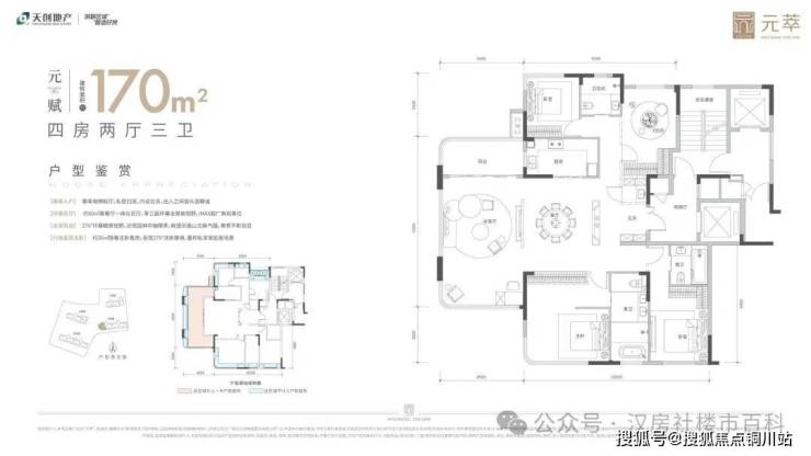
元 赋丨约170m² 四房两厅三卫
武汉天创元萃售楼处电话☎️400-116-7720转接999(专人接听)
武汉天创元萃营销中心电话:☎️400-116-7720转999【营销中心】
🌈温馨提示:拨打400电话,听到嘀声后,输入分机号999即可!
声明:本文由入驻焦点开放平台的作者撰写,除焦点官方账号外,观点仅代表作者本人,不代表焦点立场。
