【武汉福星惠誉铂雅府】售楼处电话—项目百科【24h预约热线】—实时动态--最新价格-户型图-容积率@武汉福星惠誉铂雅府营销中心
扫描到手机,新闻随时看
扫一扫,用手机看文章
更加方便分享给朋友
武汉福星惠誉铂雅府售楼处电话:400-116-7720转接666
楼盘最新价格,户型图,地址,电话,样板房,周边配套,项目介绍
温馨提示:绝不收取任何费用,请提前1小时预约看房,以免带来不好的看房体验
2024年6月,江岸区住房和城市更新局、区财政局、区教育局、武汉市自然资源和规划局江岸分局四部门联合发布《关于促进江岸区房地产市场平稳健康发展若干措施的通知》。
其中明确提到,“统筹用好江岸区优质品牌教育资源,按照‘新建即优质’的原则,与住宅项目同步规划、同步建设、同步验收,努力办好家门口的好学校,进一步强化教育赋能新建房地产项目的品质提升与公共配套”。
U28地块学校无疑是对这一政策精神的坚定贯彻,而与它一路之隔的住宅项目,就是福星惠誉·铂雅府。
项目效果示意图
其实,在拥有顶配教育资源外,“汉口内环首个准四代洋房”也是福星惠誉·铂雅府迎战市场的重要利器。
年初武汉发布《关于推进新型住宅设计创新试点工作的通知》,对未来创新住宅提出更高的人性化、舒适化要求,即通常所说的“四代住宅”。今年亮相的高改项目纷纷响应这一政策,展现出“四代住宅”的超高舒适度和性价比,引领楼市潮流。
福星惠誉·铂雅府亮相,可谓生逢其时。
千亿建设大道
鎏金繁华地段
相比其他准四代住宅,福星惠誉将第一座铂雅府系落子汉口建设大道,看中的是这里得天独厚的资源优势。

实景图
这里拥有千亿级金融贵脉:汉口银行总部、招银大厦、浦发银行大厦等亿元写字楼矗立,金融机构总部云集;
项目区域图
这里“三横”“三纵”“三轨”交通主干道交错:建设大道、发展大道、解放大道直通三镇,青年路、香港路、武汉大道贯通大汉口,香港路站(3/6/7号线)三轨交汇;
这里环绕多个华中顶级商圈:武汉万象城、西北湖、武汉天地、武广恒隆,流淌汉派与国际交融的高阶烟火;
这里举步可达城市绿心:解放公园、菱角湖公园、宝岛公园等享受难得静谧;
解放公园风光 极目新闻记者肖颢 摄
这里搭建超配医疗体系:武汉市红十字医院、长航总医院、武汉市妇幼,为家人健康保驾护航;
这里蕴藏书香文脉:武汉图书馆、武汉博物馆、青少年宫、杂技厅,沉浸书香,欣赏艺术。
武汉图书馆实拍 极目新闻记者肖颢 摄
寸土寸金之地,高端人居迭代的使命,落到了“城市更新与幸福生活服务商”福星惠誉身上。
纯粹低密洋房
贵隐中心质感
福星惠誉积极响应楼市新政,深入研究区域居住痛点,精准判断高端客群需求,以总规模超30万方的体量,雕琢出建设大道旁断档近十年的巨无霸豪宅。
项目首推北区组团容积率低至2.5,打造建设大道两侧罕见的10-14层洋房、小高层。以“贵隐中心的闲逸生活”为出发点,联袂上海日清、ONE-CU、HWCD等全球顶尖设计大师,集萃世界前沿美学。
超阔光幕立面,铝板搭配巨幕玻璃,带来户户皆景的极致面宽,更新汉口界面,成为区域颜值地标。
效果示意图
项目以曼谷四季酒店Four Seasons为灵感,将雨树落客区、中央庭院、水疗池、滨河长廊及宴会厅露台的自然社交体验融于园林,呈现度假质感。
走进高定秘境会所,入口对仗奢石景墙充满仪式感,一条绿轴引人入境,串起宝格丽花园和八大主题岛屿生活剧场;透光玉石、砾石銮金奢石、宝格丽黑奢石等全球奢石镶嵌使用,仿佛置身世界顶奢酒店。
效果示意图
双精装入户大堂,营造高质感归家路径。入户景墙、浪漫花境、特色铺装,雕琢归家质感,尽显细致入微的人性化考量;出入之间,皆能体验五星级酒店式贵宾尊崇礼遇。
效果示意图
艺术样板间由HWCD执掌设计。HWCD被誉为建筑界的“劳斯莱斯”,曾打造过上海汤臣一品、伦敦塔桥壹号、上海云锦东方等多座标杆建筑,也曾为武汉多个顶豪项目打造过公区和样板间。
福星惠誉·铂雅府引入具有百年历史、源于法国的金钥匙国际联盟,定制铂金级服务,让业主24小时都享受到五星级酒店贵宾式的私家礼遇。
准四代奢宅
探索人居尺度
福星惠誉·铂雅府被誉为今年武汉楼市的“六边形战士”,为汉口主城准四代奢宅标杆之作。第四代住宅鼓励在总体布局、公共空间、建筑立面、户型设计等多方面创新。项目首推产品以约90%高得房率,直击汉口城心居住品质迭代痛点。
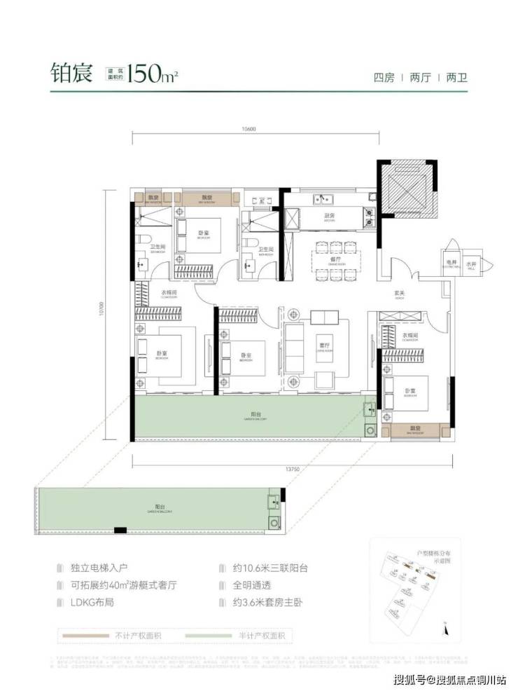
其中,洋房打造建面约138m²、150m²、172m²三个四房户型。
建面约138m²户型,经典四叶草布局,南向近11米大阳台,得房率约95%。
建面约150m²户型,面宽做到惊人的13.75米,阳台进深约2米,LDKG一体化,堪称铂雅府爆款。
建面约172m²户型,大四房设计,巨幅落地窗搭配超大面宽客厅,加上双套房布局,被誉为“孤品级”洋房。
洋房138 m²、150 m²、172 m²户型图 左右滑动查看
除了洋房,福星惠誉·铂雅府高层也是令人惊喜。高层主打建面约106m²、148m²两个户型,其得房率可达约88%,以更丰富的产品面积和更丰富的业态选择,精准匹配进阶主城中心和顶级教育的首改家庭。
声明:本文由入驻焦点开放平台的作者撰写,除焦点官方账号外,观点仅代表作者本人,不代表焦点立场。
