2025最新发布:太原【万科悦都荟】售楼处电话—地址—房价—【万科悦都荟】楼盘详情—24小时电话
扫描到手机,新闻随时看
扫一扫,用手机看文章
更加方便分享给朋友
太原万科悦都荟☎☎售楼处电话:400-116-7720转接999【售楼中心】
★彡提-前-来-电-预-约-登-记—售楼处1v1销售专业讲解〢一对一热情服务〢
★彡温馨提示:网上售楼中心〢欢迎来电咨询〢预约可享内部优惠〢匠心钜制恭迎品鉴〢
南站旁的万科悦都荟,目前在售17号楼,总高23层。户型有105平到125平,精装修,一万两千到一万三千左右。容积率低,楼间距大,楼栋南侧无遮挡,采光好,户型好。太师三附小,已经开学,地铁一号线已经运营,未来还有地铁三号线。考虑这个楼盘的朋友,抓紧时间约我看房,内部折扣更给力。新房无中介费和其他费用。
万科都荟剩余货量(5月26日)
105户型,4、8、18、21、22层,12500均价;
125户型,东边户11、13、14、18、21、22层,13500左右;
西边户可选,均价13000左右;
万科悦都荟,位于太原市小店区,南站片区,总规划11栋23层小高层。
万科悦都荟,105平户型,设计为三室两厅两卫。南北大通透客厅和主卧朝南,两个卧室朝北。客厅开间3.55米,主卧12平米左右。厨房和主卧带的卫生间,有窗户。朝北两个卧室面积稍微小一些。因为南侧无遮挡,采光会很好。
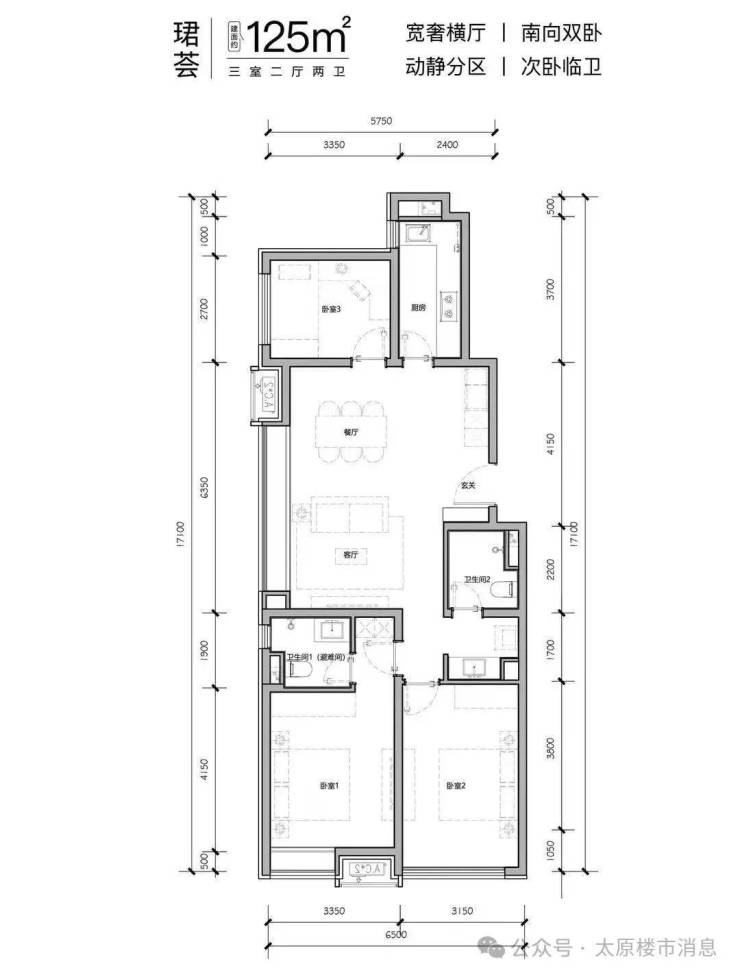
万科悦都荟,125平户型,三室两厅两卫设计。两个卧室朝南,客厅朝西,为大开间,达到了6.35米。朝南的两个卧室面积为14平米左右。餐客一体,动静分离。
万科都荟四季,包括了7栋11层到12层的小洋房。万科悦都荟,总户数1824户。万科都荟四季,总户数482户。
108户型1、2、顶,14000左右;
125户型1层,1套西边户,14600;
140户型1层,1套西边户,15000左右。
太原万科悦都荟☎☎售楼处电话:400-116-7720转接999【售楼中心】
★彡提-前-来-电-预-约-登-记—售楼处1v1销售专业讲解〢一对一热情服务〢
★彡温馨提示:网上售楼中心〢欢迎来电咨询〢预约可享内部优惠〢匠心钜制恭迎品鉴〢
声明:本文由入驻焦点开放平台的作者撰写,除焦点官方账号外,观点仅代表作者本人,不代表焦点立场。
