2026武汉华侨城红坊售楼处电话→武汉华侨城红坊售楼中心电话→2026武汉华侨城红坊楼盘百科→楼盘网站→楼盘测评→售楼中心电话→24小时热线!
扫描到手机,新闻随时看
扫一扫,用手机看文章
更加方便分享给朋友
武汉华侨城红坊售楼处电话✅:400-116-7720转999
✅营销中心电话☎:400-116-7720转999【营销中心已认证】🥇🥇
武汉华侨城红坊售楼处电话✅:400-116-7720转999
项目介绍
项目地址:红钢一街32号
项目公司名称:武汉华侨城滨江置业有限公司
开发商品牌:华侨城
物业公司:华侨城物业
物业管理费:3.2-3.8元/月/平米
价格说明:一房一价,以实际价格为准
总栋数:一期9栋,二期13栋
总户数:6600户 (11街一期1219户)
占地面积:459500平米
建筑面积:1921000平米
容积率:3.82
绿化面积:10000
绿化率:30%
车位:8580, 地上5620, 地下2960个
车位配比:1:1.2
交付标准:2025年年底毛坯交付
户型:100-124㎡ 洋房/100-133㎡ 平层/143-190㎡ 观江大平层
项目特点:智慧小区人车分流封闭小区
在售价格
T号楼折后约19XXX元/平起,特价房一度低至一口价15800元/平,实际折后15XXX-16XXX元/平起,价格相对较低。
江景房,建面约143平户型折后17XXX元/平起,191平户型折后约19XXX元/平起
Y号楼备案价最高,折后能卖到21XXX-24XXX元/平。
教育工作者持证优惠:享受限时99㎡一口价158万团购优惠,115㎡边户,特价200万,133㎡户型,248万楼层任选!
周边配套
交通配套,5号线红钢城站,直线距离约800米,周边还有临江大道、和平大道,连通内环、二环、三环,自驾可以快速通达全城
教育,重点红钢城小学+武钢三中初级中学
商业配套:项目自带约2.6万方囍悦里商业街已经建成,大型商业武商城市奥莱,印象城
医疗,武钢二医院北院区,武钢总医院,普仁医院,第九医院
生态配套, 青山江滩公园,青山公园、和平公园、武昌生态文化长廊、戴家湖公园等
楼栋分析
华侨城云岸二期户均140平,除了临江高层、超高层外,此次二期地块的洋房房源倍增至6栋
华侨城红坊云岸二期,位于临江大道与建设七路交汇处,隔壁是云岸一期,一路之隔就是青山江滩公园、长江。
容积率3.62,户均140平,规划2栋高层(T9、T10#)、5栋超高层住宅(T11、T12、T15、T16、T17#)、6栋洋房(Y3、Y5、Y6、Y7、Y8、Y9#)。
南面全部为低密洋房,北面依旧是高层、超高层,楼栋为东南朝向,其中2栋高层(T9、T10#)、2栋超高层(T11、T12#)是一线看江,高层、超高层都规划了风雨连廊。
从规划数据来看,一期占地4万方,体量约19.2万方;二期4.5万方,体量约21.8万方。很明显云岸二期占地、体量比一期要大一点,而且与只有2栋洋房的一期相比,二期洋房供货量明显激增。
已交付
华侨城红坊已经交付了7街坊、右岸17、18街坊。
2022年12月27日,红坊7街坊2-5号楼交房,交付时间比合同约定时间提前半年。
2023年11月11日至12日,红坊7街坊1、6、7号楼观江大平层交付。
2023年12月28日至30日,红坊右岸17街坊H1、H7、Y1、Y2号楼集中交付。
2024年4月26日-29日,红坊右岸18街H8、H9、H10、H11、Y3号楼交房。
2024年12月22日—23日,红坊右岸17街H2、H5、H6号楼提前交付。
从项目已交付的实景来看,品质、颜值都是相当在线的。
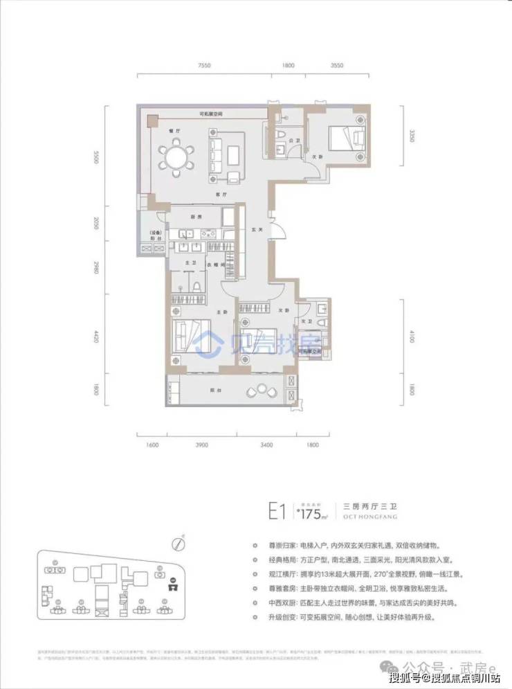
户型欣赏
主力户型99-115-133
大户型124-143-169-175-191-216㎡等
图景欣赏
声明:本文由入驻焦点开放平台的作者撰写,除焦点官方账号外,观点仅代表作者本人,不代表焦点立场。
