【2025武汉恺德雲麓】项目售楼处电话→地址→户型→价格→楼盘详情→百度百科→恺德雲麓最新销售动态!

铜川楼市发布 2025-10-16 14:06:05
用手机看
扫描到手机,新闻随时看

扫一扫,用手机看文章
更加方便分享给朋友

武汉【恺德雲麓】 ☎☎售楼处电话:400-116-7720转接666【售楼中心】 ★彡提-前-来-电-预-约-登-记—售楼处1v1销售专业讲解〢一对一热情服务〢

武汉【恺德雲麓】

☎☎售楼处电话:400-116-7720转接666【售楼中心】

★彡提-前-来-电-预-约-登-记—售楼处1v1销售专业讲解〢一对一热情服务〢

★彡温馨提示:网上售楼中心〢欢迎来电咨询〢预约可享内部优惠〢匠心钜制恭迎品鉴〢

项目总建筑面积7.8万平方米,规划1栋高层和1栋超高层,在售的2号楼为高层住宅。项目整体外立面采用现代艺术风格,白色墙面加上大面积高反玻璃加铝板设计,极具艺术感和观赏性。

除了有高颜值外立面,项目还有很“能打”的公区。恺德雲麓特别邀请山水比德创始人孙虎执笔园林空间设计,以五大主题,规划林涧山水、美学雅卷、水瀑光院、光影林廊、梦幻花园5重园林景观,扮靓业主的归家路。

项目园林景观实景图

与此同时,包含运动健身区、休闲共享区、儿童游乐区、老人休闲区等功能厅等在内,恺德在每栋楼首层都设计了架空层泛会所,将建筑与园林相融合,充分满足全龄段业主的需求。

架空层泛会所实景图

在室内空间的构造上,恺德雲麓工于匠心,实现生活空间尺度的最大化,需求空间设计的“最优解”。

项目首开2号楼共计210户,户型区间从92㎡-129㎡不等,得房率最高达102%,以多种面积段选择、灵活多变的户型设计,为各年龄段业主,提供理想居所。

建面约92㎡户型产品打造三房两厅两卫,也可以改造为大横厅+主卧大套房,室内空间更具“成长性”和多变性,满足年轻小夫妻的高品质生活需求。

92㎡户型图

建面约116m²户型,客厅开间约5.6米,户内空间兼具私密性与舒适度,以超大公共活动空间,满足更多家庭成员社交聚会、亲子互动、休闲娱乐的多元化场景需求。

116㎡户型图

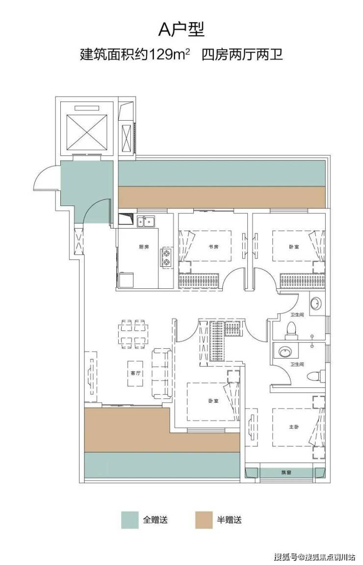
建面约129m²的户型,拥有独立玄关,以独梯独户配置,更具私密性和尊崇感,解锁都市塔尖人居生活新体验。

129㎡户型图

在此基础上,项目还与万科物业联手,致力于为项目业主带来高端物业服务,保障业主的居住体验。

声明:本文由入驻焦点开放平台的作者撰写,除焦点官方账号外,观点仅代表作者本人,不代表焦点立场。