长沙金茂智慧科学城(营销中心)官方网站-长沙金茂智慧科学城销售中心(售楼处)-长沙金茂智慧科学城楼盘欢迎您-地址-价格-户型-小区环境-楼盘详情-交房时间-
扫描到手机,新闻随时看
扫一扫,用手机看文章
更加方便分享给朋友
长沙金茂智慧科学城售楼处电话(官网已认证):400-116-7720转888 ✨温馨提示—拨打400电话—听到嘀声后—输入分机号888即可通话✨
作为长沙的城市名片,梅溪湖国际新城早已深入人心、家喻户晓。
这其中,城市运营商的中国金茂功不可没,也让人们看到了金茂的“”造城”实力。
只要是金茂将要进入的片区、准备开发的住宅,都会让购房者守候于此。
作为长沙重点城市更新片区之一,雅塘新城并不是在原有的城市基础上进行简单的修补,而是全方位的整体更新和规划。
它将带来的是一座总面积约1453亩、总投资约百亿的现代之城,未来将是雨花区新城建设标杆和雨花新中心。
既能拥有年轻人喜爱的烟火气,又能享受新城规划带来的城市面貌革新,可以说雅塘新城是更符合当下新长沙人的居住地。
落于繁华之上,也意味着它和新区有着本质的区别,不需要再经历等待,天生就是人气汇聚。
交通、商业、教育、医疗……各种资源早已醇熟,这便是主城中心的优势。
片区周边像南二环、韶山南路等均为城市主干道,无论去往长沙哪里,通行都十分方便。
与雨花亭核心商圈为邻、往北是老东塘商圈、往东是树木岭商圈、往南则可到达德思勤-红星商圈。
附近大型商超、商业综合体、影院等等各种吃喝玩乐购,日常生活所需都能轻松满足。
片区教育氛围十分浓厚,拥有砂子塘小学本部以及多所高校资源。(教育入读文件以教育部门公布为准)
砂子塘小学本部
作为长沙重点城市更新板块,雅塘新城后期还规划了一所九年制学校,这是目前河东少有的九年制学校。(教育入读文件以教育部门公布为准)
总而言之,住在雅塘新城不仅能对品质生活充满向往,还能感受三千年长沙所沉淀下来的老城烟火。
楼盘首期A地块容积率约2.07,整体金茂智慧科学城包含9栋小高层,这便是其首开带来的诚意。
市区难得的低密小高层
说实话,能在繁华主城献上如此低密的地块实属不易。
毕竟越靠近市中心,土地就越金贵。
尤其是在南二环旁,成片的住宅用地十分稀缺,周边主打高端改善的新盘更是少之又少。
容积率的高低,直接影响了小区居住品质,容积率越低,往往园林和绿化也会更好。
主城区少见的小高层,由于住户少、层数低,带来的是更长的采光时间、更宽的楼间距和更好的居住舒适度。
这些都是市区高层、超高层住宅所无法比拟的。
正因为如此,方能体现出项目是多么的难能可贵。
绿色科技的智慧社区
由于本身主打智慧社区,楼盘将“绿色科技”理念贯彻到了园林景观、公共空间以及整个小区之内。
小区打造了“一轴、双核、六园”为核心的主题园林,景观多为全冠移植的乔木、灌木。
加上大面积的阳光草坪、原生的香樟大道、以及以银杏为主题的“芬芳园”等,亮点颇多。
园区之中,各种主题空间和设施均能进行科技互动,人性化处处可见。
如约350米智慧星光跑道、360°环景会客空间、多年龄化的童梦乐园以及主题架空层和精装泛会所等。
走在小区之中,太阳能驱蚊灯、安全气候检测、植物科普二维码、智慧健身引导、星空望远镜……智慧亮点无处不在。
项目示范区实景,左右滑动查看更多
双入户理念,地下车库大堂也采用高规格的光厅格栅吊顶,居住于此,业主可以充分地感受到专属归家礼序。
小区还施行了一整套的智慧安防系统,拥有周界报警、电子巡更、视频监控、室内报警、五方通话等八大安防系统。
再加上金茂特色的贴心社群活动组织以及中国TOP16物业越秀物业,带来全方位、有温度的诚挚服务。
金茂智慧科学城一共规划了3栋高层、9栋小高层、2栋公寓以及特色商业与幼儿园。
首开产品为A地块的1-3#、6#,两梯四户小高层,建面约103-136㎡,公摊很低,综合得房率约为90~93%。。
整体的建筑设计以简约现代的典雅风格为主,外墙采用真石漆+质感涂料材质,灰白两色的建筑外立面十分凸显项目气质。

整体来说,户型都比较方正,功能布局十分合理,面宽较大,均带一个南向大阳台。
建面约103㎡三房
这是目前长沙市场上十分稀缺的小三房,极大地降低了入手门槛,首开也仅60多套。
三开间朝南,同时是当下十分流行的客餐厨一体设计,动线、视野、空间感都十分不错。
南向阳台约6.3米,连通了客厅以及老人房,还巧妙地做了一个家政晾晒区,十分人性化。

建面约103㎡户型图
建面约120㎡四房
120㎡做到四房并不多见,三代同堂,主卧还是大套房。
整体更像是103㎡户型的放大版,尺度更为阔绰,客厅进深约4.3米,阳台长约7米,十分适合观景。
南向阳台可充分利用,一边可以作为花园阳台或者宠物空间,另一边则是晾晒空间。

建面约120㎡户型图
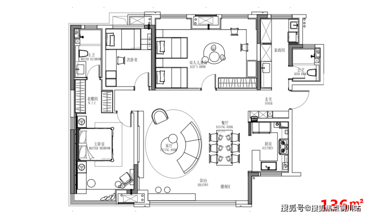
· 建面约136㎡四房
设计别具一格,十分符合现在工作繁忙的年轻夫妻家庭,紧跟时代需求。
采用阔气的大横厅设计,将客厅、餐厅、阳台、厨房全数连通,空间感媲美大平层。
入户处设置单独的家政间、双人儿童房的卧室设计,完美契合多孩家庭的生活习惯。
建面约136㎡户型

楼盘精装标准全面升级,看点十足。
博世全屋地暖、日立风管机、吉博力同层排水系统(卫生间)、智能门锁+猫眼系统以及圣象多层实木地板,高仪、科勒洁具等等,均为国内外的一线家装大牌。
这样的配置,远高于市面上同级别的精装产品,如同是专属的私人订制。
目前样板间已经开放,大家还可以参考下软装搭配。
样板间实景
长沙金茂智慧科学城售楼处电话(官网已认证):400-116-7720转888 ✨温馨提示—拨打400电话—听到嘀声后—输入分机号888即可通话✨
声明:本文由入驻焦点开放平台的作者撰写,除焦点官方账号外,观点仅代表作者本人,不代表焦点立场。
