武汉绿城桂语江南(售楼处) 首页 -武汉绿城桂语江南销售中心 - 环境 - 户型 - 价格 - 地址 - 楼盘详情 - 配套 - 电话 - 交房时间 - 配套 - 电话 - 交房时间
扫描到手机,新闻随时看
扫一扫,用手机看文章
更加方便分享给朋友
🏡☎️武汉绿城桂语江南售楼处电话:400-116-7720转接777【营销中心】
🏡☎️武汉绿城桂语江南售楼处位置:400-116-7720转接777【楼盘电话】
🏡房价特价信息丨优惠政策丨详细解答丨在售房源丨在售户型图丨项目介绍丨
周边配套丨VR看房丨楼盘图丨沙盘图丨位置图丨配套图丨售楼处地址丨足不出户丨
开发商找的绿城代建,但不是绿城物业,物业为武昌区国资委旗下的物业公司——武汉市佳新业实业有限公司,物业费为2.59。
其他数据如上图所示。
绿城桂语江南楼栋分布图如下:
其中,有2栋还建房,单独入户,与商品房不在同小区内。
1号楼为96平的小户型,超高层,东西朝向;
5-7号为总高4层的叠拼别墅,分为上下叠,即1-2层为下叠,3-4层为上叠,面积为251平。
2号楼共3个单元,其中1单元为东西朝向,2和3单元为南北朝向。
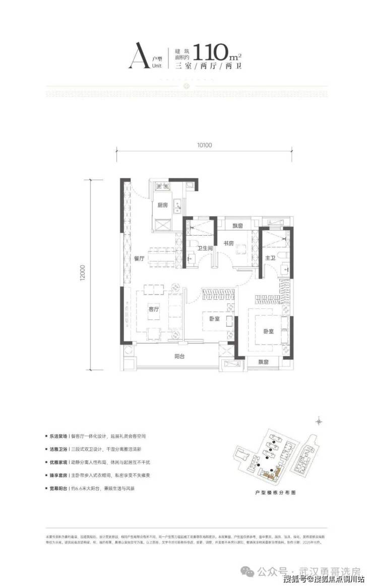
户型图如下:
目前首开为2号楼,面积为110-115-120-135平,
样板房有110(实际为111平)和135平(实际为132平)户型
🏡☎️武汉绿城桂语江南售楼处电话:400-116-7720转接777【营销中心】
🏡☎️武汉绿城桂语江南售楼处位置:400-116-7720转接777【楼盘电话】
🏡房价特价信息丨优惠政策丨详细解答丨在售房源丨在售户型图丨项目介绍丨
周边配套丨VR看房丨楼盘图丨沙盘图丨位置图丨配套图丨售楼处地址丨足不出户丨
声明:本文由入驻焦点开放平台的作者撰写,除焦点官方账号外,观点仅代表作者本人,不代表焦点立场。
