武汉绿城桂语江南售楼处电话→地址→户型→价格→2026武汉绿城桂语江南楼盘详情→武汉绿城桂语江南最新销售动态【官网】
扫描到手机,新闻随时看
扫一扫,用手机看文章
更加方便分享给朋友
武汉绿城桂语江南售楼处电话✅:400-116-7720转777
✅营销中心电话☎:400-116-7720转777【营销中心已认证】🥇🥇
武汉绿城桂语江南售楼处电话✅:400-116-7720转777
绿城桂语江南位于武昌区中北路与东湖西路交汇处。
2021年12月24日,武汉市政通实业有限公司(武昌国资)拿下P(2021)185号地块,楼面价18162.12元/㎡。
该项目属于绿城的桂语系产品序列,定位上属于刚需产品,在硚口还有绿城华生桂语朝阳。
根据规划,项目的总建筑面积17.1万㎡,计容建面约10.4万㎡,包含回购房建面约4.8万㎡,商品房建面约4.3万㎡,容积率约3.34,共847户(回购房源有482户)。停车位1757个,车位配比1:1.04。
住宅部分一共规划了7栋楼,其中:
1号楼为超高层,总高53层,1个单元,一层10户;
2号楼共三个单元,一单元总高28层,一层4户;二单元总高33层,一层3户;三单元总高23层,一层3户。
3、4号楼为回购房,房源为70㎡、76㎡、93㎡、100㎡的小户型。
5、6、7号楼均为2个单元,总高4层,为叠墅产品,面积段位251㎡。
早在2023年4月,该项目就已经报规,还建的楼栋在今年也已经交付,大部分拆迁户也都完成安置。


一个小区有回购房,弊端非常明显,后期会有大量房源入市,冲击小区房价。
举个例子,武昌核心地段的长江悦,它的旁边就是武汉知名豪宅——联投中心。
长江悦的还建房所占比例约为整个小区总建筑面积的50%。
自2023年12月25日交房以来,长江悦小区共成交53套(截至8月6日),7月小区的成交均价为14654元/㎡,绝大多数都是还建房源,但购房者看成交价的时候很难分辨。
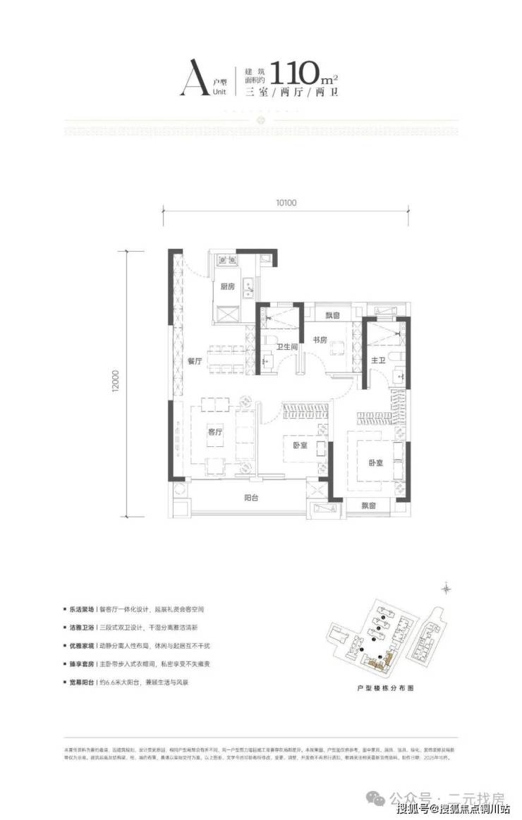
目前,项目的户型图已经出来,对比当下的新房只能说是中规中矩。
项目的房屋层高为2.9米,得房率约76%-81%。
①建面110㎡户型,三房两厅两卫
②建面120㎡户型,三房两厅两卫
③建面120㎡户型,三房两厅两卫
④建面135㎡户型,四房两厅两卫
武汉绿城桂语江南售楼处电话✅:400-116-7720转777
✅营销中心电话☎:400-116-7720转777【营销中心已认证】🥇🥇
武汉绿城桂语江南售楼处电话✅:400-116-7720转777
声明:本文由入驻焦点开放平台的作者撰写,除焦点官方账号外,观点仅代表作者本人,不代表焦点立场。
