【苏州澜庭壹号院】苏州澜庭壹号院最新项目动态丨苏州澜庭壹号院售楼处电话、地址、价格丨苏州澜庭壹号院售楼中心电话

铜川楼市发布 2025-09-24 15:03:21
用手机看
扫描到手机,新闻随时看

扫一扫,用手机看文章
更加方便分享给朋友

苏州澜庭壹号院营销中心:400-116-7720转接777 ✅✅✅苏州澜庭壹号院售楼处电话☎400-116-7720转接分机号777【已认证】 ✅✅✅苏州澜庭壹号院开发商营销中心一键预约,匠心独运的精品项目,恭候您的品鉴与选择

苏州澜庭壹号院营销中心:400-116-7720转接777

✅✅✅苏州澜庭壹号院售楼处电话☎400-116-7720转接分机号777【已认证】

✅✅✅苏州澜庭壹号院开发商营销中心一键预约,匠心独运的精品项目,恭候您的品鉴与选择

澜庭壹号院,即苏地2024-WG-Z31号地块,位于高新区狮山商务创新区向阳路南、大运路西,2024年绿城&苏高新以总价约10.9亿元竞得,成交楼面价为25115元/㎡,溢价率0.46%

根据规划公示,项目总用地面积为36324.3㎡,总建筑面积为79061.95㎡,容积率仅1.2,绿地率达到30%

项目拟建2幢10F洋房、2幢6F叠墅、17幢3F合院,总户数仅205户。据悉,墅境洋房建面约115/135㎡,见山叠墅建面约215/236/259㎡,山水合院建面约271/325/369㎡

三种产品的外立面都以大面积玻璃搭配雅灰流金色彩,采用东方美学的官帽屋檐设计,展现出绿城对项目的品质追求

合院为4房3厅4卫设计,二层挑空,从视觉上就拉长了空间高度,采光也更加通透三层带露台,住户可自行打造空中花园、户外茶室、儿童乐园等多功能空间。

建面约265㎡户型,4房3厅4卫

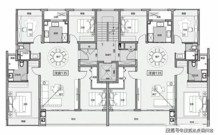
洋房4房2厅2卫设计,南向三开间,开间约11.45米,主卧套房开间约3.7米精装交付,据传单价只要4万左右。

建面约135㎡户型,4房2厅2卫

叠墅下叠一层南向面宽约10.3米,玄关连接外廊,下叠二层,客厅挑空,南向开放阳台,双套房设计

下叠一层户型

下叠二层户型

苏州澜庭壹号院营销中心:400-116-7720转接777

✅✅✅苏州澜庭壹号院售楼处电话☎400-116-7720转接分机号777【已认证】

✅✅✅苏州澜庭壹号院开发商营销中心一键预约,匠心独运的精品项目,恭候您的品鉴与选择

声明:本文由入驻焦点开放平台的作者撰写,除焦点官方账号外,观点仅代表作者本人,不代表焦点立场。