2026【武汉恺德云麓】售楼处电话→户型→地址→价格→武汉恺德云麓楼盘详情→武汉恺德云麓最新销售动态
扫描到手机,新闻随时看
扫一扫,用手机看文章
更加方便分享给朋友
🌈武汉恺德云麓售楼处电话☎️400-116-7720转接666(专人接听)
🌈武汉恺德云麓营销中心电话:☎️400-116-7720转接666【营销中心】
🌈温馨提示:拨打400电话,听到嘀声后,输入分机号666即可!
恺德雲麓目前开发一期,共规划了2栋高层住宅。1号楼31层,2号楼40层,均为2个单元,1号楼为2梯3户和2梯4户配置,2号楼则为2梯2户(相当于1梯1户的居住体验)的超级配置。
建面约92平三房两厅两卫,优化后实际得房率做到了约95%,相当于市面上一般约120平户型。从样板间实景来看,小三房能有如此大客厅,超乎想象。主卧南侧多出来的休息区,简直是“神来之笔”。


建面约116平三房两厅两卫,优化后实际得房率高达约102%,相当于市面上一般约140平以上户型。作为南北通透的边户,面积段并不大,却拥有超级大横厅+三房配置,还有匠心独运的南向卫生间,爆款无疑。
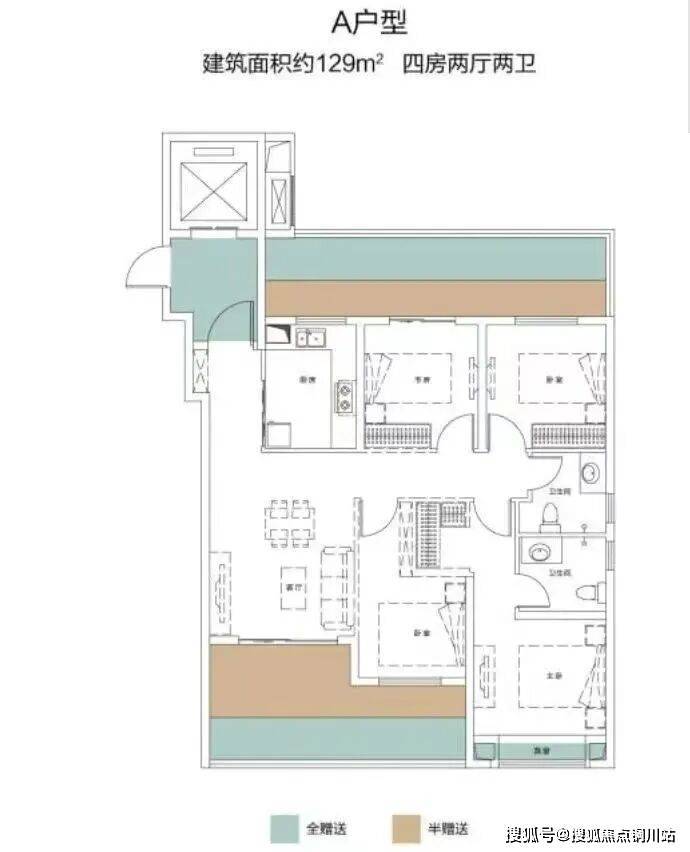
建面约129平四房两厅两卫,优化后实际得房率约98%,市面上一般约160平左右的大户型才能拥有旗鼓相当的使用面积。129平做四房,本已少见,主卧还能做套房设计,带独立卫浴和步入式大衣橱。该户型还可享一梯一户入户体验,并拥有独立的超大入户花园,这些可看齐大平层豪宅了。
🌈武汉恺德云麓售楼处电话☎️400-116-7720转接666(专人接听)
声明:本文由入驻焦点开放平台的作者撰写,除焦点官方账号外,观点仅代表作者本人,不代表焦点立场。
