【最新发布】2025苏州蠡棠森屿售楼处电话丨苏州蠡棠森屿售楼部地址丨楼盘位置丨详情丨项目动态
扫描到手机,新闻随时看
扫一扫,用手机看文章
更加方便分享给朋友
苏州蠡棠森屿售楼处电话✅:400-116-7720转999
✅苏州蠡棠森屿营销中心电话☎:400-116-7720转999【营销中心已认证】🥇🥇
苏州蠡棠森屿营销中心电话☎:400-116-7720转999【营销中心已认证】🥇🥇

蠡棠森屿项目采用了苏州首创的错层阳台立面设计,户户拥有大露台。通过露台外伸、奇偶层错位的设计,以及客厅与花园两层通高联通的方式,以L型咬合方式形成环幕边厅花园,拥有270°的无遮挡开阔视野,形成真正意义上的空中庭院。


20栋小高层以12-17F黄金高度错动布局,楼间距最宽达到约60米,相当于3个标准足球场的呼吸尺度,确保低层住户也能拥有无遮挡的采光权。

项目以曲面转角院落+南北双花园的创新设计,打造户均约30-50㎡空中庭院矩阵。最大约75㎡可使用露台面积,相当于将一整套普通刚需小户型的空间馈赠给生活。
▲效果图
如果将视线再拉远,会发现双曲面铝板工艺的建筑立面与空中庭院实现「生态无缝衔接」,每层错动退台形成「梯田式」绿化矩阵,形成会呼吸的立体屏风。

▲效果图
主入口是社区向城市展现气度与格调的最直观表达,蠡棠森屿的设计灵感源自迪拜艾迪逊酒店,开创了苏州豪宅前所未有的宏大气派——一条约200米长的超尺度迎宾大道。
▲实景图
穿过百米豪门,是一座挑高约7.5米神似小凡尔赛宫的酒店式入户大堂。巨型半球体艺术装置悬于中庭,曲线如同天鹅收拢的羽翼般优雅高级。黑白灰与光影、石材,勾勒出当代望族的审美疆界,也把仪式感拉到最上限。
▲实景图
在蠡棠森屿,各色奢石成为随处可见的标配品。蓝翡翠景墙造价超百万、范思哲黑大理石仿若将暗夜星云、冰川白玉奢石在灯光下泛起月壤切片的冷辉,还有巴黎冰玉、太古黑金大理石…无一不是蠡棠森屿的顶豪态度。
▲实景图
项目打造约2000㎡下沉式垂直高端会所,包含有恒温泳池、健身中心、茶室、私宴厅等功能区,几乎所有空间都带全景落地窗,联动下沉式庭院广场。重点是规格非常高,几乎全参照星级酒店的配置来做的。
▲实景图
比如,使用频率最高的健身房,器械全部采用全球一线品牌美国“lifeFitness力健”,光是跑步机就价值6位数;比如宽约10米,长约25米的恒温泳池,跟上海华尔道夫酒店同款,泳池一侧连接超大落地窗,引自然光和四季景致入内。
▲实景图

▲泳池效果图
还有同频星级酒店的精装地下大堂。

▲效果图
蠡棠森屿户型创新设计,通过L型咬合方式形成环幕边厅花园,270°的无遮挡开阔视野,形成真正意义上的空中庭院。此外北侧还拥有超大公共平台,居住舒适度更高。
蠡棠森屿共计打造了3个面积段、6种户型,建面约150㎡、约185㎡、约220㎡,都是一梯一户大平层+约30-50㎡的墅级空中庭院,让生活的每一秒能能自主呼吸。
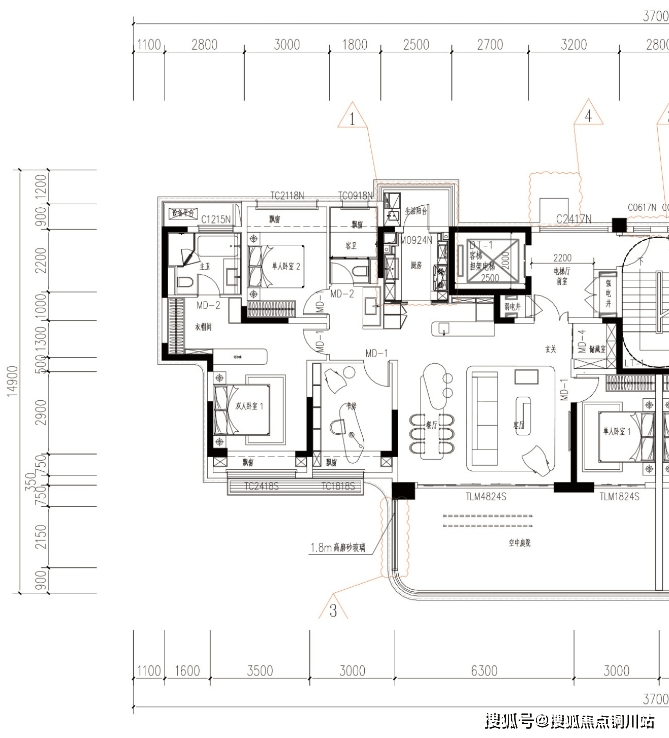
▲150平户型——四房三卫的双套房
150㎡核心亮点:南向L型巨幕空中庭院,加上双层挑高设计,让客厅和空中花园拥有了无遮挡的IMAX级观景效果。北向还赠送了超大公共平台,可以作为“家庭第二客厅”。


声明:本文由入驻焦点开放平台的作者撰写,除焦点官方账号外,观点仅代表作者本人,不代表焦点立场。
