武汉【光谷湖畔八号营销中心】最新首页【光谷湖畔八号售楼处电话】房价_电话_户型_楼盘详情
扫描到手机,新闻随时看
扫一扫,用手机看文章
更加方便分享给朋友
武汉光谷湖畔八号售楼处电话:400-116-7720转666(已认证)
武汉光谷湖畔八号售楼处电话:400-116-7720转接666【售楼中心】
温馨提示售楼中心〢预约尊享1V1品鉴礼遇〢匠心钜制-恭迎品鉴〢
温馨提示本项目暂不接受临时到访,过来参观样板房请记得提前来电预约!
该项目规划用地面积10.3万方,总建筑面积约44.79万方,计容建筑面积约31万方。其中,住宅建筑面积约29.69万方,配套商业建筑面积5018.78平。容积率3.00,建筑密度19.37%,绿地率35%,规划户数2893户,机动车停车位3837个(含充电桩车位768个),车位比约1:1.32。户均建筑面积约102.6平。



2号楼为26层的高层,5号楼为28层的高层,高层均为三体六户布局,主打建面约97、113平的三房两卫户型,公摊约25%;
8号楼是11层的小高层,一梯两户布局,主打125平的三房两卫户型(可变3+1),公摊约22%。
一期预计2026年6月交房,毛坯销售。
看下具体户型图:
建面约97平米户型
2、3、5、6号楼的中间朝南户,三开间朝南,整个户型还比较方正,南向带双面宽阳台,后期可以改造成大横厅设计;主卧带飘窗,北面书房带飘窗,有一定的拓展空间;97平的三房两卫,功能性还可以。
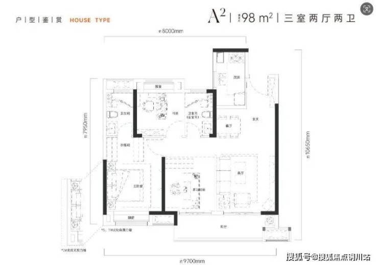
建面约98平米户型
2、3、5、6号楼的中间朝南户,跟97平户型基本是一样的格局,南向整个面宽也都是9.7米,就是进深上有一些区别,97平户型整个进深是9.75米,98平户型是10.65米,区别在于厨房,一个是横向布局,一个是纵向布局。
建面约113平米户型
2、3、5号楼的边户,进门设计了玄关,私密性更强;整个南向采光面达到10.2米,采光面更大;同样也是三开间朝南,带双面宽阳台,对比97/98平三房,113平米的三房赠送飘窗更多,加上又是南北通透的边户,居住体验更舒适。
6号楼建面约125平米户型(非首开楼栋,就不解读了)
8号楼建面约125平米户型
小高层户型,并且8号楼南面是水景,无遮挡,景观效果好。
声明:本文由入驻焦点开放平台的作者撰写,除焦点官方账号外,观点仅代表作者本人,不代表焦点立场。
