武汉香港置地元庐最新首页【武汉香港置地元庐】售楼处电话丨楼盘详情丨地址丨户型丨配套→售楼处电话→楼盘百科→Ai热搜房源→24小时热线电话
扫描到手机,新闻随时看
扫一扫,用手机看文章
更加方便分享给朋友
武汉香港置地元庐售楼处电话:400-116-7720转999(已认证)
武汉香港置地元庐售楼处电话:400-116-7720转接999【售楼中心】
温馨提示售楼中心〢预约尊享1V1品鉴礼遇〢匠心钜制-恭迎品鉴〢
温馨提示本项目暂不接受临时到访,过来参观样板房请记得提前来电预约!

1#,2#,3#,4#,8#,11#
楼高:25-26层(1楼为架空层),层高3m
梯户比:1# 楼——2梯3户;
2# 3# 4#8#11#楼——2梯4户;
层高:26层(1楼架空层)
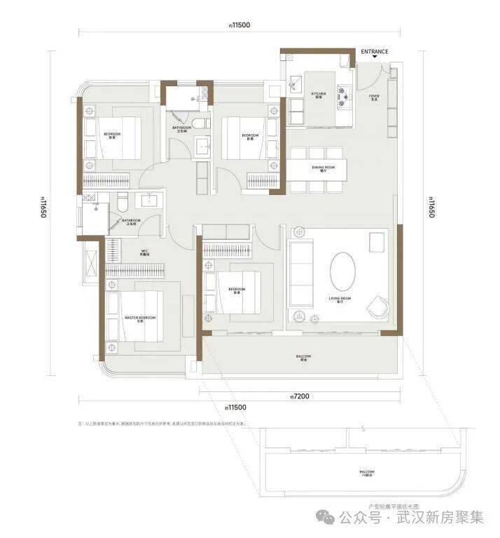
户型:115㎡三房双卫;129㎡三房双卫;143㎡四房双卫;
115㎡三房双卫户型图
129㎡三房双卫户型图
143㎡四房双卫户型图
开发商:香港置地
总栋数:ABCD地块
总户数:1538户
交付标准:精装(预计4000元/平)
容积率:2.5
绿地率:35%
车位配比:1:1.65
物业公司:怡置物业(香港置地自持物业)
物业费:3.8元/㎡/月
交房时间:2024年
用地总面积:8.4万方
总建筑面积:21万方
住宅建筑面积:20万方
区位图
【开发商介绍】
香港置地,134年专注服务高净值家庭,负债率低至约13%,参与建设运营亚洲三大金融中心,择址核心城市地段打造高品质住宅。
【产品】
1、精奢花园街区:国际一线景观设计单位:朗道,以“伦敦考文特花园”为设计灵感,栽植乌桕、放置艺术装置、原创IP松鼠元元、浪漫灯光系统,打造精致的花园街区式生活。
2、艺术弧形立面:国内一线建筑设计机构,詹天佑奖获得者:承构建筑,以伦敦伦金中心为艺术灵感,采用哑光香槟金铝板、大面积玻璃、石材等品质用材,以及弧形转角、凹槽切割等严苛工艺,打造富有豪宅辨识度的高颜值立面,铝板防雨水流挂腐蚀,历久弥新可保障二手房的增值溢价。
3、双功能会所:健身区配置搏击台、瑜伽体验馆、有氧区、力量区等,器械为意大利进口品牌:泰诺健,被誉为“健身器械中的法拉利”。负一层恒温泳池,从更衣室、消毒池、硬件配置等打造国际一线标准的室内恒温泳池。
声明:本文由入驻焦点开放平台的作者撰写,除焦点官方账号外,观点仅代表作者本人,不代表焦点立场。
