【苏州星河湖西源启】售楼处电话→户型→地址→苏州星河湖西源启最新价格→楼盘详情→最新销售动态
扫描到手机,新闻随时看
扫一扫,用手机看文章
更加方便分享给朋友
苏州星河湖西源启电话☎:400-116-7720转999【营销中心已认证】🥇🥇
苏州星河湖西源启营销中心电话☎:400-116-7720转999【营销中心已认证】🥇🥇
项目位于独墅湖西核芯地段,容积率1.25,产品为4F叠加+11F四代宅洋房,其中洋房约143㎡,叠加约167/188㎡。
最惊艳的还是产品!五大新规首创:社区全域抬板+全社区双首层+地上双车马院+全明景观车库+户户天空浮院,彻底刷新苏州人居标准!

什么是“抬板社区”呢?
这一创新设计在杭州楼市早有案例,就拿杭州大家咏月明庐为例,采用6米架空车库+5.6米架空层设计,将首层住宅标高提升近12米。

这样一来,整个居住组团如同被一座恢弘的空中平台托起,车库隐匿于平台之下,社区生活场景悉数铺陈于平台之上,传统意义上的 “一楼”约等同于常规建筑的 “四楼”。
更直白一点,它就像传统的吊脚楼,生活空间被抬离地面,一楼隐私差、采光差以及潮湿等问题迎刃而解。
其次,社区抬板后,人车可以做到完全分离,大大提升社区的安全性与安静度。
还有过去大家避而远之的配电房、垃圾房等都可以设置在1楼,2楼也能留出更多空间打造园林景观。
基于此,我们再来看星河·湖西源启:拟建24幢住宅,包括22栋4F叠加+2栋11F四代宅洋房,其中叠加共约194套,洋房约88套。

项目所有楼栋抬高约5.1米上盖,即首层全架空设计,过去的一楼在这里相当于二楼,视野更加开阔!

其次,配电房、垃圾房等功能性配套,均设置于与外部道路齐平的底层空间,实现了居住层与设备区的完全剥离,规避了传统社区因配套分布不均导致的楼栋价值差异,真正做到栋栋均好,无优劣之分。

自带约1500㎡下沉式会所,包含游泳池、健身房、瑜伽馆、私宴庭、室内高尔夫等丰富功能。
物业为国家一级物业管理资质的金钥匙物业——星河物业。
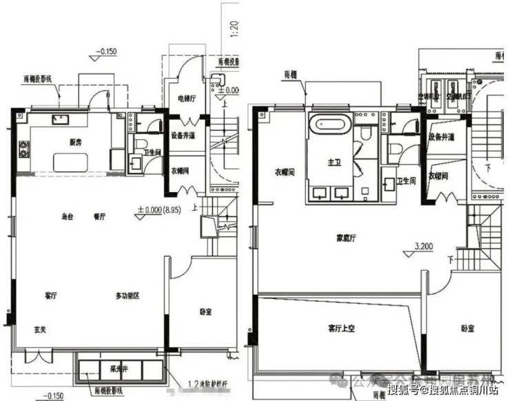
户型方面,清一色都是改善大户型,其中洋房约141㎡精装交付,叠加约167-188㎡,毛坯交付。


先看洋房户型,约143㎡4房2卫,这应该是目前吴中面积最小的洋房四代宅。
整体南向开间约14.5米,客厅开间约5m,主卧套房,北向生活阳台,分奇、偶数层,区别主要在于空中庭院,整个户型综合使用率超100%!

叠加为纯正的4F真叠墅。
下叠建面约188㎡,双独立入户(地库入户+一楼入户);
面宽相当感人,达到约10米,超大方厅约6.7米,全卧室朝南设计;
二层挑空,结合南北露台赠送,使用率高达约155%。
声明:本文由入驻焦点开放平台的作者撰写,除焦点官方账号外,观点仅代表作者本人,不代表焦点立场。
