最新楼市发布-2026苏州紫金翡丽甲第-售楼处-实时动态-楼盘详情-售楼处电话
扫描到手机,新闻随时看
扫一扫,用手机看文章
更加方便分享给朋友
苏州紫金翡丽甲第 售楼处电话☎:400-116-7720转777【营销中心已认证】🥇🥇
✅苏州紫金翡丽甲第营销中心电话☎:400-116-7720转777【营销中心已认证】🥇🥇
🏆本项目暂不接受临时到访,看房请提前预约,可尊享内部特惠!
🏆为您安排楼盘内场专业销售人员一对一接待服务,给您更贴心的看房体验!
地块就在绿城桃源里旁边,紧密相连,地块面积也非常迷你,而且同样要求打造为墅类产品,大胆猜下,会不会是绿城桃源里2.0?又一个5W+要来了?
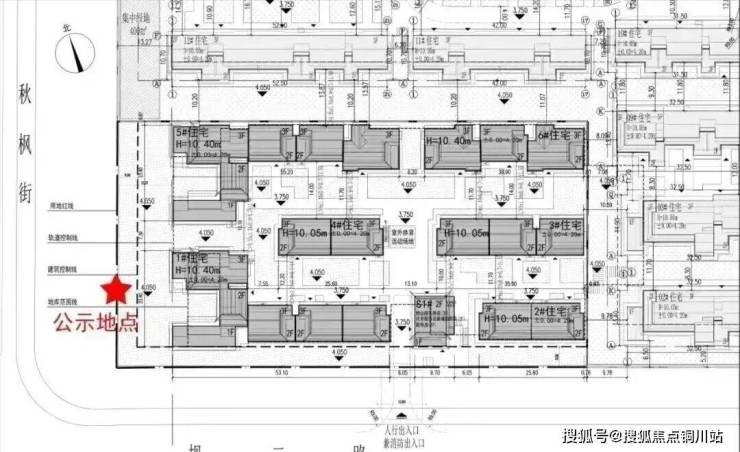
从规划来看,项目总用地面积6895.0平方米,总建筑面积10979.42平方米。其中地上建筑面积5976.42平方米,地下建筑面积5003.0平方米。 (注:本项目与WJ-J-2023-20地块住宅项目地库增设联通口,地库面积增加397平方米,并在联通口处增设2个机动车位)
小区最大建筑高度10.40米,容积率1.03,建筑密度39.2%,绿地率30.1%,机动车停车位61个。
小区共计打造了6栋3F住宅,大概率是合院+联排的设计!
建筑风格来看,也是中式风格,效果图上来看,外立面用的是铝合金门窗、仿石材勒脚、铝型材、小青瓦和暖白色涂料,这也基本跟绿城桃源里的合院是一样的。
从公示来看,本项目与WJ-J-2023-20地块住宅项目(绿城桃源里)地库增设联通口,地库面积增加397平方米,并在联通口处增设2个机动车位,且小区位置与绿城桃源里紧密相连,则大概率项目可以算作绿城桃源里二期,产品上也可以参照绿城桃源里了!

胥江板块
目前天花板4.75W
重点关注项目:胥江澜岸
胥江板块今年目前也还有一个项目还没入市,就是胥江致新姑苏区胥江51号地块项目,即,胥江澜岸,位于姑苏区吴门桥街道劳动路南、凌波路东,是8月31日,苏州市胥江致新城市发展有限公司以底价147346万元竞得,成交楼面价13035元/平。

根据规划,项目拟建12栋15-17F住宅和1栋31F商业大厦;
其住宅部分,拟建12栋15-17F住宅,其中2栋15F小高层、4栋16F小高层、6栋17F小高层;

苏州紫金翡丽甲第 售楼处电话☎:400-116-7720转777【营销中心已认证】🥇🥇
✅苏州紫金翡丽甲第营销中心电话☎:400-116-7720转777【营销中心已认证】🥇🥇
🏆本项目暂不接受临时到访,看房请提前预约,可尊享内部特惠!
🏆为您安排楼盘内场专业销售人员一对一接待服务,给您更贴心的看房体验!
声明:本文由入驻焦点开放平台的作者撰写,除焦点官方账号外,观点仅代表作者本人,不代表焦点立场。
