【太原滨河润府】售楼处电话→户型→地址→太原滨河润府最新价格→楼盘详情→最新销售动态

铜川楼市发布 2025-10-11 15:17:17
用手机看
扫描到手机,新闻随时看

扫一扫,用手机看文章
更加方便分享给朋友

太原滨河润府售楼处电话✅:400-116-7720转999 ✅太原滨河润府营销中心电话☎:400-116-7720转999【营销中心已认证】🥇🥇 太原滨河润府营销中心电话☎:400-116-7720转999【营销中心已认证】🥇🥇

太原滨河润府售楼处电话✅:400-116-7720转999

太原滨河润府营销中心电话☎:400-116-7720转999【营销中心已认证】🥇🥇

太原滨河润府营销中心电话☎:400-116-7720转999【营销中心已认证】🥇🥇

△ 区位及周边分析

因北侧为主要人流来向,且拥有一线景观资源,故而将示范区的选址设置在西北角,可远眺汾河景观,亦可对仗和园美景。

出世繁华 入世安谧

繁华贵胄,熙熙攘攘。

宁静安谧,志存高远。

△ 售楼处北侧立面

在示范区整体规划中,我们以出世繁华与入世安谧相互呼应为主题,打造一个充满活力和宁静舒适的居住环境。外部空间以繁华的都市景色为背景,林下诗意空间则为内部空间带来宁静与舒适感。同时充分运用“以古喻今,以今释古”的理念,营造出富有文化内涵和艺术价值的礼序空间。

△ 空间场景打造思路

在规划设计中,以对称的中心轴线彰显华贵雍容气场,将古典建筑的严谨和优雅融入其中。以蜿蜒的通幽曲径体现典雅文化气质,打造一个充满诗意和舒适感的居住空间。

△ 空间、流线、视野分析

示范区主要打造了礼序空间主轴、景观空间主轴和静谧归家轴线,营造出不同特色的居住环境。

△ 整体首层平面图

礼序空间主轴作为示范区的核心,将各个功能区域串联起来,打造出一种有序的游览体验;景观空间主轴以自然景观和绿化为主导,为大家提供一个放松和休息的场所,移步异景,满足人们的不同需求;静谧归家轴线为居民打造一条回家之路,让他们可以在喧嚣的城市中寻找到一片安静的净土。

△ 示范区整体鸟瞰

山水环抱 澎湃晋阳

峻岭巍峨,汾川逶迤。

山水环抱,澎湃晋阳。

大门采用了极具气势感的设计,以高大雄伟的片墙和宽阔的门洞为主体,整体长达66米,高达8.8米,营造出一种威严而庄重的气氛。

△ 示范区大门北侧主入口

主立面的选材上,选用范思哲黑石材与香槟金铝板的组合,形成了坚实稳固而富丽堂皇之感。整个大门的设计非常简洁而大气,没有任何多余的装饰,却通过材质和造型的完美结合,展现出了非凡的气势和质感。

△ 示范区大门北侧透视

照壁上的山水图案是整个设计的亮点之一。照壁作为中国传统建筑中的一种元素,通常被用来遮挡和装饰建筑物的正门,以金属铝板的不同尺寸及角度变化,在照壁出描摹出山水图的形状。

- 左右滑动查看《汾河千里图长卷》-

△ 照壁格栅工艺详解

本案的格栅图溯源山西大型版画《汾河千里图》,这幅版画是中国传统文化和山西地方特色的代表作品之一,以其独特的艺术形式和深刻的文化内涵而著名。通过对其中的山峦、河流、村庄等元素的提炼和简化,形成了具有现代感的几何形状。这些几何形状组合在一起,形成了一种优美的节奏感和动态感,为大门的整体设计增添了一份独特的艺术魅力。

△ 示范区大门细节

雨棚是连接照壁和大门的过渡空间,它的顶部被设计成与照壁上的山水图案相呼应的形状。这些图案通过连续和重复的设计手法,一直延伸到雨棚的顶部,形成了接天莲叶无穷尽的感觉,不仅增加了整个大门的立体感和层次感,同时也使整个示范区更加具有艺术性和观赏性。

△ 示范区大门对景

△ 示范区大门背立面

△ 示范区大门节点展示

精致隐奢 筑梦晋阳

融古喻今,浑厚庄重。

精致隐奢,筑梦晋阳。

△ 售楼处北侧正立面

在售楼处规划设计中,我们以融古喻今,浑厚庄重,精致隐奢,筑梦晋阳为设计理念,打造一处别具一格的展示空间。

△ 售楼处北侧正整体

设计灵感源于山西晋阳的历史文化底蕴,我们将古朴的建筑元素与现代设计语言相结合,形成独特的视觉效果。外观上,采用了传统的建筑风格,结合现代简约的线条,营造出庄重而又不失现代感的立面。同时,为了呼应主题,我们将古代建筑中的格栅、纹理等元素巧妙地应用于设计中,使整个售楼处散发出浑厚的文化气息。

△ 售楼处中心水院

内部空间则以精致隐奢为主题,我们追求细节处的品质与格调。运用高档的材质和精湛的工艺,打造出奢华而舒适的氛围。在色彩搭配上,以暖色调为主,营造出温馨、舒适的氛围,打造出充满艺术感的展示空间。

△ 售楼处连廊空间

外立面采用深灰色的石材,不仅给整个建筑带来了稳重肃穆的基调,同时也显得高贵而大气。这种颜色的石材在阳光下会呈现出不同的色调,使整个建筑更有立体感和质感。

△ 售楼处主入口空间

与此同时,结合香槟金铝板,点缀出黑金尊贵的美感,为整个建筑增添了一份华贵的气息。

△ 示范区空间节点打造

内部规划结构采用山西传统的园林建筑风格,南北向营造三进院落,体现晋风园林特色。从入口处的街角广场和大门开始,形成了一个宽敞明亮的迎客空间。同时东西向院落错落有序,形制贯通联动。

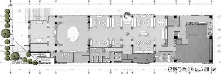
△ 一层平面布置图

△ 二层平面布置图

- 左右滑动查看节点展示 -

雍容尊享 礼遇晋阳

<社区大堂>

多重进制,多维空间。

雍容尊享,礼遇晋阳。

△ 社区大堂西侧效果图

在社区大堂的设计中,立面采用对称的立面布局,黑金的立面配色,彰显入户大堂的气质;七米的超高层高,恢弘的归家仪式,体现社区高级的品质;多维的会所功能,专属的空间体验,传递豪宅大盘的魅力。

△ 社区大堂西侧效果图

声明:本文由入驻焦点开放平台的作者撰写,除焦点官方账号外,观点仅代表作者本人,不代表焦点立场。