【营销中心】长沙招商揽阅售楼处电话→长沙招商揽阅售楼中心首页网站→长沙招商揽阅楼盘百科详情→24小时电话→最新发布!
扫描到手机,新闻随时看
扫一扫,用手机看文章
更加方便分享给朋友
长沙招商揽阅售楼处电话:400-116-7720转999(已认证)
长沙招商揽阅售楼处电话:400-116-7720转999【售楼中心】
温馨提示售楼中心〢预约尊享1V1品鉴礼遇〢匠心钜制-恭迎品鉴〢
温馨提示本项目暂不接受临时到访,过来参观样板房请记得提前来电预约!

开发企业:招商蛇口
产品类型:高层住宅
建筑风格:现代雅奢
0
1
核心推荐理由

01 全景度假,把公园搬到家的楼下
4600㎡主入口景观前场,结合水景与树阵的穿插,熟悉与烟火交织,让回家变成慢慢松弛的归途,充满仪式感。双层景观体系,成就世界顶级酒店虹夕诺雅野奢感。
02 灰空间革命,献给家外的生活场景
3600㎡度假公园、3000㎡架空层、1200㎡会所共同组成长沙揽阅的7800㎡超级公区,重置空间,更增加海量生活体验和场景;长沙首创双层立体式公区,更大化场景容量。
03 会所新形态,在度假中度过生活
设想100种生活方式,注入12幕首创场景,以运营发散多样化场景,呼应人们对于社交多样化需求,赋予使用者场景变化的自由,让场景激活更多生活方式。
04 艺术新译,与青年匹配的摩登风
项目广泛应用文化创意,转译非遗工艺与手法,赋予成品更熟悉与先锋的审美。设计融入更贴近年轻群体的艺术化表达,无声雕琢场景空间,赋予建筑年轻美学的品质感、高级感、艺术感。



0
2
项目概况
招商揽阅择址于长沙岳麓区,梅溪湖国际生活圈,地处麓谷大道与枫林三路交汇处,落座精粹资源集群,展映理想无限缤纷。
社区大门、展示区、会所位于地块西侧主要展示面,与大区标高错层,形成下沉式的绿谷景观区,作为社区的核心景观区,链接南北向的社区景观轴,与沿街的城市活力轴,整体形成一个充满生命力的“H”轴规划结构。
结合场地条件与规划条件,整个规划产品为15+1F~18F小高层住宅楼(12幢)及若干低层底商配套设施楼组成。规划布局中心景观资源佳位置设置大户型,最大化景观视野;架空层尽可能设置全架空,社区大堂结合下沉庭院及架空层泛会所化,提高社区品质。




0
3
外立面
项目整体风格为现代雅奢,白金色调,设计提取长沙非遗手工棕编符号,通过现代手法转译,形成横纵交织的立面构成关系,立面采用圆弧倒角与公建化大落地窗,筑就天幕流线立面。顶部弧形流线元素,流体灵动,奢境典雅,增强标识感;塔身层间线条展现轻盈精贵的气质,突出公建化立面的端庄
单元大堂立面延续主体现代雅奢风格,立面简约利落,以米白色月光米黄石材、香槟金铝板及潘多拉彩虹印象奢石呼应主体白金色调,以精工细节强化立面品质,石材采用波浪纹、圆弧倒角、拉槽、抛光等细节工艺,铝板采用倒角、凹槽结合密拼工艺,提升归家尊贵感。






0
4
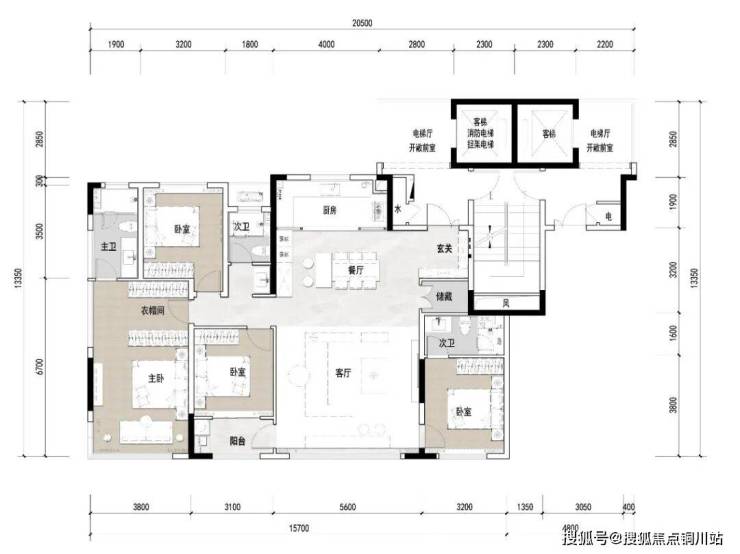
主力户型
项目主力户型面积为建面约117-139㎡稀缺小高层,两梯两户入户。招商蛇口在长沙打造的首个新规"负公摊"产品,最高得房超110%。各面积段产品均涵盖了极致赠送、阳光入户、南向极致面宽、南北通透、超小公摊、超高使用率、主卧飘窗,极致视野享受、多元化可能性等特点。



0
5
精装设计
会所设计
1、设计概述
展示区室内空间设计延续建筑景观的设计风格,通过总体布局与分幕空间的递进设计,将非遗技艺转化为空间元素,在传承湘江文脉的同时更具有艺术观赏性,在材质的工艺和纹样中使用棕编、湘绣石木雕等传统技艺,实现传统美学与现代审美的创造性融合。不仅展示了「松弛」与「度假」主题的深度阐释,更能在不同功能区之间实现无缝衔接与情感共鸣。为客户构筑了一个具有艺术美感与多重体验层次的城市微度假社区。
功能分区
「归屿」门厅:采用中轴对称的布局设计,强化空间的秩序感与仪式体验。在灯光设计上,搭配聚光灯与柔和的环境光,使得空间层次分明,同时营造出空间的氛围感。


「晨昏线」Cafebar:通过“微度假”与“松弛感”作为核心设计思路,为业主营造一个轻松交流的场所,实现工作与生活场景的自然切换。白天以咖啡吧营造轻松氛围,夜间则转为氛围感更强的小酒馆场景。通过软装材质、舒适坐席及氛围音乐的搭配,使空间具备明显的时间转换感,提供丰富的使用体验。








「节律」健身房:前厅采用简约长桌设计,为使用者提供阅读咖啡杂志、进行轻松交谈的场所,有助于舒缓情绪,为运动前后提供过渡空间。同时配备独立的台球室,通过巧妙的艺术氛围营造,让健身房既满足运动休闲需求,也创造了一个适宜交流的环境。大面积玻璃窗及室外浮岛绿植的运用,不仅增加了室内采光,也使运动空间与自然景观相融合,打造出运动与自然和谐共生的氛围。




「稚趣」儿童乐园:以趣味性和互动性为核心,为营造充满童趣与乐趣的多功能游乐空间。局部层高超过8米,内部场景丰富多样,涵盖大型装置儿童滑梯、海洋泡泡池、模拟超市、骑马电玩、奶牛牧场、儿童图书馆、积木空间、儿童卫生间等。






「回声」剧场:打造社区邻里交流的小剧场,空间内配备优质的音响与投影系统,可用于小型表演、社区电影等多样的生活场景。






样板房展示
117户型,打造Z时代年轻人的生活方式,定位自然主义的静奢居所,可以写作,游戏,撸猫,松弛治愈。






128户型,打造时尚的艺术居所,可以做艺术起居室、微醺小酒吧、开放式书房、儿童书房。





139户型,打造多元交织的折衷美学居所,三房+超大公区或者四房,未来都可以任意切换。




声明:本文由入驻焦点开放平台的作者撰写,除焦点官方账号外,观点仅代表作者本人,不代表焦点立场。
