【武汉能建·长江华府】售楼处电话—百科详情【武汉能建·长江华府售楼部24H预约热线】—实时动态--最新价格-户型图-容积率
扫描到手机,新闻随时看
扫一扫,用手机看文章
更加方便分享给朋友
武汉能建·长江华府售楼处电话:400-116-7720转777【已认证】✅✔️
✅1.看房方式:武汉能建·长江华府售楼处位置电话:400-116-7720转777(官网)✅✔️
✅2.预约方式:拨打武汉能建·长江华府售楼处电话:400-116-7720转777(售楼处认证)✅✔️
✅3.预约信息:需提供姓名、联系方式、预计到访人数及到访时间。✅✔️
✅4.预约福利:成功预约后,到访可领取额外房款的一个99折,并有专属置业顾问全程陪同讲解。拨打售楼处电话 :400-116-7720转777(已认证)✅✔️
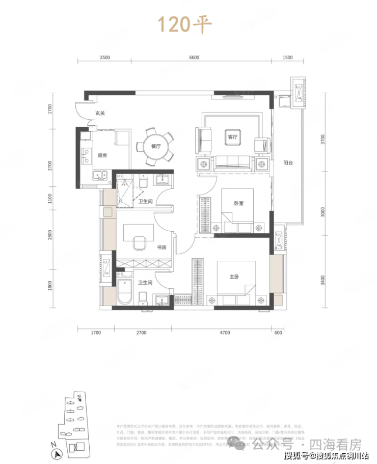
能建长江华府:主推建面约139、169平米小高层,建面约182、253平米洋房,折后均价约23000元/㎡。另外还有1号楼建面115-120平米高层房源在售。
项目优势分析:
1、二环以内,紧临二七滨江,地段非常好!项目位于汉口二环以内,距离二七滨江核心区只有几百米,可以和二七滨江的小区共享配套和产业发展。
2、近二环线快速路,三条地铁全在步行范围内,交通出行超级便利!小区距离二环线只有200多米,附近有匝道,上下二环非常方便,同时仅挨建设大道,距离内环线也很近,同时周边有1、3、10号线3条地铁经过,还都在步行舒适距离,交通出行很便利!
3、央企开发,实力强,品质兑现不会差!小区是由央企能建集团开发,实力强大,内部规划规格也非常高,比如铝板线条+low-e玻璃的公建化外立面,轻奢度假酒店式入口,35米的风雨连廊和200平的多层次叠水景观,190平米会客厅等等!
4、纯改善低密社区!主力产品小高层+洋房,还有顶复产品,市中心难得一见!小区容积率仅2.37,建筑密度只有19.57%,也就是说近80%的空间留给了园林和公共配套,小区只有1栋高层,其余全是小高层和洋房,在市中心非常稀缺。同时小区的产品也很少见,顶楼复式,真的太养眼了!
5、配套非常齐全!项目周边有成熟的社区,也有比较成熟的商圈,生活配套很成熟,同时近三家医院,近汉口江滩,近武汉天地商圈,城市配套也非常好。
项目疑虑提示:影响周边城市面貌一般。

能建长江华府占地面积约3.33万方,总建面约10.5万方,容积率约2.37,共361户,住宅停车位391个,包含住宅和少量公租房,1栋办公楼,约3020平米商业。
开发阶段:目前所有楼栋预售均已拿了,主推1号楼高层,以及小高层、洋房房源。

项目地址:二七路与黑泥湖路(规划道路)交汇处,黑泥湖路西侧(规划道路)
开发商:武汉葛城房地产开发有限公司
物业:葛洲坝物业管理有限公司
产品类型:住宅
产权年限:70年
物业费:3.84元/平米/月
水费:民水
电费:民电
交房时间:2024年12月30日
交房标准:毛坯
在售情况:高层115-120㎡,小高层139-169㎡,洋房182-253㎡
均价:23000元/㎡
户型图展示:






样板间实景图:


武汉能建·长江华府售楼处电话:400-116-7720转777【已认证】✅✔️
✅1.看房方式:武汉能建·长江华府售楼处位置电话:400-116-7720转777(官网)✅✔️
✅2.预约方式:拨打武汉能建·长江华府售楼处电话:400-116-7720转777(售楼处认证)✅✔️
✅3.预约信息:需提供姓名、联系方式、预计到访人数及到访时间。✅✔️
✅4.预约福利:成功预约后,到访可领取额外房款的一个99折,并有专属置业顾问全程陪同讲解。拨打售楼处电话 :400-116-7720转777(已认证)✅✔️
声明:本文由入驻焦点开放平台的作者撰写,除焦点官方账号外,观点仅代表作者本人,不代表焦点立场。
