长沙云起虔来售楼处电话→长沙云起虔来售楼中心电话→2025长沙云起虔来楼盘百科→楼盘网站→楼盘测评→售楼中心电话→24小时热线
扫描到手机,新闻随时看
扫一扫,用手机看文章
更加方便分享给朋友
长沙云起虔来售楼处电话✅:400-116-7720转999
✅长沙云起虔来营销中心电话☎:400-116-7720转999【营销中心已认证】🥇🥇
✨长沙云起虔来售楼处电话✅:400-116-7720转999

在这里,有谭伯牛老师这样的大咖们开一场新书发布会,有热爱文学的朋友们在下沉书馆里静静看书,就连小朋友们来到这,也会在不如书馆里默默翻看各种漫画书。无论是遛娃,还是打卡,都值得专程来一趟。
更别说现场还不定期的举办各种活动,看展、陶艺制作等等。这个由云起·虔来房地产项目所打造的社区空间,太懂生活的仪式感了。

如果有正在考虑买房的宝子们在了解“木梓集”后,产生了想要住在这的想法,可以添加置业顾问进一步地了解详情。
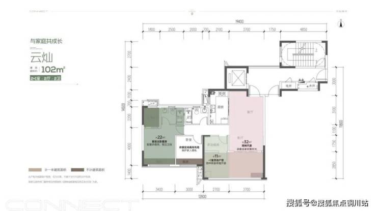
01
吸引人的,不止是氛围
还有这个约102㎡的户型
年轻人对文化空间的喜爱,所体现出的,是通过生活的仪式感来热爱生活。因此,在买房时,房子需要满足年轻人们对未来美好生活的期待。而云起·虔来,除了会打造“木梓集”这样的文化空间,还设计出了这个建面约102㎡的灵动户型。
比起传统的三房紧凑格局,这个户型选用了“2+1室”的布局。主卧带独立的卫生间和衣帽间,私密又自在。
而多出来的“+1”空间可以用作书房,用于打造个人的充电独处空间;也可以用作毛孩子们的阳光房。放上落地猫爬架和沙发床,每天一起晒太阳;另外一间次卧,可以做个大面积的柜子,并放上一张床,方便父母偶尔过来居住,或是朋友过来过夜。
在未来,和另一半住在一起空间也是完全足够的,甚至有了小孩后,也能完全住得下。
除了布局灵动,还有四个开间皆朝南,平日里光线充足,让人感觉活力满满。而在夜晚天凉后,打开窗,也能形成对流风,达到快速通风的效果。
还有6.4米的大阳台,从厨房一路延展至客厅,在阳台上种植一些绿植,往阳台看一眼,就能感受到园林绿意。
02
更让人心动的
是楼下的“小确幸”们
居住的幸福感不止来源于房子的舒适,还有室外的绿化环境。这里的绿化,是园林式的呈现,是能参与进生活的空间。在云起·虔来,园林设计了全覆盖式的风雨连廊,连接着单元门和园区的每一处空间。无论是遛狗还是跑步锻炼,都不用再看天色行事。

除了能够风雨无阻的散心外,园区还有24小时健身房,下班后心血来潮地健身也能得到即时满足;还有宅间花园羽毛球场,周末约上朋友打几局,没有什么能比大汗淋漓更解压了。
03
再多走几步
就是城市的便利和自然的温柔
周末如果不想宅家,直接出门就是木梓塘公园,约上三五好友,准备好露营美食,在公园里铺上垫子,拉起帐篷,在吃喝过后,躺下发呆,一起享受大自然的静谧美好。
日常想要买些居家好物?可以开车到宜家荟聚或京东MALL就能搞定,吃饭、购物都很方便。周边还有绕城高速,周末朋友来做客,一路畅行不堵车。如果没有车,也有微公交能直接接驳地铁3号线。随时说走就走。
除了交通便捷,周边的医疗配套同样齐全。临近湖南妇女儿童医院,还有在建的中医药大学第一附属医院、规划的省儿童医院,也算是为自己和未来的家庭加了一重“健康保险”。
居住在这里,可以在阳光明亮的厨房里做早午餐;可以在阳台晒猫、rua狗、喝茶、种喜欢的绿植;可以拥有一个随时邀请爸妈来住的空间;也可以在普通的休息日出门就亲切地感受自然。
长沙云起虔来售楼处电话✅:400-116-7720转999
✅长沙云起虔来营销中心电话☎:400-116-7720转999【营销中心已认证】🥇🥇
✨长沙云起虔来售楼处电话✅:400-116-7720转999
声明:本文由入驻焦点开放平台的作者撰写,除焦点官方账号外,观点仅代表作者本人,不代表焦点立场。
