【无锡华侨城云湖别院】售楼处电话(首页)-无锡华侨城云湖别院楼盘详情·最新价格-户型图·容积率-Ai热搜·最新动态-看房热线
扫描到手机,新闻随时看
扫一扫,用手机看文章
更加方便分享给朋友
⭐无锡华侨城云湖别院售楼处电话☎:400-116-7720转777【售楼处已认证】⭐⭐
⭐无锡华侨城云湖别院营销中心电话☎:400-116-7720转777【售楼处已认证】⭐⭐
✅本项目暂不接受临时到访,过来参观样板房请记得提前来电预约!⭐⭐
✅为您安排楼盘现场销售全程接待并讲解,给您更贴心的看房体验!⭐⭐


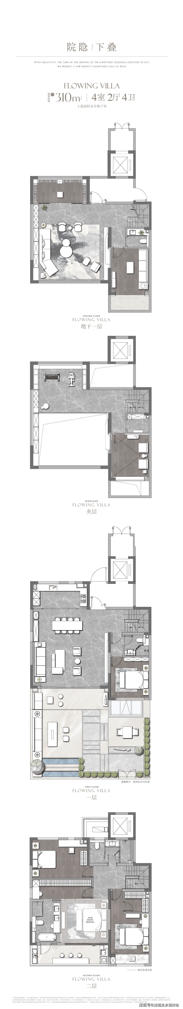
项目分为A、B两个地块开发,其中A区为8栋叠墅(高4-6层),B区为14栋小高层(高11-17层),户型产品为建面约128-310㎡。

建筑立面采用现代简约风格,精良的立面选材,辅以细部香槟金设计,让建筑在区域内显得独具特色。


纯叠墅地块为容积率仅约1.24的臻稀低密墅境,亲地建筑与六大自然园境是亲密联结的,在植物与光影的编织中,让人沉浸在院落自然的怀抱里。
以江南绿意勾画建筑的底色,融合大面灰色铝板立面,横向勾勒铝板线条及超宽屏的采光面,实现超高南向窗墙比和超阔观景视野,与内外风景相得益彰,兼具当代审美与属地特色,让建筑与艺术相互成就。

院式大平层地块则著建洲岛花园、河谷童趣、冥想花园、元气健身等意趣空间,唤回城市人群在都市中向往已久的那份惬意、松弛、自如的生活状态,趣享一部富有生命的“自然艺术作品”。









建面约128㎡三房两厅两卫户型,设计师将客厅、餐厅及厨房全都融为一体,做了开放性的布局,四开间朝南,约6.6米开间的宽厅连通阳台,南北通透,保证了充足的采光。主卧套房设计,满足高端人群对居住空间的挑剔需求。双卫设计,更具隐私性,规避了一房三代同堂的困扰。

建面约151㎡四房两厅两卫户型,相较于建面约128㎡户型更大的面积,意味着居住舒适度会更高。五开间朝南,约16米南向面宽,约9.1米阔景阳台,超气派餐客厅一体化设计,方寸之间设计感与尊崇感尽显,这个户型的每一项亮点拎出来在同面积段户型中都是王炸级的存在。

声明:本文由入驻焦点开放平台的作者撰写,除焦点官方账号外,观点仅代表作者本人,不代表焦点立场。
