首页:苏州和月泊庭_苏州中建和月泊庭售楼处电话|价格详情|楼盘详情-房价-户型
扫描到手机,新闻随时看
扫一扫,用手机看文章
更加方便分享给朋友
苏州和月泊庭售楼处电话:400-116-7720转接666【苏州和月泊庭售楼中心】
苏州和月泊庭官方售楼处电话:400-116-7720转接666【苏州和月泊庭售楼处电话/地址】
苏州和月泊庭售楼处电话:400-116-7720转接666【官方认证】

和月泊庭同频世界建筑美学,采用大面积铝板,辅以玻璃设计,历久弥新的考究立面奠定不凡生活基础。
园林景观采用现代围合式花园设计,为每户量身定制视野景观,私享一栋一景高定体验。
三重礼序归家:一重尊享入口大堂/二重林荫归家道路/三重私享精奢入户;尊享三区大堂:酒店式大堂/地下大堂/地下泛大堂,归家礼仪渗透至每个角落,细节处体现生活品位。
和月泊庭的精选精装材料,甄选国际品牌,提升品质。
社区智能化,国际社区的科技体验,全天候安防/全方位保洁/全系统保障,安全把关每位业主的安全。仁恒物业,以精细化的服务确立服务品质,为少数名仕打造专属服务,共筑高品质生活。



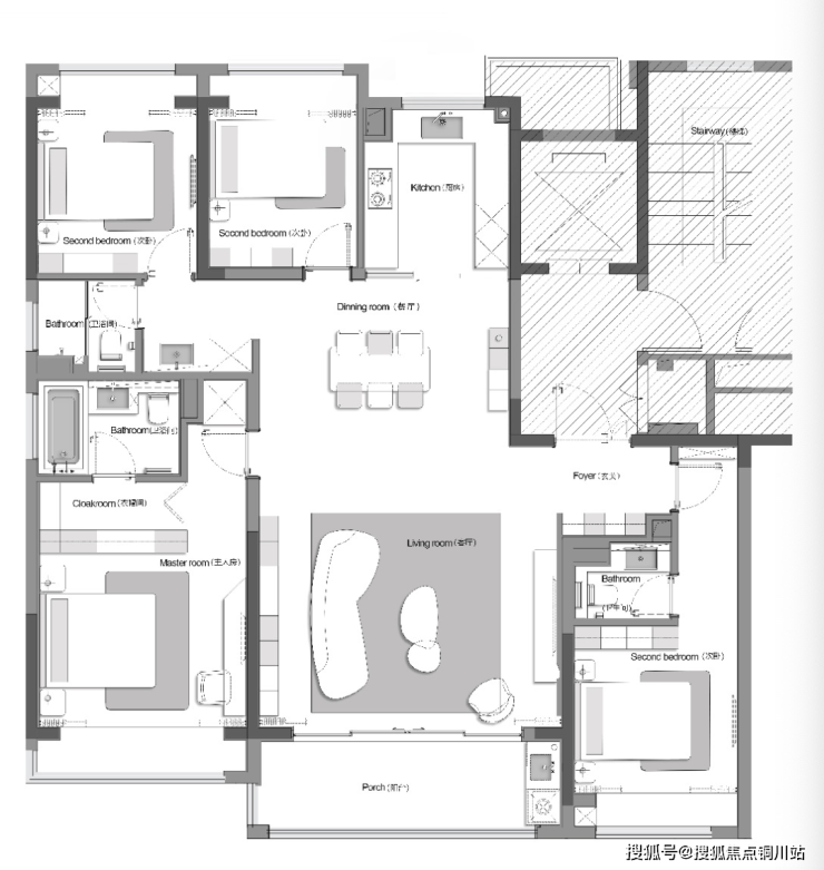
建筑面积约186㎡ 四房两厅三卫

建面约186㎡户型,一登场就被热抢。四房两厅三卫的格局,阳台开间约8.1米,LDKB一体化设计,公区尺度大气又阔绰。


和月泊庭样板间实景图
餐厅区域可以容纳六人同时就餐,空间依旧阔绰。

和月泊庭样板间实景图
双套房设计,可以给父母更多私密生活空间,让生活品质得到进一步延伸。
更夸张的是,主卧套房内不仅拥有270°观景飘窗,甚至连主卫的浴缸都配置了270°环幕景观窗。

和月泊庭样板间实景图
建面约164㎡ 四房两厅三卫

建面约164㎡是该项目的起步户型,舒适度极高。
双套房朝南、LDKG一体化设计、独立餐厅、U形厨房...每一个亮点都戳中购房者的心坎里。
当你回到家,首先映入眼帘的是宽敞大气的客厅,客厅连接同等面宽的阳台,将家中的采光、通风面拉满!
坐在家中,窗外的景观犹如一幅风景画,将四时美感淋漓尽致地呈现窗前。
不仅户型设计亮点十足,精装品牌也特别考究。
大金中央空调、兰舍新风系统、威能地暖,三大件全部配齐。
品牌示意图(或同档次品牌)
甚至配备了SMEG、博世、瑞士弗兰卡、杜拉维特、汉斯格雅、索菲亚、摩恩等一线品牌。这是和月泊庭对品质的极致追求。
和月泊庭样板间效果图
和月泊庭样板间效果图
在细节之处,还有诸多人性化设计。比如:玄关柜体表面采用了豪车级皮革饰面、屋内罕见的弧形吊顶、客厅背景墙等等...
正是不惜成本,大手笔采用奢华的品牌,才铸就了姑苏古城独一无二的豪宅。
对于居住空间的选择,如今的居者不仅有着自己的独到眼光,更有着对于生活品质与品位的非凡要求。
和月泊庭作为姑苏时代名仕大宅典范,是少数人物对未来美好生活的选择。
声明:本文由入驻焦点开放平台的作者撰写,除焦点官方账号外,观点仅代表作者本人,不代表焦点立场。
