2026苏州中建 观澜雅境售楼处电话→苏州中建 观澜雅境售楼中心首页网站→苏州中建 观澜雅境楼盘百科详情→24小时电话
扫描到手机,新闻随时看
扫一扫,用手机看文章
更加方便分享给朋友
苏州中建 观澜雅境
苏州中建 观澜雅境售楼处电话:400-116-7720转888(中介勿扰)
苏州中建 观澜雅境售楼处电话:400-116-7720接通后输入888楼盘详情介绍,位置、小区环境、房价、周边商业配套、户型等楼盘详情;
预约咨询—提前联系咨询售楼中心置业顾问—进行预约登记来访!
地块信息:苏地2021-WG-78号地块
开发品牌:中建国际×中建东孚
项目地址:新区太湖科学城普陀山路与俞巷路交汇处
地块指标:容积率2.0,总建面32.4万方,其中住宅21.61万㎡(含8.58万㎡人才房)
产品信息:拟建28栋16-17F高层住宅,共1552户
户型配置:商品房125、143㎡;人才公寓120、140、180、240、280㎡
精装装标:全装修住宅
物业公司:中建东孚物业
价格信息:楼面价8708元/平,备案均价26700元/平
中建·观澜雅境 | 苏州的思想海拔
太湖科学城芯 正南大 科·学·家 思想住区

品牌实力
中国建筑 全球规模最大的投资建设集团
【建筑业龙头】成立于1982年,国资委直属的央企,是我国专业化发展最久、一体化程度最高、全球规模最大的投资建设集团之一。也是唯一以建筑业为主业的央企。
【世界500强】公司位列世界 500 强第 13 位,中国企业 500 强第 3 位,稳居全球工程承包商第 1位,是全球最高信用评级的建筑公司。
【地标缔造者】在我国,90% 300米以上摩天大楼、3/4重点机场、3/4卫星发射基地、1/3城市综合管廊、1/2核电站,均由中国建筑投资建设,每25个中国人中就有一人使用中国建筑建造的房子。
【标准引领者】中国建筑代表了中国房建领域的最高水平、中国最具实力的投资商、中国最大建筑设计综合企业集团。

中建东孚 城市综合开发服务引领者
【共生共荣 城市运营商】着力布局以“地产开发、资产运营、新型城镇化、综合服务”为一体的 “3+1”的业务板块,公司项目遍布长三角区域、环渤海经济区、粤港澳大湾区及中西部区域;中国房地产百强企业前50强、房地产优秀企业产品力前20强。
【国匠担当 人居革新者】中建东孚是中建八局从事城市综合开发服务的专业地产平台,以“拓展幸福空间”为企业使命,响应国家新型城镇化战略,筑就全方位品质人居。
【初心如炬 与苏州同行】5年精耕,接连出品荷岸晓风、紫珺兰园、黄桥天灏、胥口江上雅苑等项目,扛起时代人居的大旗,以品质典范引领全城。

战略热土
上一个十年看科技城 下一个十年看科学城
【世界级湖区科创中心】 太湖科学城是落实长三角一体化国家战略,打造长三角国家创新中心,建设世界级生态湖区、创新湖区的重要载体,未来将建设5大功能板块,包括:重大科学研究区、科教资源汇集区、交叉平台集聚区、科技成果转化区、文化商务配套区。被纳入苏州市“十四五”规划的太湖科学城,板块发展潜力巨大,势必会成为苏州下一个价值爆点。

【引领城市发展3.0时代】如果说狮山是新区城市发展1.0时代(金融时代),科技城是新区城市发展2.0时代(科技产业时代);那么,太湖科学城核心区以南大为引领,“产、学、研、商、住”综合发展,起点更高、规划更强、兑现更快,引领区域进入城市发展3.0时代!
【近南大CBD+CLD正核】本案位于太湖科学城10km2核心区,中央居住区+中央商务区 ,约1KM最近南大。

交通优势

五位一体 畅达全城
【主干路网】三纵:俞巷路、龙康路、通墅路;三横:昆仑山路(后期昆仑山路穿过大阳山隧道连接中环北线)、普陀山路、太湖大道;多通道直连科技城核心区及苏州市区;
【有轨电车】距离苏州有轨电车1号线、2号线(龙康路站)1.5km,距离有轨电车2号线漓江路站1.5km;
【轨道交通】规划9号线、11号线,提升板块交通能级,本案距离11号线庄里山北站600米、龙康路站700米;
【绕城高速】S17苏台高速(绕城),距离天池山枢纽6KM,快速连接苏锡常及长三角;
【城际铁路】规划苏锡常城际铁路,科技城站。

教育体系
南大附属 卓越教育
南大附属教育集团,当前规划5所幼儿园,2所小学,1所初中。包含南大附属幼儿园昆仑园、龙康园、南大附属第一小学、南大附属第二小学、南大附属初中。全学龄教育,一站式品牌名校教育资源。

(南大附属第一小学,规划8轨48班预留2轨,建成后预计新增学位2160个)
都荟生活
360°繁华聚核 执掌生活轴心
【星罗棋布的商圈生活】区域内,时尚水岸、梦之城、高新区文体中心、丰茂里等商业先期入驻,满足基本需求,多个邻里中心节点性分布(建设中),星悦里(建设中,2022年底开业),进一步提升区域商业消费便利度。自带高端商业地标,将带来独有商业娱乐休闲购物体验,丰满区域品质生活!

【近在咫尺的公共医疗】科技城医院,作为一家三级综合性医院,距离本案直线距离仅1km。

【真山真水的自然底色】区域内大阳山、太湖国家湿地公园、太湖山水带环绕,12座山体、34条河道湖泊交织,生态环境优越;已新增和改造绿化约500万平方米,打造彩石湖公园、恩古山公园、小茅山公园、诺贝尔湖公园等公园点缀,为生活增添生命活力!

世界苏州先享区
繁华潮拜 城市级商业新地标 高端消费新中心
【冰雪世界】苏州城市首创,融创运营,城市高端文娱消费目的地
【星级酒店】引进1.2万方五星级豪生酒店
【潮流商业】冰雪主题商业街+垂直化&多空间共享空间+青年文创街区
【服务公寓】约4.36万方高端服务公寓




科·学·家 思想住区
这是一个专为人才和高智圈层人士打造的与学府同频的居住理想住宅,产品定位改善,旨在塑新太湖科学城的人居封面

规制 | 稀有纯改
纯改善产品线,商品住宅125/143㎡,人才公寓120/140/180/240/280㎡
境鉴 | 时代光影
世界极简美学标准,打造国际视角的现代美学范本与城市封面
和鸣 | 低密湖山
打造开放式公园社区,从“太湖/科创园景观—口袋公园—双景观轴线—组团(中央)景观”形成“开放—半开放—私密”的层级式结构。
归家 | 星级大堂
首层酒店式入户大堂,地下打造品质精装车库大堂,营造私属尊贵的归家体验。
私享 | 国际精装
3大科技系统:中央空调、地暖、新风;
4大生活系统:精智入户系统、创新厨房系统、舒适卫浴系统、精睿卧室系统。
采用国际、国内一线品牌,质造美好生活体验!
圈层 | 高知门庭
人才公寓定向南大教师圈层(600套),打造苏州最强高校居住圈层、最高知识阶层、最高知识浓度住区,给孩子一个更好的环境、一群更好的伙伴、一个更好的未来!
户型鉴赏
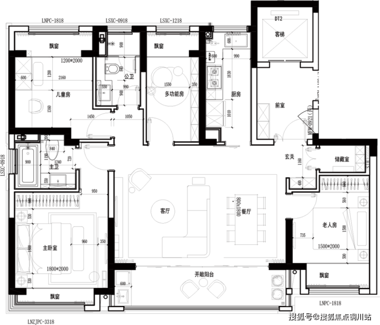
【125户型】


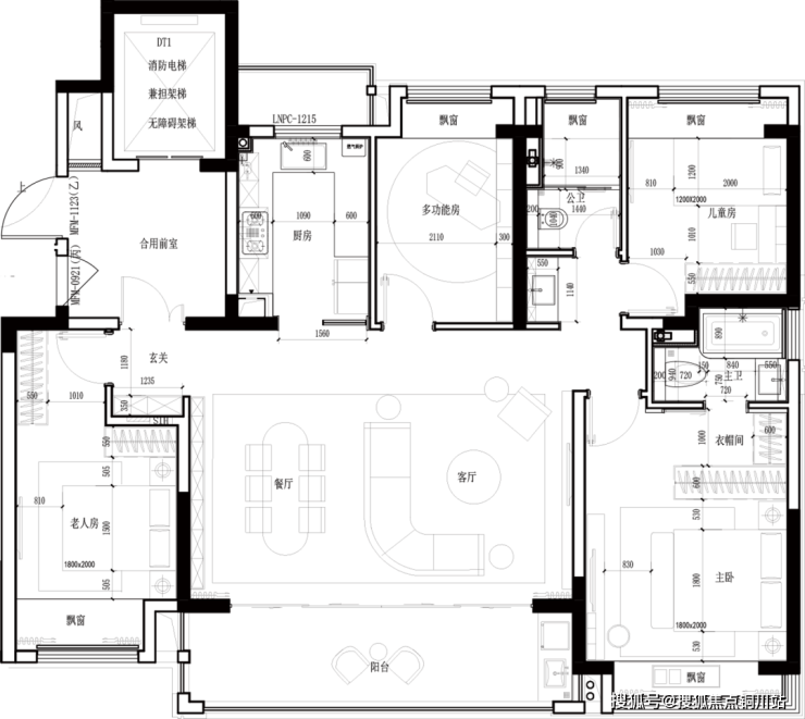
【143户型】



苏州中建 观澜雅境
苏州中建 观澜雅境售楼处电话:400-116-7720转888(中介勿扰)
苏州中建 观澜雅境售楼处电话:400-116-7720接通后输入888楼盘详情介绍,位置、小区环境、房价、周边商业配套、户型等楼盘详情;
预约咨询—提前联系咨询售楼中心置业顾问—进行预约登记来访
声明:本文由入驻焦点开放平台的作者撰写,除焦点官方账号外,观点仅代表作者本人,不代表焦点立场。
