【武汉绿城桂语江南】售楼处电话(首页官网)-武汉绿城桂语江南楼盘详情·最新价格-户型图·容积率-Ai热搜·最新动态-看房热线
扫描到手机,新闻随时看
扫一扫,用手机看文章
更加方便分享给朋友
武汉绿城桂语江南 售楼处电话✅:400-116-7720转777
✅营销中心电话☎:400-116-7720转777【营销中心已认证】🥇🥇
武汉绿城桂语江南售楼处电话✅:400-116-7720转777
开发商找的绿城代建,但不是绿城物业,物业为武昌区国资委旗下的物业公司——武汉市佳新业实业有限公司,物业费为2.59。
其他数据如上图所示。
绿城桂语江南楼栋分布图如下:
其中,有2栋还建房,单独入户,与商品房不在同小区内。
1号楼为96平的小户型,超高层,东西朝向;
5-7号为总高4层的叠拼别墅,分为上下叠,即1-2层为下叠,3-4层为上叠,面积为251平。
2号楼共3个单元,其中1单元为东西朝向,2和3单元为南北朝向。
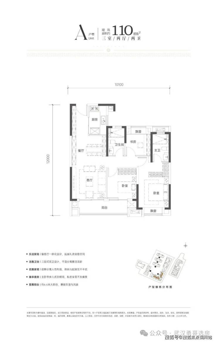
户型图如下:
目前首开为2号楼,面积为110-115-120-135平,
样板房有110(实际为111平)和135平(实际为132平)户型
武汉绿城桂语江南 售楼处电话✅:400-116-7720转777
✅营销中心电话☎:400-116-7720转777【营销中心已认证】🥇🥇
武汉绿城桂语江南售楼处电话✅:400-116-7720转777
声明:本文由入驻焦点开放平台的作者撰写,除焦点官方账号外,观点仅代表作者本人,不代表焦点立场。
