2025武汉城建启元售楼处电话→武汉城建启元售楼中心电话→2025武汉城建启元楼盘百科→楼盘网站→楼盘测评→售楼中心电话→24小时热线!
扫描到手机,新闻随时看
扫一扫,用手机看文章
更加方便分享给朋友
武汉城建启元售楼处电话:400-116-7720转接666
楼盘最新价格,户型图,地址,电话,样板房,周边配套,项目介绍
温馨提示:绝不收取任何费用,请提前1小时预约看房,以免带来不好的看房体验

在武汉,一线临江的住宅本就稀缺,而武汉城建启元择址二七桥头总部区,打造约30万方高端滨水综合体,东侧还规划有优质教育用地,区位价值不言而喻。
项目整体分两期开发,集高端住宅、商务办公与滨水商业街于一体,业态多元,自成格局。
地块南向直面江岸,采用行列式布局,最大程度保障每一户的瞰江视野。建筑立面采用公建化大面积玻璃幕墙,风格简约却不失质感,未来落成,无疑将成为二七滨江天际线中又一标志性存在。
值得关注的是,武汉购房者高度关注的教育资源,在这里也得到充分回应——
项目楼下即规划为优质教育用地;
3公里范围内,聚集了七一华源中学、长春街三小、长春街二小等口碑学校;
5公里辐射圈内,更有武汉二中、二中广雅等长期备受认可的名校资源。
项目总建筑面积:约305378.56㎡,总楼栋数/总户数:7栋、700户,面积段:建面约130-189㎡(精装修)。
2025年1月24日,武汉城建启元项目一期报规。
2025年6月26日,项目3、6、7号楼、1、2号楼拿预售证,高层共476套,备案均价:3、6、7号楼约36687元/平,1、2号楼约29393元/平,整体约33056元/平,带装修销售。
2025年6月27日,项目4、5号楼拿预售证,高层共224套,备案均价:4号楼约34772元/平,5号楼约39559元/平,整体约36105元/平,带装修销售。
(武汉城建启元小区平面图)
一线看江:189户型,单价:2.8万-3.8万,总价:530万-718万
二线看江:141户型,单价:2.35万-2.95万,总价:331万-416万
163户型,单价:2.25万-3.5万,总价:367万-570万
三线看江:130-140户型,单价:1.9万-2.35万,总价:247万-329万
(武汉城建启元江澜A 141平米户型)
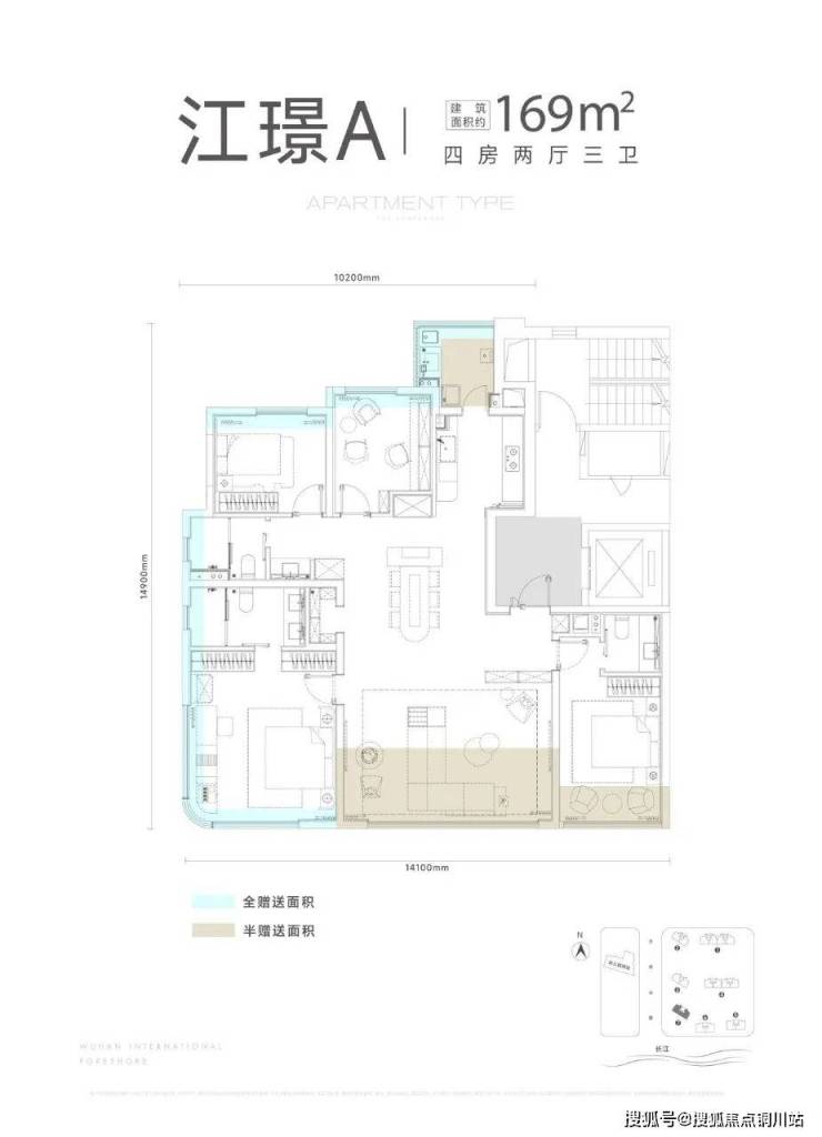
(武汉城建启元江璟A 169平米户型)
(武汉城建启元江幕A 189平米户型样板间)
声明:本文由入驻焦点开放平台的作者撰写,除焦点官方账号外,观点仅代表作者本人,不代表焦点立场。
