【武汉招商城建未来中心】售楼处电话—百科详情【武汉招商城建未来中心售楼部24H预约热线】—实时动态--最新价格-户型图-容积率
扫描到手机,新闻随时看
扫一扫,用手机看文章
更加方便分享给朋友
武汉招商城建未来中心售楼处电话☎:400-116-7720转777【营销中心已认证】🥇🥇
✅武汉招商城建未来中心营销中心电话☎:400-116-7720转777【营销中心已认证】🥇🥇
🏆本项目暂不接受临时到访,看房请提前预约,可尊享内部特惠!
🏆为您安排楼盘内场专业销售人员一对一接待服务,给您更贴心的看房体验!
招商·武汉城建未来中心C2揽境,作为经开首个真四代住宅,容积率更低,因为限高80米内,最高才25层,而且立面升级和功能升级,户型设计也是四代产品,属于经开升级版改善产品,高赠送空间,高得房率。
C2地块调整规划后,由4栋高层+6栋洋房,拟调整为6栋23-25层高层住宅、3栋17层小高层,总户数也变为642户,物业费3.1元/㎡/月。(C2揽境二三期报规中,最终数据以项目发布信息为准)



2、首开户型曝光,综合建筑得房率约127-132%。

目前四代产品正式户型图已经出来了。
此次揽境(C2地块)户型分为了奇偶层设计,6米挑高大露台,空中花园超多赠送,综合建筑得房率约127-132%。这也是目前所有四代高层产品中得房率最高的一个。
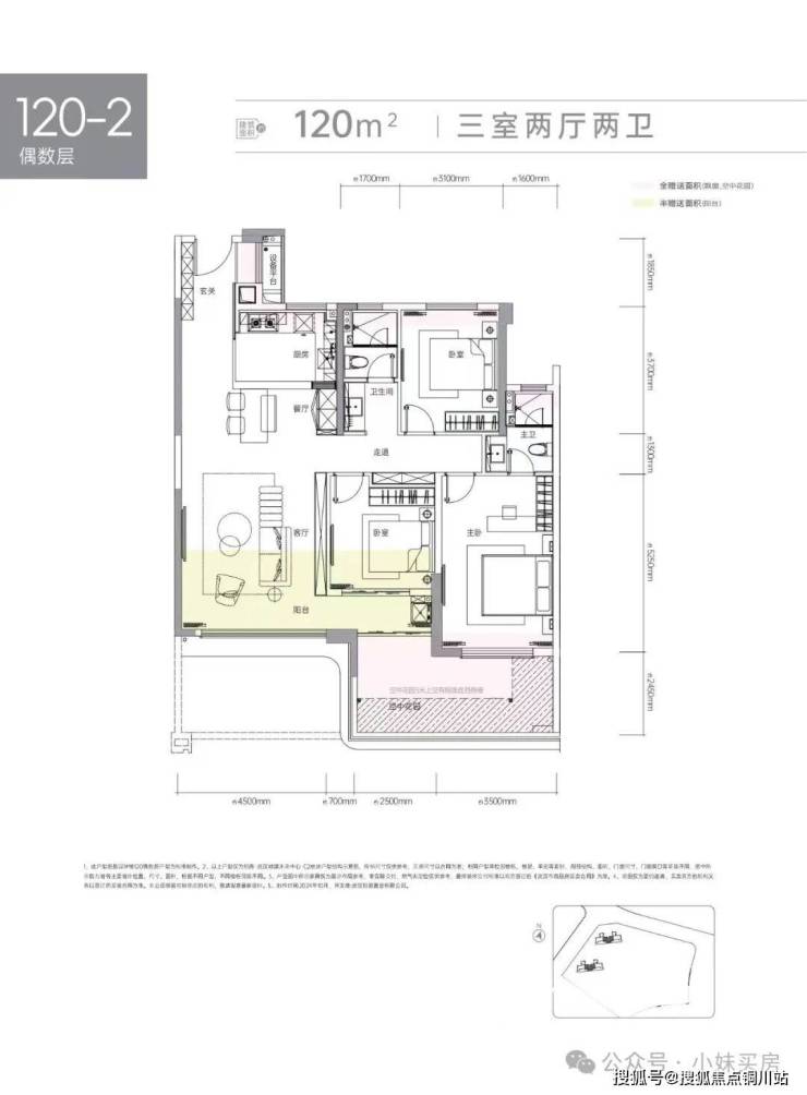
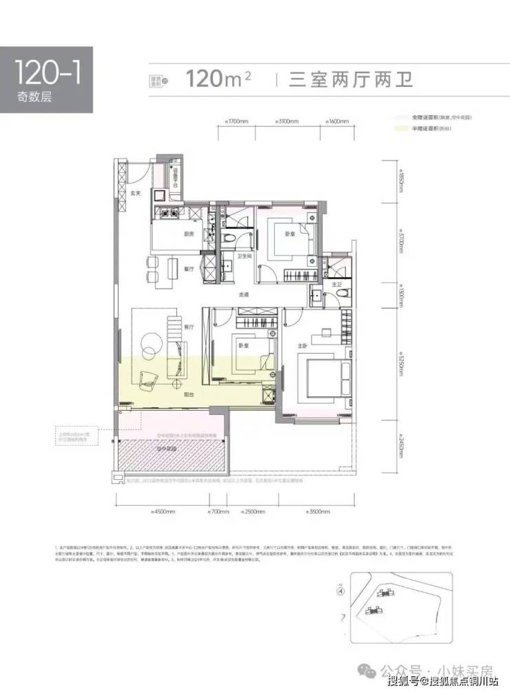
中间户120㎡三房两厅两卫
奇/偶数层120平三房,除空中花园外格局大致相似。
据非官方渠道了解到,120平综合建筑得房率约127%。
三开间朝南,带空中花园。约4.5米开间客厅,约7.7米大阳台。南向次卧也有非常多赠送空间。北向基本都是飘窗赠送,主卧也有南向飘窗赠送,主卧套房开间约3.5米。(具体以项目最终数据为准)
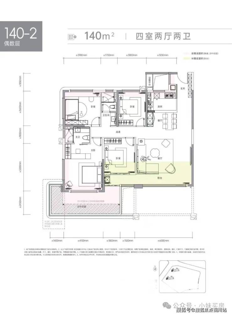
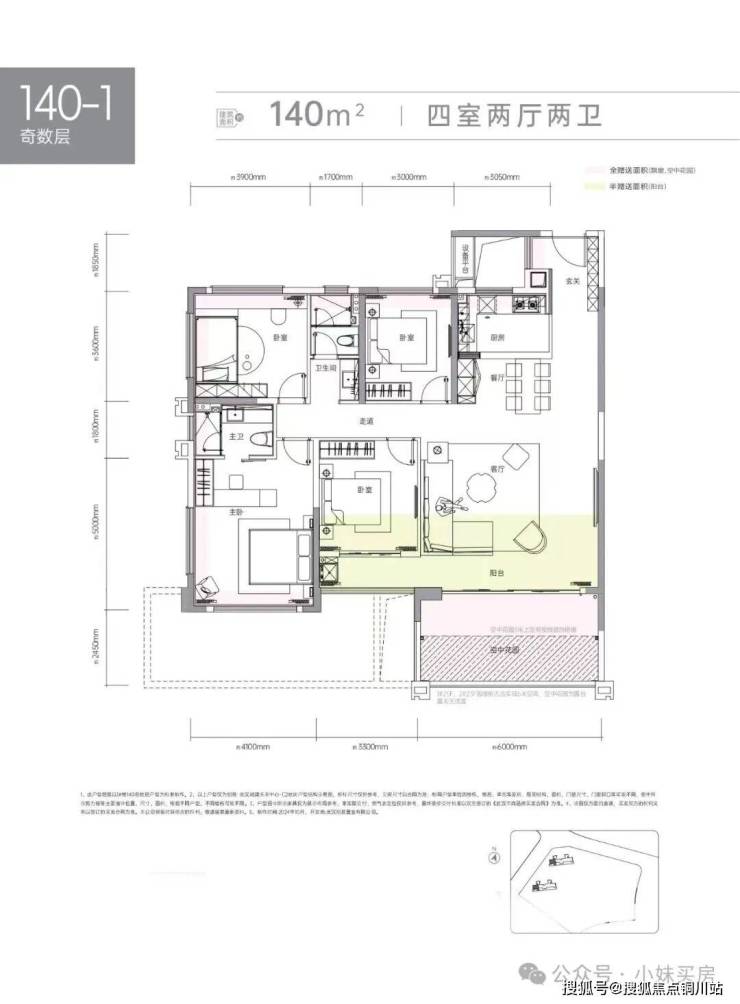
边户140㎡四房三厅两卫
据非官方渠道了解到,综合建筑得房率约130-132%左右。
整体南向开间13.4米,其中客厅开间约6米,主卧开间约4.1米,主卧套房面积27.88平。空中花园进深约2.45米,面积在16-20平左右。(具体以项目最终数据为准)
样板间-客厅
样板间-主卧
样板间-次卧
样板间-露台
140平偶数层户型格局与奇数层比较类似,主要是空中花园位置不一样。
更多高清户型图,点击下图查看

3、精装交付,综合性价比高。
C2揽境依旧是带装修交付,此次推出的户型面积相较前期门槛明显提升了,更偏改善,但是此次推出的产品综合得房率高达132%,而且还有空中花园,此次装标包括有大金中央空调、菲斯曼地暖、松下新风系统等配置。C2揽境2#正在诚意登记登记中。
武汉招商城建未来中心售楼处电话☎:400-116-7720转777【营销中心已认证】🥇🥇
✅武汉招商城建未来中心营销中心电话☎:400-116-7720转777【营销中心已认证】🥇🥇
🏆本项目暂不接受临时到访,看房请提前预约,可尊享内部特惠!
🏆为您安排楼盘内场专业销售人员一对一接待服务,给您更贴心的看房体验!
声明:本文由入驻焦点开放平台的作者撰写,除焦点官方账号外,观点仅代表作者本人,不代表焦点立场。
