【2025武汉城建江南岸】售楼处电话→地址→户型→价格→武汉城建江南岸楼盘详情→武汉城建江南岸10月最新销售动态!
扫描到手机,新闻随时看
扫一扫,用手机看文章
更加方便分享给朋友
武汉城建江南岸🏆🏆🏆
✅武汉城建江南岸售楼处电话☎:400-116-7720转777【营销中心已认证】🥇🥇
✅武汉城建江南岸营销中心电话☎:400-116-7720转777【营销中心已认证】🥇🥇
🏆本项目暂不接受临时到访,看房请提前预约,可尊享内部特惠!
🏆为您安排楼盘内场专业销售人员一对一接待服务,给您更贴心的看房体验!
项目简介
2024年12月24日,武汉地产集团以总价78140万元竞得P(2024)118号地块,成交楼面价约12171元/㎡。
2025年4月28日,武汉城建集团一口气公布了4个新项目的案名:承宁府,楚宝里,启元,江南岸。
其中,江南实业片A地块,正式定名为武汉城建·江南岸。

项目楼栋规划
武汉城建·江南岸,位于武昌区铁机路与临江大道交汇处,属于内环到二环之间。
项目的总建面约8.97万㎡,计容建筑面积约6.42万㎡,容积率2.49。
项目一共6栋楼,沿江“一字排开”,共计402户,机动车停车位450辆,其中住宅停车位431辆,车位配比1∶1.07。
项目整体外墙面采用铝板线条加局部真石漆与玻璃幕墙,营造出一种整洁干净的现代立面质感。
建筑外立面选用Low-E中空玻璃+阳极氧化铝板,以银灰渐变色呼应江面晨昏光影,所有面江阳角位置均采用曲面弧形玻璃幕墙,以实现更大角度的观江视野。
△项目外立面效果图
在避难层和顶部构架上,项目采用折型穿孔板打造出一种“流动光影”的视觉效果。
△项目外立面效果图
在公区方面,项目设计了双层立体会所:约2500㎡地上地下复合空间,涵盖恒温泳池、私宴厅、SPA秘境、瑜伽健身房等多功能复合会所空间,搭配下沉庭院空间。
△项目公区实景图
本次首开的是1号楼和2号楼,1号楼总高44层,143㎡和183㎡户型,2号楼总高31层,均为143㎡户型,两栋楼均为2梯2户,且有一定的看江视野。
武昌的江景房大多是北向看江,日照和江景必须二选一,城建江南岸的江景位于西北向,两个户型为了看江都在一定程度舍弃了日照。
①143㎡户型:四房两厅三卫,得房率超100%
户型点评:
该户型为1、6号楼的东边户,带独立电梯前室,北向客厅、卧室带阳台,南向厨房也有一个阳台。
该户的的赠送面积很多,所有卧室、厨房、卫生间、入户玄关均有飘窗赠送,其中大主卧及主卧卫生间还是双面飘窗优化。
因为是北向看江,整个北面做了16.2米的瞰江面,两个主卧和一个次卧,以及客厅,都能够做到观江。其中一个主卧,还是90°转角设计,可以双面看江,视野更加开阔。
此外,143㎡户型能做三卫,功能性还是非常不错的。
美中不足的是,只有一个小卧室和厨房是东南向的,牺牲了一定的舒适度。
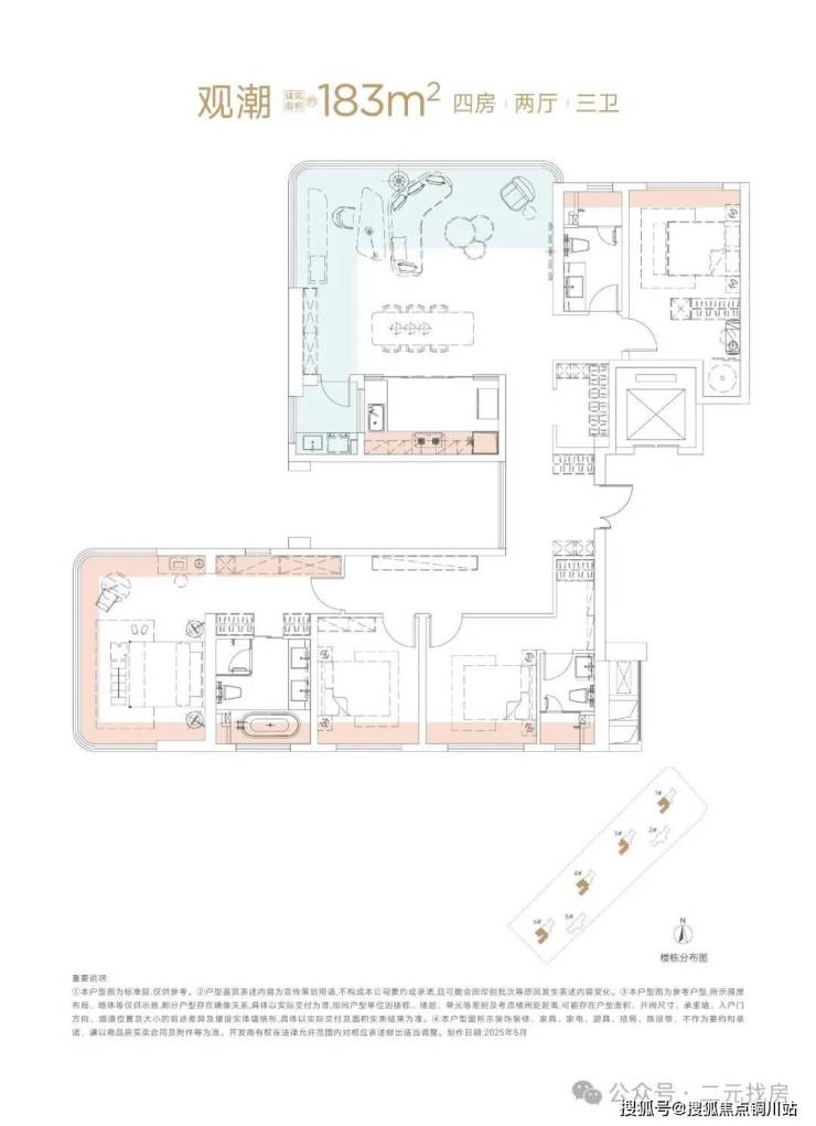
②183㎡户型:四房两厅三卫,得房率超100%
户型点评:
该户型为1、3、4、6号楼的西边户,电梯厅独立入户,完全动静分区设计,东南向三面采光,居住舒适度相比143㎡户型大大提升。
“双全景舱”设计,约45㎡超大IMAX环幕厅,观江效果不错,就是面积在同级别户型中显得不够大,12.5米的北向面宽可能会有比较严重的西晒,尤其是武汉的夏天西晒比较厉害。
除了江南岸,武汉城建在二七滨江还有一个江景房叫城建·启元。
该项目一共7栋楼,一线临江的南区组团,能看江的4栋楼(3#、5#、6#、7#)起步户型141㎡,然后就是169、189㎡的户型。
两个楼盘在面积段设置上,还是比较接近的。
武汉城建江南岸🏆🏆🏆
✅武汉城建江南岸售楼处电话☎:400-116-7720转777【营销中心已认证】🥇🥇
✅武汉城建江南岸营销中心电话☎:400-116-7720转777【营销中心已认证】🥇🥇
🏆本项目暂不接受临时到访,看房请提前预约,可尊享内部特惠!
🏆为您安排楼盘内场专业销售人员一对一接待服务,给您更贴心的看房体验!
声明:本文由入驻焦点开放平台的作者撰写,除焦点官方账号外,观点仅代表作者本人,不代表焦点立场。
