今日首页热搜:武汉天创元萃售楼处电话→武汉天创元萃Ai热搜24小时电话→2025最新房价→楼盘百科详情→售楼处更新发布@售楼处中心
扫描到手机,新闻随时看
扫一扫,用手机看文章
更加方便分享给朋友
武汉天创元萃售楼处电话☎️400-116-7720转接999(专人接听)
武汉天创元萃🌈温馨提示:拨打400电话,听到嘀声后,输入分机号999即可!
武汉贝好家的首秀
主打建面约127-170平户型,宣传得房率高达117%
天创元萃4栋住宅中,除了1-1#、3-1#为一梯一户布局之外,其余楼栋均为两梯两户布局,换句话说,项目所有房源都能实现专梯专户,拥有独立的电梯前室。
朝向上,天创元萃1、2号楼为偏东南朝向,3、4号楼则偏西南。
项目主打建面约127-170平户型,目前公示了三个户型图,分别是127、142、170平
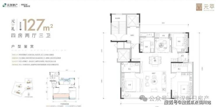
建面约127平米户型
4栋楼中都有127平的户型,数量是目前已公示的三个户型中最多的,并且绝对面积不大,总价门槛会相对另外两个户型低一些,算是武昌下半年相对较少的小面积产品。
(武昌区目前有120平左右户型的项目目前仅有武昌源著、中海东湖玖章、建发璟玥、龙湖武车项目)
户型本身非常的方正,阳台外带花池,拓展面积就比较多,据宣传,加上电梯厅,这一户型优化后的得房率高达约117%,放在三环内四代宅里面来看,这个得房率绝对是数一数二的了。
127平做成了四房三卫双套房的设计,功能性超级强,三代同堂或者二胎家庭也非常适合;南向面宽12.7米,采光面也是比较充足的,缺点是有个套房内的洗手间为暗房,除此之外,其他方面都很不错。
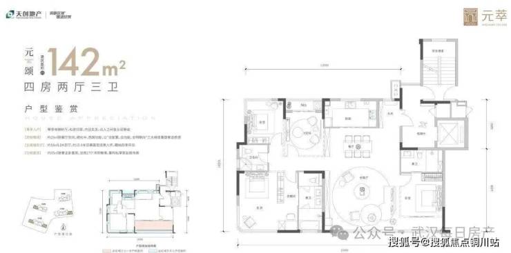
建面约142平米户型
这一户型的得房率同样约117%,相当出彩。
分布于2、3、4号楼的端头边户,房源数量也还算相对较多的。
南向面宽约15.9米,南面同时实现双套房+大横厅,舒适度更高;
主卧套房面积约35平,空间相当的阔绰,并且采用了转角窗+曲线外立面,观景视野、光照效果都更好。
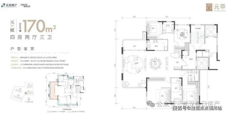
建面约170平米户型
这一户型优化后得房率约106%,略低于前两个户型,但放在核心区,依然是相当炸裂的存在。
同时,这也是项目最大面积户型,仅分布于2号楼最西端,房源数量是最少的。
客厅采用270度全景舱设计,非常适合观景的设计,并且南向主卧套房也采用了转角窗设计,观景面再次延伸,配合2号楼西头的位置,可三面俯瞰小区园林+南瞰市政公园,景观视野一绝。
缺点是房源相当稀少。
三个户型设计的都相当不错,并且106-117%的得房率在核心区属于no.1的存在,产品相当能打。
01
天创元萃。
10月7日,天创元萃武昌滨江双展厅开放,预示着该项目正式进入推广阶段。
据了解,该项目位于解放路与中山路交汇处,属于武昌内环滨江板块。
武汉天创元萃售楼处电话☎️400-116-7720转接999(专人接听)
武汉天创元萃🌈温馨提示:拨打400电话,听到嘀声后,输入分机号999即可!
声明:本文由入驻焦点开放平台的作者撰写,除焦点官方账号外,观点仅代表作者本人,不代表焦点立场。
