首页热搜:苏州绿城宸庐售楼处电话→苏州绿城宸庐 Ai热搜24小时电话→2025最新房价→楼盘百科详情→售楼处更新发布@售楼处中心2025-08-31
扫描到手机,新闻随时看
扫一扫,用手机看文章
更加方便分享给朋友
✨苏州绿城宸庐售楼处电话✅:400-116-7720转777
✅苏州绿城宸庐营销中心电话☎:400-116-7720转777【营销中心已认证】🥇🥇
✨苏州绿城宸庐售楼处电话✅:400-116-7720转777
✅苏州绿城宸庐营销中心电话☎:400-116-7720转777【营销中心已认证】🥇🥇
🏆本项目暂不接受临时到访,看房请提前预约,可尊享内部特惠!
🏆为您安排楼盘内场专业销售人员一对一接待服务,给您更贴心的看房体验!
项目公布的洋房和叠加效果图来看,外立面大面积落地玻璃,叠加也设计了延展露台,洋房做的是第四代住宅,带有L形大露台;
6,项目的配套用房,颜值也很高;

最新规划户型出炉
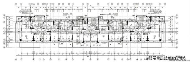
在此次公示中,绿城宸庐的洋房标准层户型图也首次出炉,项目的四代宅户型也可以提前窥见一些。
01
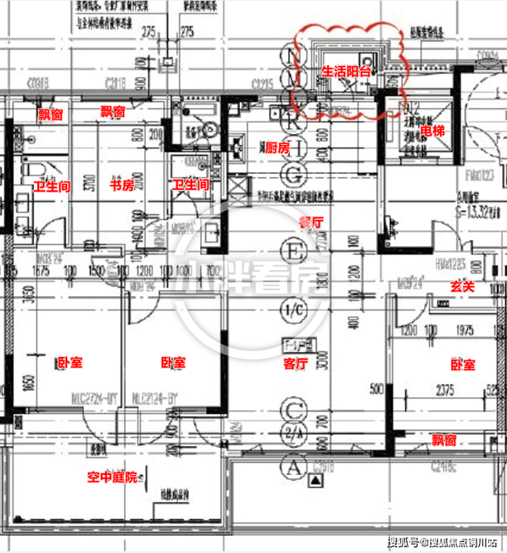
12#、13#奇数层平面图
这一户型为三梯四户,中间两户为一梯两户,东西两户为一梯一户。

中间户 4房2卫

02
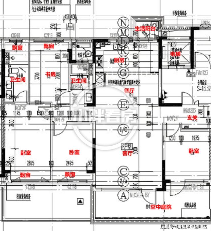
12#、13#偶数层平面图
这一户型依旧是三梯四户,中间两户为一梯两户,东西两户为一梯一户。


此前项目只公布了联排的首层平面图,分为两种户型;
南北及侧面都有开门,多条动线,生活便利。餐客大横厅配中西厨,北侧设计套房,且还有一个公卫
声明:本文由入驻焦点开放平台的作者撰写,除焦点官方账号外,观点仅代表作者本人,不代表焦点立场。
