武汉汉阳城更花木深(售楼处电话) -项目首页 - 武汉汉阳城更花木深销售中心 - 户型 - 价格 - 地址 - 楼盘详情 - 配套- 交房时间
扫描到手机,新闻随时看
扫一扫,用手机看文章
更加方便分享给朋友
武汉汉阳城更花木深售楼处电话✅:400-116-7720转999
✅营销中心电话☎:400-116-7720转999【营销中心已认证】🥇🥇
武汉汉阳城更花木深售楼处电话✅:400-116-7720转999
其热销背后,是一段未开先火的传奇:
在营销中心都还未正式开放的情形下,汉阳城更花木深每天的看房客户就已经络绎不绝
9月底取证,十一期间启动认筹,小长假期间来访客户超千组,认筹人数更是超300组
10月26日营销中心正式开放,同步首开,2号楼小高层96套房源开盘火速售罄,1号楼新品即将应市加推
尽管武汉今年已出现多个日光盘,但像汉阳城更花木深这样,实现营销中心样板间完工前就拥有超高关注、在地下室进行临时接待、开放当天即正式开盘,并且一举“日光”的项目,目前仅此一例。
开盘日光,无疑是对一个项目综合性价比的最大肯定!
汉阳城更花木深首次开盘日光,正是市场对其价值的肯定!并且,汉阳城更花木深还是武汉10月目前为止出现的首个日光盘,更显优秀!
事实也的确如此!
汉阳城更花木深,不仅有其他同类四代宅望其项背的至高约105%得房率,产品品质、核心地段与全能配套亦同样出众,堪称一位无短板的“六边形战士”,相当值得入手,开盘日光也是情理之中!
最新动态:汉阳城更花木深,10月26日已首开2号楼小高层,96套房源开盘日光,1号楼应市加推,主打建面约100-125平四代户型,得房率最高可达约105%,首开优惠均价约13000-15500元/㎡。
楼市稀缺+全盘唯一一栋的小高层,是汉阳城更花木深首开给出的最大诚意!
汉阳城更花木深项目共包含3栋住宅,其中1、2号楼已取证,首开的是2号楼,总高只有16/18层的小高层。
这是全盘唯一一栋小高层
并且也是板块内相当少见的四代小高层
从起点上来说就比其他同类项目要高得多
稀缺小高层+四代宅,所带来的结果也是惊人的——得房率最高可达约105%,远超同类
2号楼主打的建面约100、108、145平户型,款款都经典
比如这款建面约100平米户型,简直是为年轻人定制的一步到位品质优选!

入目所及,双联大阳台、北向生活阳台、花池、飘窗...超多拓展面积
得房率高达约95%,约100平即可享受传统120+平户型的实得空间,真正实现“面积跃级”。
建面约100平米户型样板间实景图
更大的实得面积,加上整体布局相当方正,以及内部少承重墙设计,让后期拥有更多的改造自由度
约6.5米大横厅+大两房,亦或者全功能的三房两卫,均可随心切换
无论是作为个人资产、甜蜜婚房,还是三口小家,甚至于二孩家庭,都很合适。
面积约24平的主卧空间,更是直接媲美星级酒店套房
厨房外还连接了一个生活阳台,晾晒、收纳更加轻松
作为项目最小户型,总价也更具优势,但功能性却远胜市场同类产品,这无疑是年轻人一步到位的品质之选。
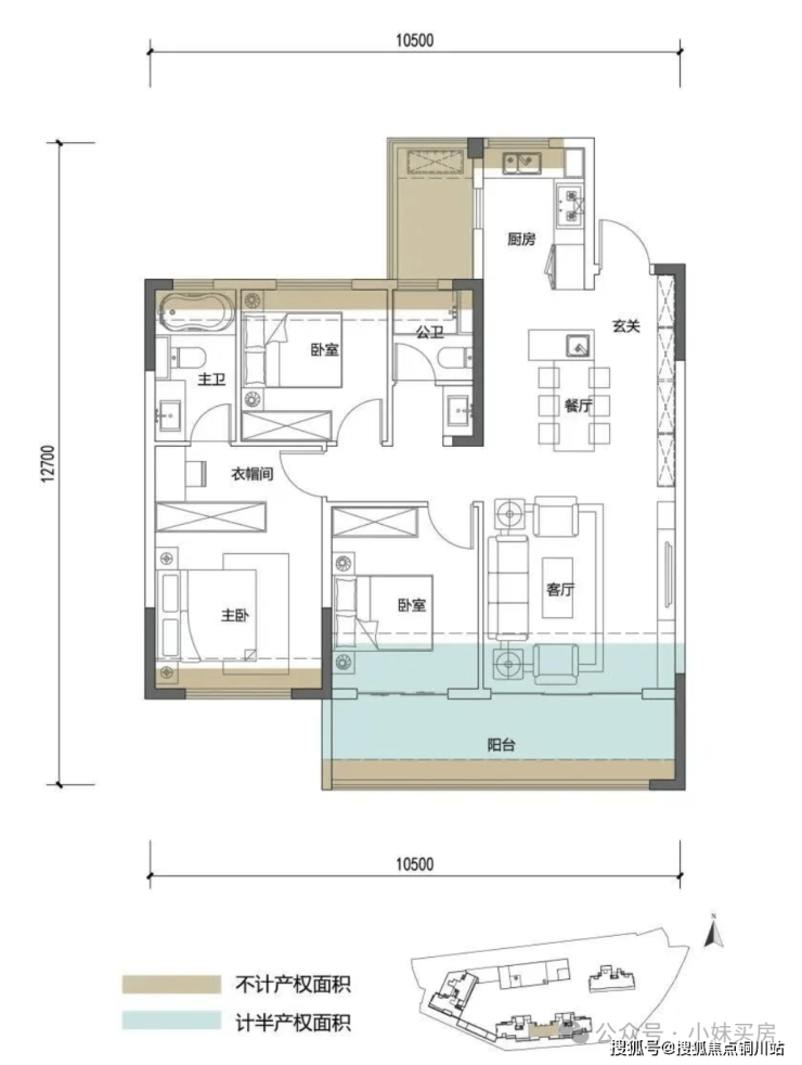
2号楼这套建面约108平的户型,更是现代精英群体的心头好

武汉汉阳城更花木深售楼处电话✅:400-116-7720转999
✅营销中心电话☎:400-116-7720转999【营销中心已认证】🥇🥇
武汉汉阳城更花木深售楼处电话✅:400-116-7720转999
声明:本文由入驻焦点开放平台的作者撰写,除焦点官方账号外,观点仅代表作者本人,不代表焦点立场。
