【太原万科悦都荟】售楼处电话→户型→地址→太原万科悦都荟最新价格→楼盘详情→最新销售动态

铜川楼市发布 2025-10-07 11:36:34
用手机看
扫描到手机,新闻随时看

扫一扫,用手机看文章
更加方便分享给朋友

太原万科悦都荟售楼处电话✅:400-116-7720转999 ✅太原万科悦都荟营销中心电话☎:400-116-7720转999【营销中心已认证】🥇🥇 太原万科悦都荟营销中心电话☎:400-116-7720转999【营销中心已认证】🥇🥇

太原万科悦都荟售楼处电话✅:400-116-7720转999

太原万科悦都荟营销中心电话☎:400-116-7720转999【营销中心已认证】🥇🥇

太原万科悦都荟营销中心电话☎:400-116-7720转999【营销中心已认证】🥇🥇

南站旁的万科悦都荟,今天加推18号楼,总高23层。户型有105平到125平,精装修,一万两千到一万三千左右。容积率低,楼间距大,楼栋南侧无遮挡,采光好,户型好。太师三附小,已经开学,地铁一号线已经运营,未来还有地铁三号线。考虑这个楼盘的朋友,抓紧时间约我看房,内部折扣更给力。新房无中介费和其他费用。

万科地产在太原开发了很多个项目,品质和口碑得到了业主们的广泛好评。南站旁,万科开发了万科城,翡翠东第,万科都荟,都是改善类型的品质楼盘。目前南站板块,万科在售的项目,只有万科悦都荟,而且,这次加推的是万科悦都荟最后一栋楼。

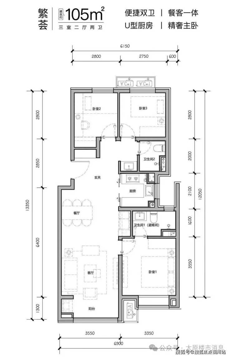
万科悦都荟,105平户型,设计为三室两厅两卫。南北大通透客厅和主卧朝南,两个卧室朝北。客厅开间3.55米,主卧12平米左右。厨房和主卧带的卫生间,有窗户。朝北两个卧室面积稍微小一些。因为南侧无遮挡,采光会很好。

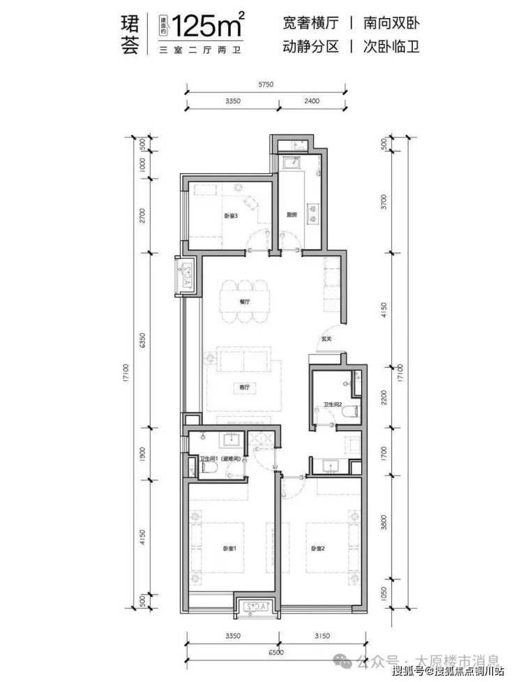
万科悦都荟,125平户型,三室两厅两卫设计。两个卧室朝南,客厅朝西,为大开间,达到了6.35米。朝南的两个卧室面积为14平米左右。餐客一体,动静分离。

万科开发,签约并配套了太师三附小,已经开学了。学校硬件条件好,教学口碑好,离家近。小区物业自持,物业服务排名第一,业主满意度和口碑都非常好。

太原已经交付了很多个万科小区,或者其他开发商,使用了万科物业,业主们对于万科物业的评价,都是很不错的。

太原万科悦都荟售楼处电话✅:400-116-7720转999

太原万科悦都荟营销中心电话☎:400-116-7720转999【营销中心已认证】🥇🥇

太原万科悦都荟营销中心电话☎:400-116-7720转999【营销中心已认证】🥇🥇

声明:本文由入驻焦点开放平台的作者撰写,除焦点官方账号外,观点仅代表作者本人,不代表焦点立场。