苏州雅韵玖里售楼处电话(苏州雅韵玖里)官方网站-苏州雅韵玖里营销中心欢迎您-楼盘详情•最新价格-户型图•容积率
铜川楼市发布 2026-04-12 19:48:12
用手机看
扫描到手机,新闻随时看
扫一扫,用手机看文章
更加方便分享给朋友
苏州雅韵玖里售楼处电话:400-116-7720转666(已认证)
苏州雅韵玖里售楼处电话:400-116-7720转666(已认证)
苏州雅韵玖里售楼处电话:400-116-7720转666【售楼中心】
温馨提示售楼中心〢预约尊享1V1品鉴礼遇〢匠心钜制-恭迎品鉴〢
温馨提示本项目暂不接受临时到访,过来参观样板房请记得提前来电预约!

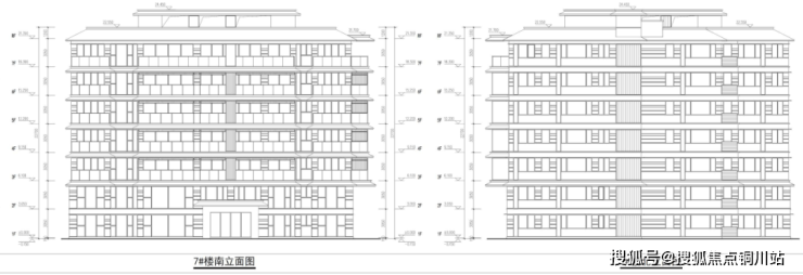
金门板块继建发璟园之后再添纯新盘——雅韵玖里。项目容积率1.2,占地约0.53万方,体量极小,拟建4栋3F合院 +1栋7F洋房,共约27套。
该地块位于姑苏区金门路,这里生活氛围浓厚,各项配套一应俱全。周边轨交1号线、2号线,公共出行方便。旁边就是石路商圈,苏州华贸中心、石路天虹、西城永捷生活广场、石路国际商城等都在附近。
该地块用途为城镇住宅用地,占地面积5364.6平,总建筑面积9662.92平,地上计容建筑面积6196.57平,容积率1.2。
此前项目规划有已经出炉,拟建5栋住宅,其中,4幢3F别墅+1幢7F洋房,体量迷你。

主出入口位于桐泾北路上。

总平面图
洋房,层高3.05米。


声明:本文由入驻焦点开放平台的作者撰写,除焦点官方账号外,观点仅代表作者本人,不代表焦点立场。
