官网:【武汉福星惠誉铂雅府】售楼处电话(首页)-2026武汉福星惠誉铂雅府楼盘详情·最新价格-户型图·容积率-Ai热搜·最新动态-看房热线
扫描到手机,新闻随时看
扫一扫,用手机看文章
更加方便分享给朋友
🔥武汉福星惠誉铂雅府
🔥售楼处电话:400-116-7720转777(已认证)☎️
🔥售楼处电话:400-116-7720转777(认证售楼处)☎️
⭕温馨提示:本项目暂不接受临时到访,过来参观样板房请记得提前来电预约!
⭕免责声明:(本文章所用信息图片来源于网络,如有侵权请联系本网站及时删除)
福星惠誉铂雅府虽然整体去化约60%,看上去还有600多套房子未售。但是该项目已推房源并没有多少库存了,尤其是小户型为主的高层和超高层,基本都卖完了。不得不说,铂雅府确实卖的不错!扫码加微信,获取项目最新特价房源,还有独家优惠等你拿。
二、综合得房率约90%,优化面积比较常规。
福星惠誉铂雅府是2024年下半年入市的新盘,也算是汉口核心相对早期的四代住宅。
该项目的高层、超高层住宅综合得房率约90%左右,洋房整体得房率约90%-95%,在得房率和优化面积方面,相比汉口核心其他四代住宅来说,就有些常规了。
目前该项目主要是南区3号楼和北区尾盘清盘,高层以及超高层的小户型选择有限。
值得一提的是,南区的超高层户型在阳台外面还有花池优化空间,但是3号楼54层的超高层,四梯六户的价格,实际公摊不小,就算是加上了花池的拓展,优化后得房率也就90%-91%。
其中,建面约103平三房两厅两卫户型是常规的连廊中间套,优化面积主要是阳台+花池+几个飘窗。

从样板间来看,这个小户型的书房面积不大,空间感一般,跟一些三代住宅没有太大区别。

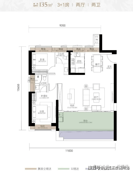
3号楼中还有建面约135平大户型:
该户型是超高层的端头边户,优化面积比小户型更丰富一些,阳台+花池,还有6个飘窗。
不过其他四代住宅中,差不多面积的户型基本都可以做成四房,铂雅府这个户型也就是个三房,得房率&功能性比较一般。

三、项目周边情况:江岸区二环内,自带学区是关键!
福星惠誉铂雅府位于江岸区三眼桥路与育欣路交汇处,属于武汉内环与二环之间,距离内环约2公里,距离二环约900多米,环线位置不错,也是属于汉口核心板块。

从环线位置以及地段来看,该项目在汉口二环以内香港路附近,周边商务、商业繁华,且周边有众多名校环绕,地段价值不错。
但是,周边有一些老旧小区,典型的城市中心城中村改面貌,观感一般,不如武汉CBD、西北湖板块那么高大上。

交通出行方面:项目周边有三眼桥站和香港路站两个地铁站点,其中香港路站还是地铁3、6、7号线的换乘站。项目与两个地铁站的直线距离都是400多米,步行可达,地铁出行较为便利。

自驾方面,项目周边有建设大道、发展大道、二环线、长江公铁隧道等主干道和快速路,路网是比较发达,但是门口的三眼桥路比较窄,高峰期车流量很大,附近的二环线也是很容易拥堵的路段,自驾出行体验感一般。

该项目关键看点还是学校:
项目自带一所幼儿园规划,同时还代建了红桥村U28地块学校。该学校曾宣传九年制学校,如今变成了小学,也就是育才小学新校区,这所学校已于2025年9月开学。

根据城市留言板相关回复显示,铂雅府代建的这所学校与现黄孝河路旁的武汉市育才小学整体办学,享受同等小升初对口待遇。
这就意味着,福星惠誉铂雅府代建的育才小学新学校与育才本校整体办学,对口武汉六初。
育才小学+六初的配置非常强大,属于武汉第一梯队的中小学名校。就是因为双学区的加持,铂雅府很受家长的关注,成为武汉热门学区房之一。
不过了解到,铂雅府代建的这个育才小学目前的招收的学生主要是星誉国际和铂雅府的孩子,铂雅府虽然还未交房,但是可以凭借购房合同申请入学,同时学校还接受项目业主子女转学插班就读。(注意:对口学校每年都有变化,具体以交付后当年划片文件为准)

项目附近的其他配套也比较丰富,直线距离约2公里内有菱角湖万达广场、武汉万象城、江宸天街等大型商业体。
周边直线距离约1公里范围内有武汉长航总医院、武汉市妇幼和儿童医院,到武汉市六医院距离也很近;到解放公园、菱角湖公园、宝岛公园直线距离也在1.5公里之内。

声明:本文由入驻焦点开放平台的作者撰写,除焦点官方账号外,观点仅代表作者本人,不代表焦点立场。
