(首页)苏州中海狮山云起_营销中心_中海狮山云起_售楼处电话_中海狮山云起最新房价_楼盘详情
扫描到手机,新闻随时看
扫一扫,用手机看文章
更加方便分享给朋友
苏州【中海狮山云起】售楼处电话:400-116-7720转接666(中介勿扰)
楼盘最新价格,户型图,地址,电话,样板房,周边配套,项目介绍
温馨提示:绝不收取任何费用,请提前1小时预约看房,以免带来不好的看房体验

中海狮山云起的建筑立面,是一眼惊艳的封面大片。
大面积的玻璃,超高窗墙比、充满艺术感的线条、高度对称,独有的东方美学——框景美学......打破传统,摒弃冗余,高级的质感,自然流动的空间,灵动的画面,将审美提升好几个Level,这是一次产品力的引领。
外立面关乎业主的面子,更关乎未来二手房的价值。
不光有高级的审美,还是我在苏州见过的“最有文化”的房子。
东方神韵园林景观的匠心打磨,让人心动;
怀着对这片土地的敬意,项目在景观设计上颇费心思。
项目以苏州四大园林之一的留园为蓝本,不规则的布局,呈现空间的序列感,将建筑、景观、艺术巧妙融合。
示意图,仅供参考
叠水、太湖石,甚至是层次丰富的景观植被等细节的元素和材质,未来在这里都是业主日常所见。中国人骨子里有着对传统文化的喜爱和执着,一山一水,一花草一树木,高低咸宜,错落有致。推窗见景,心境也不一样。
示意图,仅供参考
狮山3000年的文化底蕴,辅以花窗、宋锦、古琴、昆曲等七大世界级非遗为主题呈现的七幕园境,前所未见的景观、文化与生活意境。
示意图,仅供参考
这个项目带来创新的同时,还汲取了传统文化元素,拿出了一个教科书级别的高端改善产品,同时也是致敬苏州。
无会所,不豪宅。中海狮山云起的这个会客厅别具一格。汲取苏州西博的建筑美学灵感,并大面积运用了昂贵的石材。

示意图
在形态上,采用层层叠叠的立体浮雕装饰,神似海浪翻涌,石材的「硬」与水波的「柔」互为补充,形态中既有山的挺拔,亦有海的连绵,精神和文化通过建筑得到延伸。欣赏如艺术馆一般美学建筑,这样的视觉享受,未来在社区内就能享受到。
示意图
再加上下沉式庭院,实用与美观完美结合,这样一来,居住审美、生活品味与质感,全都有了。
分户式科技系统,舒适度再升级,太享受;
狮山云起搭载的空气源热泵科技系统,可以自由智控分户体验,实现温度、湿度、呼吸、舒居、洁净、智控等轻松实现6大自由。
示意图
突然发现,中海狮山云起,不仅是一座住宅,更是独一无二的精神家园,因为,它重新梳理了艺术、文化、科技与生活的关系。
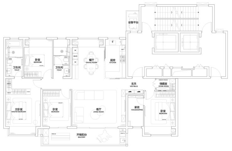
主力建面约153、183㎡的户型设计,是尺度感拉满的“深度改善”,满足高改人群对舒适生活空间的需求,精致、奢华、有格调...

建面约183㎡的户型,南向4+1开间朝南,跑道式的大阳台,拥有270°环幕观景面,景观视野无敌,尺度足够媲美200㎡+户型,深度改善级的舒适享受。
方正的LDKB一体化空间,半开放式中西双厨连接餐客厅,阔绰的家庭核心空间,妥妥的大宅空间体验。
体系收纳,定制空间美学。
独立玄关入户,定制打造储藏空间,配合收纳超多鞋子和随手更换的衣物,或是婴儿车、钓鱼杆等庞大杂物,统统可以规整起来,让生活始终保持井然有序。
不可思议的是,朝南还设置单独的家政间,洗衣机、烘干机、洗护收纳都轻松安放。另一角度,也卸下了南阳台的家政功能,将风景与美学还给开放的公区。
最为“碾压级”的尖叫点,莫过于度假酒店式的主卧套房,步入式衣帽间、四件套的奢华主卫,关键是270°转角飘窗,坐在窗前环视,如直面巨型的风景画,视野无比开阔,这么华丽的配置,苏州市面上很少见。
建面约153㎡四房两厅两卫

建面约153㎡大四房,布局是经典的四开间朝南,空间通透,功能性强。
270°环幕双联景观阳台,把大自然的景观尽收眼底,再加上多飘窗设计,几乎每个空间都被自然光宠溺,尺度和舒适感大大提升。
融合的一体化客餐厅空间,大大增强了家人间的互动。
行政套房式的主卧套房设计,步入式衣帽间,放得下漂亮的梳妆台,奢华主卫带大浴缸,还有飘窗,妥妥的五星级酒店标准。
装标方面,可剧透的信息不多,但足以彰显项目调性。比如厨房采用博世五件套,包括油烟机、燃气灶、洗碗机、蒸烤箱和嵌入式冰箱,水槽弗兰卡。卫浴用到了唯宝、汉斯格雅...
再加上可以自由控制每个房间的温度湿度等的分户式科技系统,告别空调吹风感,带来四季如春的温暖感受,保持皮肤水润,梅雨季也无惧潮湿...真正实现空间审美和舒适享受的居住体验。

示意图
在这里,买到的不只是一套房子,更是一整个圈层,改善的美好生活!
声明:本文由入驻焦点开放平台的作者撰写,除焦点官方账号外,观点仅代表作者本人,不代表焦点立场。
