【年度臻选好房】保利姑苏瑧悦售楼处发布——苏州【保利姑苏瑧悦】销售中心【最新楼盘百科】首页网站→价格详情→线上预约看房
扫描到手机,新闻随时看
扫一扫,用手机看文章
更加方便分享给朋友

古城,是苏州绝对核心
以城市发展的角度看,苏州的城市空间一直围绕古城作扩张,城建规划从“一体两翼”到今天的“一核四城”,都能看出,姑苏区的核心地位无可撼动。
它的政治、商业、人文、教育……都站在了城市的高地之上,生活价值更是毋庸置疑。
图片来源:苏州姑苏发布
说句人人所向,一点也不为过。
➤ 土地稀缺,3年才出一地
但姑苏区是全国首个也是唯一一个国家历史文化名城保护区,因为这种“政策保护”,导致姑苏区“轻于建设”,出让宅地数量少之又少,就拿去年全年的土拍来说,88宗宅地,姑苏区仅占其9,强化了姑苏的矜贵。
古城区更是宅地稀少、新房短缺,更遑论市府旁,这样的核心站位。
所以该板块内一度断供达3年之久,激发出旺盛的改善需求。
作为区域内为数不多的两个次新房,姑苏金茂府的业主普遍惜售,同文华庭被捧到5万+/㎡。
保利姑苏瑧悦,成了市场急需的出口。它东靠石路、观前,西邻寒山寺,北倚西园寺、留园,南邻苏州市政府,几乎把古城的精华,都浓缩在了这里,是无数高净值人群改善置换、回归姑苏核心的第一选择。

稀缺低密洋房!
重新定义姑苏人居顶流
也因为古城对建筑天际线及界面的限制要求,保利发展带来全新的定制化提案—保利姑苏瑧悦。
➤ 最低6F!容积率低至1.6!古城芯wei一洋房项目!
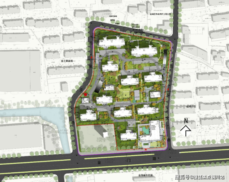
首先,保利姑苏瑧悦项目打造了最低6F、最高16F的低密社区,共计276户,容积率约1.6。

社区平面图
在苏州,洋房一直是稀缺的代名词,在新房市场里供不应求(2023年苏州市区洋房产品供求比仅为0.7),在二手房市场里有绝对议价权。
高楼常有,低密度大平层难得!最低6F真洋房,全城珍稀。
效果图
➤ 还原苏式园林场景!打造美学品质社区!
其次,项目进行在地化的考量,从当中能看到他对于项目、对于城市、对于买房人表达出来的诚意。
比如,项目的园林景观从《姑苏繁华图》中汲取精神,以苏州名园——艺圃为蓝本,递次铺排了松石望府、山水隐园、琉璃水院、云影雅亭、雅苑归境的游憩动线。一亭一阁、一山一水、一步一景,逛着这样的景致,如同在画中游。

示范区实景图
在项目古典园林景观中,我们还可以感受到开发商的诚意和巧思:
松石望府中的黑石,是团队远赴河北挑选,成本昂贵的日本黑松,需要几十年培植才能育成;
风雨连廊上的镂空莽水锦纹图案,源自古代帝王将相蟒袍上的祥纹,寓意尊贵;
园区中的御窑金砖取用了在地文化遗产,它可是古代皇宫的御用品;
入户大堂也不吝投入,墙面采用石材+金属线条,顶部为铝板材质,搭配发光云母石,光彩逼人。
曲径、亭台、长廊……让人住进了江南园林中。

示范区实景图
作为保利发展在苏州的首个「瑧悦系」产品,它将生活美学、产品品质,融到生活点滴中,展现的每一处都很打动人。
➤ 古城顶流圈层,拉升项目价值想象力
极致地段+极致产品,无形之中塑造了社区的圈层氛围。
一方面,项目周边企事业单位、政务机关单位扎堆,人群素质撑起整个姑苏头部,另一方面,洋房产品,本身就圈定了业主的出价能力。
现在就能预见,这里未来的业主:
可能是市府周边、老姑苏的置换升级;
可能是全苏州想同时满足地段、教育、景观等多元需求的高端改善;
格局再开放点,来自上海等地有姑苏情怀的高端客群,也会聚焦于它。
这样的保利姑苏瑧悦,未来势必会稳居古城核心单价第一档。
超高得房率!用高级的空间
定义真高端、真改善
为了延续高级的生活质感,项目仅规划276余席,做约143-180㎡纯大户产品,这就是坚持高端的魄力,也是产品的自信。
➤ 改善的关键不止在于尺度感,也要有享受感!
如今约160㎡和143㎡两个大平层实体样板间已公开,它给人的尺度感和功能性,对于区域内改善置换来说,不亚于是平地升舱。
洋房建面约160㎡,四室两厅三卫,宽面逼人。

「户型亮点」
●拥有约14.4米的南向面宽,配合大开间宽景阳台,推窗就是满园盛景。
●约6.95米超大横厅,和阳台等宽,带来超越数字限制的空间感,更是家人们其乐融融的共享空间。
样板间实景图
●再配上LDKB的活动公区,动线不再禁锢而单一,充满了自由活跃的气氛。
样板间实景图
●并且,还非常奢适的做了双套房设计,特别是每个房间开间都超过3.45米,诠释什么是真正的大尺度。
样板间实景图
●这个户型还有一大高超之处,就是几乎每一个功能间都带有飘窗,超大附送,得房率超出寻常,实际居住感受,堪比180㎡,激发生活品质的质变。
小高层建面约143㎡,四室两厅两卫,同样有大气度。

超大开间朝南、约8.2米观景阳台,约5米客厅,实现景观采光的更大化,而且对比市面上同面积段产品,能够拥有如此大尺度采光的真的是凤毛麟角!
LDKB一体设计,形成一个方正的家庭社交场域,增加公共空间的交互性,承载美好日常的同时,彰显生活品质。

样板间实景图
洋房建面约180㎡,四室两厅三卫,纯粹大平层。
●超大四开间朝南、约9米双开间阳台、约6米大宽厅,不论是空间还是尺度上都是气场全开;
●客厅与3个房间充分享受阳光;
●南向宽景阳台负责舒适休闲,北侧家政间负责生活功能,分工明确;
●开放式宽厅设计,为家庭增加更多活动空间;
●它还带独立家政间,多飘窗设计,居住体验豪横。

➤ 高定精装标准!给予生活日常应有的奢享高级感!
另外,品质呈现最为直观的装标方面,保利姑苏瑧悦也很出彩。
大金的中央空调、德国菲斯曼地暖、兰舍新风系统、卫浴配置了唯宝的马桶、高仪的花洒。厨房除油烟机、燃气灶基本配置外,还添置了洗碗机、蒸烤一体箱等家电,还有博洛尼整体橱柜直接交付、小区直饮水入户……档次、细节一个不落。

声明:本文由入驻焦点开放平台的作者撰写,除焦点官方账号外,观点仅代表作者本人,不代表焦点立场。
