苏州澜庭壹号院【售楼处】首页网站→ 苏州澜庭壹号院营销中心欢迎您-楼盘详情-最新价格-户型图-容积率@售楼处
扫描到手机,新闻随时看
扫一扫,用手机看文章
更加方便分享给朋友
苏州澜庭壹号院营销中心电话:☎️400-116-7720转999【营销中心
🌈温馨提示:拨打400电话,听到嘀声后,输入分机号999即可!

城市展厅(日航酒店)已经开放,入市在即
总共就205套房子,想抢占狮山稀缺墅质生活
得时刻准备着了
结合多方面原因,这必是今年狮山的王炸项目
一、双巨联手:绿城品质 + 苏高新“澜”系
绿城管理的精工细作
遇上苏高新“澜”系的高端血统
双重保障,品质无忧
想想绿城在狮山的逸庐(最高超7万秒光)
就知道这组合多硬核


二、超低密纯粹住区,容积率仅1.2
寸土寸金的狮山,这就是“奢侈品”
整个小区只规划了21栋住宅
由南向北从低到高排布,保证阳光:
17栋3F联排:
真正的狮山“绝版”资源
建面约265㎡/325㎡/370㎡
据说边户花园超大,二层挑空、三层带露台
总共才69套,稀缺性拉满

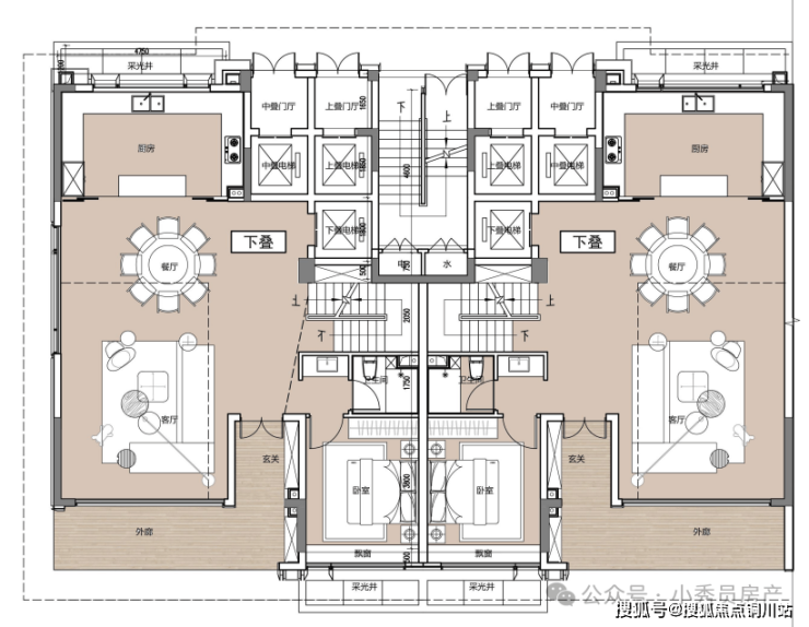
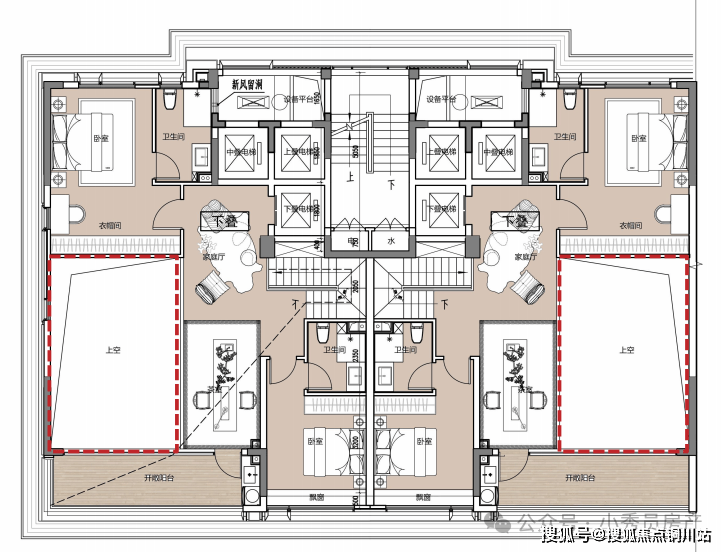
2栋6F叠墅:
建面约230㎡/245㎡/270㎡
下叠带私家庭院,客厅挑空+南向大阳台
关键每户都有独立入户电梯
不用爬楼!舒适满分。只有36套

↑叠加一层

↑叠加二层
2栋10F洋房:
主力建面135㎡,洋房不容小觑
135㎡做成了极致四叶草户型,南向三开间
阳台开间近7.8米,主卧套房开间3.7米
飘窗阳台赠送多,高得房率基本无空间浪费
仅100套,是板块内难得的小面积改善选择
三、狮山核心C位,配套成熟潜力大
交通超便利:
双地铁护体!靠近轨交1号线汾湖路站、5号线石城站(约500米),绿色出行无忧。自驾上中环西线、西环也方便。
商圈环抱:
美罗、泉屋、龙湖狮山天街、金鹰、绿宝、悠方... 坐个地铁几站就到,繁华生活举步即达。
名校云集:
苏州外国语学校(一路之隔)、新区一中、狮山实小竹园校区等优质教育资源环绕(注:具体学区以交付后划分为准)。

产业加持:
紧邻狮山商务创新区核心,华为苏研所、阿里创新中心等大牛企业汇聚的上市企业总部园就在旁边,高知人群聚集,区域发展后劲十足。
四、颜值爆表,会所加持
绿城的设计审美一直在线
项目延续现代新中式美学
横向舒展的几何线条
标志性的“官帽”东方屋檐
雅灰流金色调配大面积玻璃,高级感扑面而来
更惊喜的是,小区规划了下沉式庭院会所
据说配备泳池、健身房、私宴厅等,一步到位

苏州澜庭壹号院营销中心电话:☎️400-116-7720转999【营销中心
🌈温馨提示:拨打400电话,听到嘀声后,输入分机号999即可!
声明:本文由入驻焦点开放平台的作者撰写,除焦点官方账号外,观点仅代表作者本人,不代表焦点立场。
