武汉【恺德云麓营销中心】最新首页【武汉恺德云麓售楼处电话】房价_电话_户型_楼盘详情
扫描到手机,新闻随时看
扫一扫,用手机看文章
更加方便分享给朋友
武汉恺德云麓售楼处电话:400-116-7720转接666
恺德雲麓从武汉的气候、人居习惯等方面出发,因地制宜地进行了“多点进化”。
这种迭代,一方面体现在户型的进化,一方面则体现在立面审美、园林等品质方面的拔升,做到内外兼修。
我们先来看户型方面,除了前面提到的南北双阳台+双花池,并且花池可以封窗,颠覆性还体现在:
◑将第四代住宅奢享的体验门槛,拉回至建面约92㎡
在市场“改善化”的当下,第四代住宅多以120㎡的起步面积段“出道”。
对比起来,恺德雲麓这款建面约92㎡三房两厅两卫,可以说是相当罕有的第四代住宅入场券。
更别说,在惊艳的户型设计之下,高达约95%的使用率,使其空间感、功能性足以媲美市面上建面约120㎡的产品。

除了常规的飘窗全赠送,这款92㎡还进行了三大升级:
一是独享的入户前厅,可以作为玄关使用,增加实用性,又保护了居家的私密性。
二是,南向长约9.4米、最大进深约2.9米的阳台+花池,横跨客厅、次卧、主卧,通过拓展空间可以得到最大化利用。
比如主卧通过向阳台拉通,面积可以达到25㎡,在南侧打造一个书房都不在话下。
三是,南向次卧可与客厅打通,再加上阳台+花池的空间,实现更极致的大横厅。
因为空间足够开阔,玄关到客厅,可以打造满墙的收纳柜,放下上百本图书,或者摆上红酒、咖啡杯,热一壶咖啡,倒两杯红酒,工作、生活都可以随时切换。
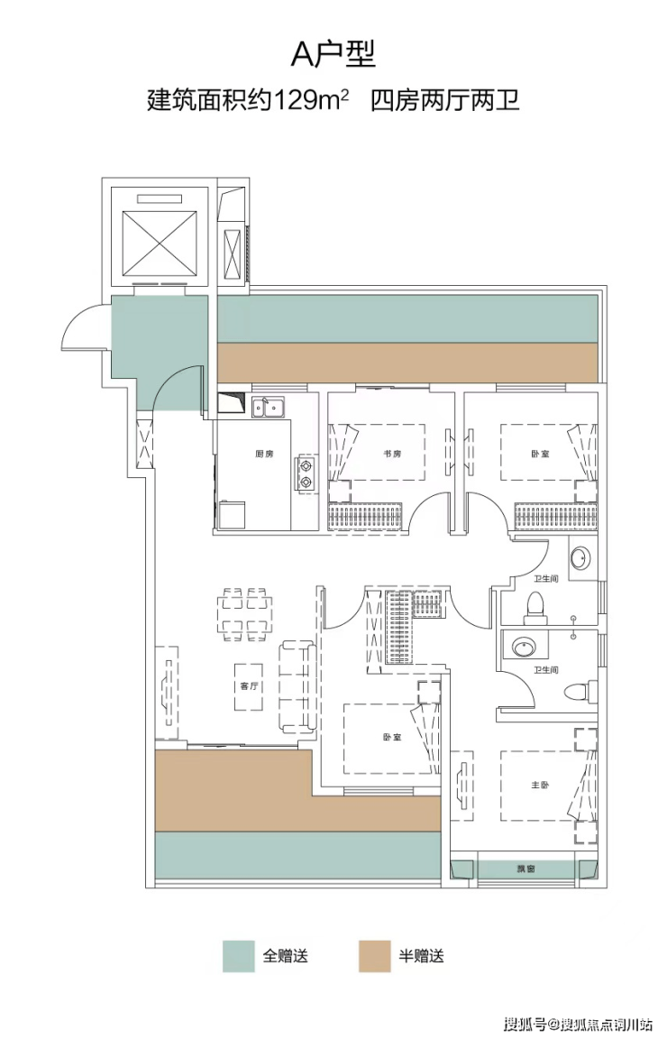
◑一梯一户,带来极致感官的约129㎡四代宅
一梯一户级配置,搭配私享入户前厅,南北双阳台+双花池+主卧飘窗,这款129㎡户型,实际使用面积相当于市面上170㎡的产品。

南北双阳台+双花池优化后,不仅北侧厨房可以拓展5㎡,打造成豪宅专属的中西双厨,还可自由增加岛台、品酒区等。
北侧的两个卧室,拓展后可增加约10㎡的面积,被赋予与主卧同等的重要性。
更特殊的点在于少梁化设计,可根据家庭的全生命周期需求,来灵活调整。
当家庭人员较少时,可以是三房+无界横厅的搭配,当家庭有新生命诞生,次卧也可以提供更灵活的弹性空间……
建面约129㎡,在其他楼盘身上是一个普通的改善;但在恺德雲麓,你拥有的是极致的改善。
不止如此,这种迭代的理念,一直延伸到外部,体现在小区品质上:
◑类公建化外立面+南北双阳台,带来立面美学的提升
传统的四代住宅,因为外露的露台打断了外立面线条设计的连续性,并且普遍缺乏隐私感、安全性。
而恺德雲麓通过巧妙采用类公建化外立面+南北双阳台的设置,进一步尊重隐私,整体提升居家采光度,更保证了颜值的统一性。
晶莹剔透的高反玻璃与香槟金铝板的搭配,为项目带来了更高级的质感,也颠覆了四代住宅的审美。

◑将10000㎡园林搬进第四代住宅
第四代住宅的出现,不仅是对建筑形态的改变,它的最终目标是实现人与自然的和谐统一。
正是从这个理念出发,在园林景观的打造上,恺德雲麓也是不遗余力。
重金邀请国内顶尖设计团队——山水比德创始人孙虎先生亲自操刀约10000㎡的园林。
整体园林造价更高达1300元/㎡,远远高于普通高层约300-700元/㎡的景观造价。
在大师的匠心下,最终带给我们的是——
一座奢华酒店式的园林大境,从曼谷湄南河四季酒店提取灵感,结合汉江湾自然文化,为业主们勾勒了一副“回家仿若度假”的生活场景。
踏入小区,林涧山水、美学雅卷、水瀑光院、光影林廊、梦幻花园五感场景层层递进,挑高约12米的主入口、立体的水景、曲径通幽的风雨连廊等依次跃然眼前。
归家的每一步,都是满满的仪式感。
同时,项目更是不惜手笔,就拿水瀑光院来说,精心挑选的绿色奢石与灵动的流水碰撞,淬炼出雅逸脱俗的观感。

更有功能强大的架空层泛会所,与园林景观融为一体。健身区、休闲共享区、儿童游乐区等,未来业主们可以一边跑步、看书、聊天,一边享受满目绿意的松弛感。

◑板块最低容积率,赢在起跑线
将更多的建筑让位给自然,本就是第四代住宅的出发点。
恺德雲麓作为整个板块最低密的项目,容积率仅约3.92,拥有最大楼间距约50米,首开的1号楼更是目前板块内唯一的高层。

这代表的不仅是稀有,更是居住舒适性的无限放大。
声明:本文由入驻焦点开放平台的作者撰写,除焦点官方账号外,观点仅代表作者本人,不代表焦点立场。
