武汉天创贝好家·元萃官方售楼处电话(武汉天创贝好家·元萃)官方网站-武汉天创贝好家·元萃营销中心欢迎您-楼盘详情•最新价格-户型图-容积率@2026售楼处
扫描到手机,新闻随时看
扫一扫,用手机看文章
更加方便分享给朋友
武汉天创贝好家·元萃
武汉天创贝好家·元萃售楼处电话:400-116-7720接通后输入888【售楼处中心电话】
温馨提示:拨打400电话,听到嘀声后,输入分机号888即可
匠心打造美学住区,品质标杆之作,恭迎实地品鉴!
武昌区二环内少有的低密社区,总高10-13层,都是小高层。
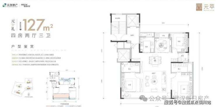
关于这个楼盘的户型面积最准确的是:127平,130平(比127稍微大一点,户型不同),然后是140平和170平。一共4种户型。
武汉贝好家的首秀
主打建面约127-170平户型,宣传得房率高达117%
天创元萃4栋住宅中,除了1-1#、3-1#为一梯一户布局之外,其余楼栋均为两梯两户布局,换句话说,项目所有房源都能实现专梯专户,拥有独立的电梯前室。
朝向上,天创元萃1、2号楼为偏东南朝向,3、4号楼则偏西南。
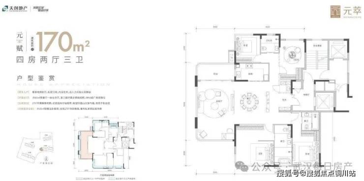
项目主打建面约127-170平户型,目前公示了三个户型图,分别是127、142、170平
建面约127平米户型
4栋楼中都有127平的户型,数量是目前已公示的三个户型中最多的,并且绝对面积不大,总价门槛会相对另外两个户型低一些,算是武昌下半年相对较少的小面积产品。
(武昌区目前有120平左右户型的项目目前仅有武昌源著、中海东湖玖章、建发璟玥、龙湖武车项目)
户型本身非常的方正,阳台外带花池,拓展面积就比较多,据宣传,加上电梯厅,这一户型优化后的得房率高达约117%,放在三环内四代宅里面来看,这个得房率绝对是数一数二的了。
127平做成了四房三卫双套房的设计,功能性超级强,三代同堂或者二胎家庭也非常适合;南向面宽12.7米,采光面也是比较充足的,缺点是有个套房内的洗手间为暗房,除此之外,其他方面都很不错。
建面约142平米户型
这一户型的得房率同样约117%,相当出彩。
分布于2、3、4号楼的端头边户,房源数量也还算相对较多的。
南向面宽约15.9米,南面同时实现双套房+大横厅,舒适度更高;
主卧套房面积约35平,空间相当的阔绰,并且采用了转角窗+曲线外立面,观景视野、光照效果都更好。
建面约170平米户型
这一户型优化后得房率约106%,略低于前两个户型,但放在核心区,依然是相当炸裂的存在。
同时,这也是项目最大面积户型,仅分布于2号楼最西端,房源数量是最少的。
客厅采用270度全景舱设计,非常适合观景的设计,并且南向主卧套房也采用了转角窗设计,观景面再次延伸,配合2号楼西头的位置,可三面俯瞰小区园林+南瞰市政公园,景观视野一绝。
缺点是房源相当稀少。
三个户型设计的都相当不错,并且106-117%的得房率在核心区属于no.1的存在,产品相当能打。
01
天创元萃。
10月7日,天创元萃武昌滨江双展厅开放,预示着该项目正式进入推广阶段。
据了解,该项目位于解放路与中山路交汇处,属于武昌内环滨江板块。
就建筑参数而言,该项目占地面积约11771.79㎡,计容建筑面积为23499.17㎡,其中住宅建筑面积 20856.92㎡。
02
天创元萃的开发商,不止天创。
天创元萃地块为湖北天创以34150万元,楼面价14531元/㎡,溢价率30.6%,
于5个月前拍得。
而一个月前,该项目公司发布公告称,贝好家入股了天创元萃30%股权。
换句话说,贝好家不仅参与了该项目的开发及运营决策,且属于控股股东的量级。
武汉贝好家的第一个项目,就这么不露声色的来了。
03
元萃不仅有天创的专业水平,更有贝壳的大数据加持。
这个时候,我们是不是该“高看一眼”元萃的产品,显然有研究的价值。
从目前已知的元萃的信息中,老秦梳理出了这样几个特点:
第一,毛坯。
顶豪必须精装,这个不用多说。
刚需及改善项目,精装、毛坯各有所长。
就总价的准入门槛而言,毛坯销售显然更有优势。
第二,低密。
2.0的容积率。
注意,元萃是一个没有别墅的盘,2.0的容积率,绝对是如假包换的低密。
说明,客户对于高容积率、超高层已经是深恶痛绝的。
三环外,60层的新力城,真的是殇。
直接的好处是,整个项目全是10—13层的小高层,这个在武昌内环滨江该有多稀缺。
第三,改善。
在武汉,武昌房价最高、武昌内环房价最最高、武昌内环滨江房价最最最高。
元萃所处的板块,明摆的房价就不会便宜。
就跟咱走进LV,您说买双袜子,这个真没有。
元萃户型为建面约127—170㎡,400万起的准入门槛,
改善产品,没跑了。
项目定位,稳准狠,
在什么地方,办什么事,玩得明白。
第四,体量较小、风险可控。
元萃就2万㎡,可售房源仅159套。
159套,按照汉阳金地、金茂的搞法,首开即清盘。
当然,那是刚需及首改项目,元萃属于再改及终改项目,价格高自然流速慢一些,
一年以内,卖个七七八八,问题不大,毕竟就159套房子。
专业房企能预见三个月以后的市场,专业卖房的贝壳还能预见三月以后的市场,
能预见半年后的市场走势,对于一个2万㎡的项目的风控而言,足矣。
04
2025年7月12日,贝好家成立两周年,
业已落地全国9城、14个项目。
其中,合作开发的房企有中海、招商蛇口、金茂、电建、越秀、绿城、滨江等全国及地方性头部房企。
北京长安华曦府、杭州沐兰台等已入市项目,均录得首开一炮而红的战绩。
这一次,元萃“一不小心”站上了全国的舞台,
这一战,成败不仅是武昌内环滨江的牌面,更是武汉楼市的脸面,
真正的为荣誉而战。
天创元萃西城壕项目分析
一、区域定位与地段优势
1. 项目板块
项目位于武昌内环滨江的南段,属于武昌古城板块,是武昌传统的富人区。
周边长江大桥、黄鹤楼等地标,江对面就是龟山电视塔,不出家门就可以领略武汉的秀丽风光。
对比周边的华发外滩玺、华发农讲所地块,天创西城壕的劣势在于不临江。
2. 交通配套
地铁:项目距离地铁5号线昙华林武胜门地铁站C口约100米。
自驾:项目周边就是武珞路,可以前往中南商圈、梦时代;途径长江大桥,可以前往汉阳和汉口核心。
二、配套分析
商业配套:项目所在板块是积玉桥,是武昌老城区,附近的粮道街吃的非常多,有不少还是网红店,昙华林也很近。但周边缺乏的大型商业体,万象城、楚河汉街、梦时代距离项目都有一定距离。
教育配套:根据拿地要求,地块规划新建住宅中适龄儿童入学对口中华路系小学。
项目的小学应该是对口旁边的中华路小学金都校区,初中预计对口粮道街中学积玉桥校区。项目周边的华发外滩玺,项目方说的也是对口粮道街中学积玉桥校区。

2021年,粮道街中学积玉桥校区普高率55%;2022年,普高率62.7%;2023年,普高率64.5%;2024年,普高率70.2%,示范率51.2%;2025年,普高率81%,示范率61.4%,这个成绩在整个武昌来说都是前列。
医疗配套:项目距离湖北省中医院(花园山院区)直线距离约700米,这是一所三甲医院。

休闲配套:项目周边有大堤口广场外滩公园,直线距离约340米,往前一点就是武昌江滩。

三、周边竞品和价格
目前,项目所处的区域,近年来什么新房入市。
最近的新房就是华发外滩玺,暂时还没有开盘,
二手房方面,金都汉宫于2009年交付,是区域内的第一豪宅。
目前二手成交价在2.63万/㎡。小区以大户型为主,最几个月成交的都是148、163、213、220㎡的房源,整体流通性不强
西壕城B地块紧挨华发外滩玺,但不能一线看江,景观资源差很多,楼面价却贵了781元/㎡。
武汉天创贝好家·元萃
武汉天创贝好家·元萃售楼处电话:400-116-7720接通后输入888【售楼处中心电话】
温馨提示:拨打400电话,听到嘀声后,输入分机号888即可
匠心打造美学住区,品质标杆之作,恭迎实地品鉴!
以上内容为官方发布!!!
声明:本文由入驻焦点开放平台的作者撰写,除焦点官方账号外,观点仅代表作者本人,不代表焦点立场。
