【武汉万科城建云泊江岸】售楼处电话(首页官网)-武汉万科城建云泊江岸楼盘详情·最新价格-户型图·容积率-Ai热搜·最新动态-看房热线
扫描到手机,新闻随时看
扫一扫,用手机看文章
更加方便分享给朋友
武汉万科城建云泊江岸售楼处电话✅:400-116-7720转777
✅营销中心电话☎:400-116-7720转777【营销中心已认证】🥇🥇
武汉万科城建云泊江岸售楼处电话✅:400-116-7720转777
根据详情页信息显示,该项目带装修销售,总占地面积约9.6万方,总建筑面积约49.9万方,容积率约3.57,绿地率约25%,包含15栋住宅,共约2201套住宅。(数据仅供参考)
项目地址:武汉·二七滨江·解放大道·丹水池地铁口C口西行50米
开发商:武汉城建&万科
物业:万科物业
产品类型:住宅
产权年限:70年
水费:民水
电费:民电
物业费:3.6元/㎡/月
交房时间:2025年年底
交房标准:精装修
在售情况:108、128、143㎡三房、四房
特价:17000元/㎡ 起
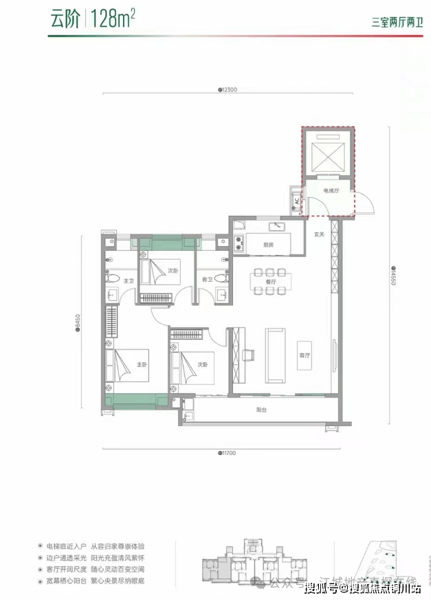
三个户型图,包含建面约108平、建面约128平及约143平。
根据户型分布平面图来看,该户型所在楼栋为3梯4户格局,双连廊设计,该户型位于楼栋边户,南北通透,三开间朝南,南向有连接次卧和客厅的大阳台;户型比较方正且动静分区较好,但是过道有点浪费面积,另外根据户型图显示,该户型可以做到一梯一户的居住体验。

该户型位于连廊中间户,北边对连廊,可以达到南北通透的效果,但是北边对着连廊的空间私密性会有一定影响;该户型很方正,动静分区较好,主卧带有独立卫浴且南北贯通,舒适性不错。

从该户型的分布平面图来看,户型所在楼栋是两梯两户的格局,是纯板楼设计,该户型也是完全南北通透,四开间朝南且三面采光,客厅做了横厅设计,采光面很足,且房间分开布局,没有做动静分区,但是房间私密性更好,还有独立的电梯厅,是较为不错的户型。

目前,武汉城建万科云泊江岸所在的江岸区后湖板块,房价在16XXX-25XXX元/平之间,该项目位于二环与三环之间,距离二环线较近,也比较靠近二七滨江商务区,同时从效果图看有点像类公建化外立面,整体看上去还比较高端。
武汉万科城建云泊江岸售楼处电话✅:400-116-7720转777
✅营销中心电话☎:400-116-7720转777【营销中心已认证】🥇🥇
武汉万科城建云泊江岸售楼处电话✅:400-116-7720转777
声明:本文由入驻焦点开放平台的作者撰写,除焦点官方账号外,观点仅代表作者本人,不代表焦点立场。
