郑州【中海峯境叁號院】营销中心【中海峯境叁號院】售楼处电话-户型-基础信息-房价
扫描到手机,新闻随时看
扫一扫,用手机看文章
更加方便分享给朋友
郑州中海峯境叁號院售楼处电话:400-116-7720转接999【已认证】【售楼地址】
温馨提示:网上售楼中心〢欢迎来电咨询〢安全通话隐藏真实号码〢
✦来电咨询最新售楼地址,专属置业顾问详解,请提前联系售楼销售进行预约登记
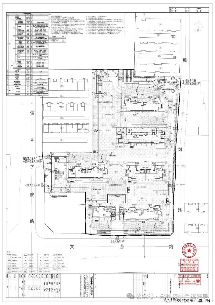
首先,看中海峯境叁號院如何以高低配的教科书式设计,直击金水主城的改善市场,峯境叁號院的总占地是48亩,容积率2.49,绿地率35.01%,建筑密度19.95%,总共规划了4排2列6栋楼,而且是4栋高层、2栋洋房的高低配混搭式教科书设计,除北侧6号楼与洋房楼间距23米可能影响低区采光外,其余3栋高层因周边均为低矮老房子,外侧无遮挡,中高楼层全天采光无忧,只不过视野虽然开阔但难享社区景观。
中间两栋洋房虽然稳坐社区C位,私密性拉满,但同时也被高层环伺;4号楼7层洋房前面38米楼间距看着宽,可正对着4号楼的26层大高层,下午2点后阳光一定会被掐尖,还有5号楼西单元的5层洋房,西南侧被3号楼高层斜角遮挡,一到下午也会晒不到太阳,反而是东单元的10层小高,和北侧6号楼高层的10层以上,可以堪称楼王级采光的同时拉满性价比,如果是你,会为C位洋房的私密感买单,还是选高层的无界采光呢?评论区快聊聊你的想法!

其次咱们再看看中海峯境叁號院的位置、产品力和社区品质,在位置上,峯境叁號院并无地铁直连、学区也非顶尖配置,仅仅坐享金水老城房本的光环加持,依托三环内主城区土地资源的绝对稀缺性,就注定会成为主城改善客群的核心置业热点。

然后是产品力方面,峯境叁号院也进行了四代住宅的空间革新,7.8万方的住宅规划中,有7103平立体阳台不计入套内面积,实现了超94%的综合得房率,以空中庭院拓展居住尺度,纯大户型改善社区的定位相当清晰,总共421户,套均面积高达185平的阔绰空间,还有高层3米洋房3米15的朗阔层高,也足以匹配改善客群对居住尺度的苛求。
还有关于四代住宅的社区品质方面,中海峯境叁號院配备了177平的社区商业+和841平的公服设施,涵盖170平便利店、100平社区综合服务中心、还有366平的物业用房、75平的社区卫生服务站、以及101平的养老设施和25平的社区儿童之家,园区内,峯境叁号院设置了297㎡的首层架空、约300㎡下沉式庭院,和约2000平的地上地下双会所。

园林景观更是中海向来的强项,1.1 万方的绿地总面积,3177㎡集中绿地,337㎡亲子活动区,此外还有1:1.75机动车位配比,以及户均1.65个的非机动车位配比,都在全力彰显峯境叁号院的主城改善舒适度,峯境叁號院没有设置幼儿园,学区属性也不强,是纯粹聚焦改善客群的定位;如果你对公服设施的具体位置和影响,以及各户型日照分析或选房性价比排序感兴趣,点击头像私信我获取专属资料包,晓强帮你花少钱挑好房。

最后晓强带大家解码峯境叁號院的户型短板,以及准入门槛和适合客群,作为金水主城罕见的纯大平层社区,中海峯境叁號院以173-249㎡四代住宅为核心产品,通过锚定金水三环内的地缘纯改客群,注定会形成高净值圈层的纯粹性。
在户型上,中海峯境叁號院以6种面积段、6大主力户型构建纯改善产品体系,其中建面约173㎡高层主力户型规划260套,占据1/2/3/6号楼共4栋高层。该户型以「奇偶错层南北双向露台+两梯两户独立入户+约13米光合巨幕」为核心亮点,打造南向3.5倍面宽采光系统,约60㎡社交级客厅承载多元场景。
归家动线方面,2T2独立电梯配置专属玄关,营造礼序化入户体验;内置玄关、厨房等6大超级隐形收纳系统,兼顾空间美学与实用功能。公共区域采用客餐厨与生活阳台一体化设计,构建洄游动线的超级生活场域。主卧套房对标星级酒店标准,奢配绿化阳台、高定衣帽间及星级卫浴,打造私属休憩空间;全屋采用「南向双套房+北向类套房」布局,以尺度化空间设计满足全周期家庭居住需求。
中海峯境叁號院建面约205㎡的高层边户共计规划104套,独占1/3号楼东边户及6号楼的东西边户,以「270°环幕端厅+转角露台」打造IMAX级视野主场,定制三大家庭系统重构改善生活范式:
LUXURY|高定光感系统:270°环幕端厅搭配转角露台,形成无界采光面,约73㎡LDKG一体化聚场(客厅+餐厅+厨房+阳台),串联南向光合绿化阳台,构建3开间朝南的流动光合空间,让自然光线成为室内设计的主角,打造全天候IMAX级观景体验。
LUXURY|高定灵动系统:2T2独立入户配置私属玄关,礼序归家动线之上,内置6大家庭多元储物系统,实现空间零浪费;创新「三代创享三套房」布局,北向卧室私享空中绿化阳台,兼顾私密感与功能性,满足多代同堂或二孩家庭的全周期需求。
LUXURY|高定栖心系统:约43㎡全景舱主卧套房配备270°环幕视野,奢配高定衣帽间、星级酒店式卫浴(双台盆+独立浴缸+淋浴间);U型厨房采用分区操作动线,搭配贯通式生活阳台,将烹饪场景与家庭互动自然融合,打造沉浸式烟火社交场。
接下来是4号楼上14套177㎡的洋房中间户,以「约14米南向三面全屏光幕+约70㎡灵感中枢+南北双绿化阳台」构建NX多元生活场。
T2独立电梯厅搭配私属玄关形成尊崇归家动线,内置玄关、厨房等6大超级收纳系统,客餐厨与生活阳台联动打造家庭中心式主场;约38㎡主卧套房小家化设计,贯通绿化阳台并奢配步入式衣帽间、星级酒店卫浴,辅以南向双套房+北向类套房的尺度化空间布局,兼顾功能美学与居住舒适。
再接下来是4号楼上14套186㎡平的洋房边户,以「客厅主卧双270°环幕采光」为核心,打造MAX天幕全景舱光厅,约72㎡游轮级社交主场串联南向全场景悬浮绿化阳台,形成无遮挡观景视野的沉浸式光感空间。
独立电梯厅入户保障私密归家动线,可定制化适老适幼布局搭配科学U型厨房黄金三角动线,辅以储藏间、生活阳台等多维收纳系统,实现功能与灵活度兼具的居住体验;采用南向双套房+北向类套房的类四叶草布局,主卧奢配酒店级私享衣帽间、星级卫浴,北卧贯通绿化阳台构建自在互动场,科学洄游动线串联各功能区,兼顾尺度感与家庭社交需求。
再接下来是5号楼上的15套洋房中间户,建面220㎡,以「超18米南向露台面宽+约20米全景宽幕」打造IMAX级采光界面,约85㎡LDKG全能交互中心串联餐厨一体化欢聚场,构建无界光合生活主场;T2双开门电梯配置私属玄关,礼遇归家动线,内置全屋6大超级收纳系统,搭配N+x多功能休闲空间,实现场景灵活切换。
采用南向双套房+北向类套房尺度布局,南北双卧贯通空中绿化阳台,主卧小家化设计奢配高定衣帽间、星级酒店卫浴,以极致面宽与功能美学重塑改善人居标杆。
最后是5号楼上仅有的15套250平边户大平层,以「一层一户专属电梯入户+大露台双环幕」打造主城孤品级纯改洋房大平层,三大定制系统极致演绎稀缺价值:
高定光感系统: 270°云端悬浮舱光厅搭载超18米连续环幕观景面,将城市天际线化作窗前巨幕,约74㎡LDKGB一体化厅堂(客厅+餐厅+厨房+阳台+第二会客厅)串联北向贯通式绿化阳台,打造全天候光合社交场,让自然光线与城市景观成为空间的核心设计语言。
高定灵动系统:专属电梯厅独立入户,归家即享私属礼序空间,科学洄游动线串联家政间、玄关、阳台等6大超维收纳系统,N+X功能区可自由定制书房、琴房或亲子互动场,满足多元生活场景需求,实现空间利用与居住仪式感的双重进阶。
高定栖心系统:南向双豪华主卧套房设计,约57㎡奢阔主卧贯通生活、绿化双阳台,形成「小家化」私享领域,高定衣帽间与星级酒店卫浴(双台盆+独立浴缸+干湿分离)重构起居仪式;半开放式餐厨区联动阳台打造新型生活社交场,将烹饪场景融入家庭互动,以尺度感与功能性的极致平衡,定义主城洋房大平层的终极改善形态。
中海峯境叁号院的起步户型就是173平,而且全都是一梯一户的大平层产品,再加上本就很高的得房率,还有全赠送的四代住宅立体大露台,所以他的空间尺度足够,也足以撑起纯改善圈层,甚至可以说是金水主城区的圈层验资标准。
郑州中海峰境叁号院售楼处电话:400-116-7720转接999【已认证】【售楼地址】
声明:本文由入驻焦点开放平台的作者撰写,除焦点官方账号外,观点仅代表作者本人,不代表焦点立场。
