郑州绿城锦棠天地项目售楼处电话丨2025郑州绿城锦棠天地项目预约电话/地址/户型
扫描到手机,新闻随时看
扫一扫,用手机看文章
更加方便分享给朋友
郑州绿城锦棠天地售楼处电话:400-116-7720转999「售楼中心认证」
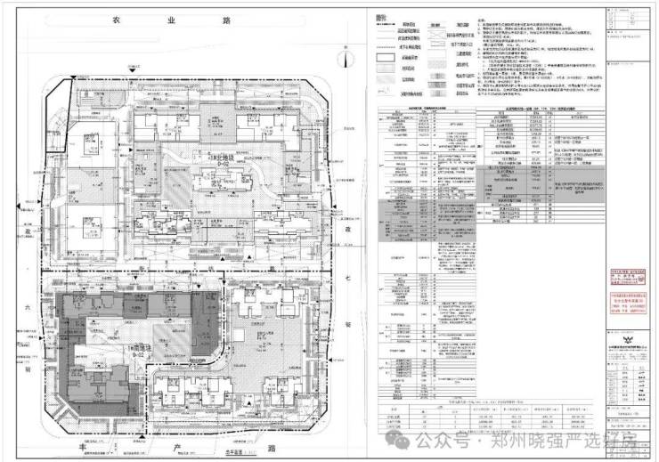
当然,有关低密采光方面的居住舒适度,也肯定就会离锦棠天地渐行渐远,北邻农业路高架,南边是单行道丰产路,东边的政七街和西侧政六街,也同样都是单行小道,锦棠天地总占地78亩,一共是5排3列14栋楼,分成了南北两个大地块以及4个小地块,自带7大商业裙楼和4栋公寓写字楼,在锦棠天地是真的可以实现,出家门逛商场,下电梯坐地铁的懒人生活。

然后咱们再来看看绿城锦棠天地在刚需定位下的居住配置,以及他的社区品质及产品力,作为典型的主城区商业驱动型住宅,绿城锦棠天地修改过控规以后,50万方总体量中的商业面积减少了1.6万方,商务办公面积则骤减至了13.84万方,对应的住宅总建面从原先的只有6.8万方,直接提升到17.6万方,这也是绿城之所以敢于入局关虎屯的主要原因吧,如果还按照原先的控规,去建商业和公寓写字楼的话,那不管谁来都只会是打着灯笼上厕所找屎去。
修改前控规
而即使修改过控规以后的锦棠天地呢,仍然无法做到四代住宅的立体阳台高赠送,综合得房率仅仅只能做到85%左右,再加上6.89容积率的话,也就意味着跟改善是绝对无缘的,在社区配套上,除了原有的270㎡便利店和268㎡社区综合服务中心之外,锦棠天地新增了210平的楼宇党组织用房,408平的养老设施,以及543平的架空层和116平的公厕,在北地块的住宅外侧还设置了一个下沉式广场,这些确实是锦棠天地进行的社区品质升级之处,不过1:11的机动车位配比和户均1.25的非机动车位配比,再加上仅有20.06%的绿地率和高达6.89的容积率,都证明了锦棠天地虽各项参数,均符合基础居住标准,但在空间尺度与配套丰富度上,都与当前好房子的改善诉求,存在着天壤之别。
修改后控规
接下来我们重点聊聊他的采光问题和选房攻略,绿城锦棠天地的住宅总户数是1339户,其中回迁房618户,二期361户,目前在售的一期则是360户,回迁房套均面积110平,北地块二期套均面积115平,而现在的一期套均面积却高达170平,再加上层高升级到了3米,一期增加了110平的架空层,所以确实具备了一定的改善属性,但锦棠天地真正的竞争力,仍然在于以商带住的逻辑,农业路国贸360的位置,让锦棠天地形成了住宅镶嵌在商业矩阵上的独特格局,所以锦棠天地会成为区域的商业地标,但住宅价值却值得重新衡量。
锦棠天地的北地块是4栋超高层的公寓写字楼+3栋3层高的商业裙楼,以及3栋33层的住宅组成,妥妥的城市综合体,南地块则是4栋商业裙楼+ 6栋住宅,而六栋住宅又分成了东西2个地块,东地块为原址回迁,西地块也就是目前准备预售的绿城锦棠天地一期,住宅总高32层,楼间距分别是33米和44米,客观的讲,除了11号楼33米的楼距以外,8号楼的44米楼距和12号楼的临路南侧无遮挡,锦棠天地一期的中高楼层采光还是够的,反倒是北侧未来的二期住宅,受到的采光影响会很大。
户型上,11号楼的采光是相对最差,户型也是最小的,两梯四户全是双卫三房,东边户135平,中间两户117平,西边户则大概率是端厅设计,12号楼是锦棠天地的最大败笔,一层六户两梯三户,虽然南边四户全是155平的双卫四房,但东北角和西北角,却硬塞了两套几乎见不到光的小户型,对南户北侧的采光和整体居住舒适度,也就造成了不可逆影响,至于剩下的8号楼王,则是44米楼距,两梯两户的225平双主卧三卫端厅大四房设计。
锦棠天地的户型都是早期的三代住宅主流设计,客厅开间与主卧面宽也均未达到当下的改善标准,且受限于85%左右的得房率,以及大高层和楼间距,锦棠天地已经背离了当下四代住宅的主流趋势;这也是他的主要诟病所在,空间利用率与场景适配性,远远落后于同面积段竞品。从价格来看,一万七八的价格还算符合地段溢价+产品短板的平衡,低于17000的话,主城芯地段价值也确实会凸显出性价比;但是如果突破18000,则一定要权衡户型过时与居住舒适度的牺牲,是否能匹配你可能并不需要的繁华主城位置,总之,锦棠天地虽然容积率高产品规划老,但胜在位置好到没话说,所以锦棠天地适合的精准客群,是需要依赖主城配套的便捷性,对户型创新又没高要求,愿意为老城步行生活圈,去牺牲居住品质的地缘刚改家庭,如果你需要更多绿城锦棠天地的相关数据,可以私信我了解详情。
虽然有绿城代建+万科物业的双重保障,还位于绝对繁华的金水二环内,但绿城锦棠天地对于追求品质的改善群体,仍然需要慎重对待,一定要警惕其高密度+传统户型与改善需求的错配;锦棠天地的核心竞争力在于不可复制的城芯地段+超体量的商业规划,其住宅产品力仍停留在刚需刚改水平。在主城芯的烟火气与性价比的博弈中,你是否会深陷其中?欢迎在评论区留下你的看法?郑州买房,关注晓强,17年房产人为你深度剖析每一个楼盘的核心价值与潜在风险,助力你在郑州的购房安全。另外我也把《2025年郑州四代住宅全盘点》和《郑州买房白皮书》置顶在了评论区,有需要的朋友们预约领取就好!
郑州绿城锦棠天地售楼处电话:400-116-7720转999「售楼中心认证」
声明:本文由入驻焦点开放平台的作者撰写,除焦点官方账号外,观点仅代表作者本人,不代表焦点立场。
