【官方最新发布】2026武汉城建万科云泊江岸售楼处电话丨武汉城建万科云泊江岸售楼部地址丨楼盘位置丨详情丨项目动态
扫描到手机,新闻随时看
扫一扫,用手机看文章
更加方便分享给朋友
武汉城建万科云泊江岸售楼处电话☎:400-116-7720转777【售楼处已认证】⭐⭐
✅本项目暂不接受临时到访,过来参观样板房请记得提前来电预约!⭐⭐
✅为您安排楼盘现场销售全程接待并讲解,给您更贴心的看房体验!⭐⭐
根据详情页信息显示,该项目预计带装修销售,总占地面积约9.6万方,总建筑面积约49.9万方,容积率约3.57,绿地率约25%,包含15栋住宅,共约2201套住宅。(数据仅供参考)

项目地址:武汉·二七滨江·解放大道·丹水池地铁口C口西行50米
开发商:武汉城建&万科
物业:万科物业
产品类型:住宅
产权年限:70年
水费:民水
电费:民电
物业费:3.6元/㎡/月
交房时间:2025年年底
交房标准:精装修
在售情况:108、128、143㎡三房、四房
特价:17000元/㎡ 起
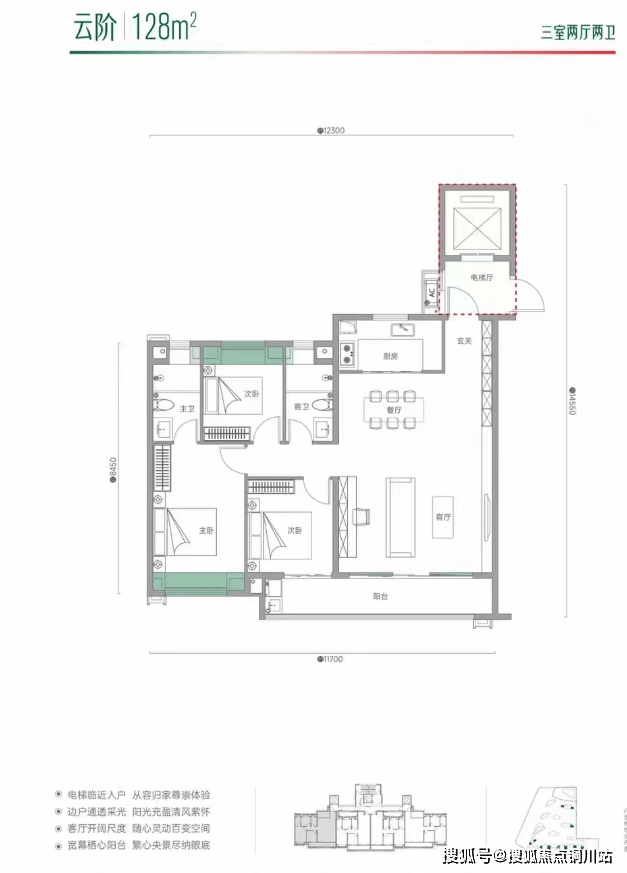
三个户型图,包含建面约108平、建面约128平及约143平。
根据户型分布平面图来看,该户型所在楼栋为3梯4户格局,双连廊设计,该户型位于楼栋边户,南北通透,三开间朝南,南向有连接次卧和客厅的大阳台;户型比较方正且动静分区较好,但是过道有点浪费面积,另外根据户型图显示,该户型可以做到一梯一户的居住体验。

该户型位于连廊中间户,北边对连廊,可以达到南北通透的效果,但是北边对着连廊的空间私密性会有一定影响;该户型很方正,动静分区较好,主卧带有独立卫浴且南北贯通,舒适性不错。

从该户型的分布平面图来看,户型所在楼栋是两梯两户的格局,是纯板楼设计,该户型也是完全南北通透,四开间朝南且三面采光,客厅做了横厅设计,采光面很足,且房间分开布局,没有做动静分区,但是房间私密性更好,还有独立的电梯厅,是较为不错的户型。

武汉城建万科云泊江岸售楼处电话☎:400-116-7720转777【售楼处已认证】⭐⭐
✅本项目暂不接受临时到访,过来参观样板房请记得提前来电预约!⭐⭐
✅为您安排楼盘现场销售全程接待并讲解,给您更贴心的看房体验!⭐⭐
声明:本文由入驻焦点开放平台的作者撰写,除焦点官方账号外,观点仅代表作者本人,不代表焦点立场。
