武汉【能建青誉府】售楼处电话【能建青誉府】售楼处预约咨询_房价_户型_楼盘详情
扫描到手机,新闻随时看
扫一扫,用手机看文章
更加方便分享给朋友
武汉能建青誉府售楼处电话☎️400-116-7720转接999(专人接听)
武汉能建青誉府营销中心电话:☎️400-116-7720转999【营销中心】
🌈温馨提示:拨打400电话,听到嘀声后,输入分机号999即可!

【爆款上新】
10#揽境楼座 即将热势上新 建面约100㎡/116㎡誉府美宅 全城竞藏
· 峯范头排 享醇熟生活圈
邻近主出入口,地铁/商圈/学校位置更便捷,兑现生活向往
· 视界延伸 收藏缤纷城景
对望C地块,拥揽青誉府盛景,楼下即是林荫会客区
· 阳光倾洒 奢华尺度近鉴
主朝向楼间距大,户户采光视野更宽阔
· 生活会晤 高阶生活答案
10#楼下即是康养主题誉CLUB泛会所 家楼下的生活场
· 纯粹邻里 难得奢居场域
两梯四户配置,赋予生活更多私密与高效
【品牌价值】
1、 世界500强央企,一流城市综合开发运营商
能建城发(中能建城市投资发展有限公司)母公司——中国能源建设集团,是由国务院国资委直接管理的特大型能源建设集团,连续10年进入世界500强,足迹遍布全球147个国家和地区。能建城发,前身为中国葛洲坝集团房地产开发有限公司,是国务院国资委首批确定以房地产为主业的16家央企之一。
2、府系生活专家 城市封面作品匠造者能建城发凝萃近20年精工匠诣之大成,升级打造誉府系产品;以严苛的择址观、具有前瞻性的产品观、富有国际视野的价值观,精筑城市高端人居,每一次亮相,都备受市场热捧!
北京中国府 邀请六位世界级大师分别操刀,以精铸品质致敬城市塔尖人群。

南京中宁府 2023年5开5罄,稳坐2023南京千万级豪宅销售榜单第一。

济南麓誉府 区域内罕有约1.01超低密洋房贵作,在济南书写“5开5罄”热销传奇。

三大誉府标尺 打造越于时代的新奢作品
【新奢择址观】非城心不落府武汉价值恒产,惟见长江两岸;武昌二环滨江,未来发展高地2017年,武汉长江主轴“世界级城市中轴文明景观带”规划确立,官宣“两江四岸”是武汉最具价值的核心地段;随着阿里巴巴华中总部、华润武昌万象城等超级项目落成,大武昌滨江商务区已进入加速兑现中;能建青誉府坐落于武昌二环滨江、和平大道城市主轴之上,不仅享受当下各种醇熟顶配资源,更享受大武昌滨江商务区未来价值的无限叠加。
【新奢生活观】越于城市的生活矩阵全维城市级配套,集萃理想生活愿景;5分钟步行生活圈,赋能人居品质🌟交通:城市级公路/地铁线路 千亿级城市基建配套❀武汉最有价值的二环线8分钟近达二七滨江,瞬息享受长江两岸繁华交通❀武汉12号地铁大环线串联7大行政区域,打造超越2号线的城市地铁主干道

🌟商业:城市级商圈叠加 纵享商业全维业态项目位于武昌滨江商圈封面,距武商城市奥莱仅约350米,6公里内串联6大核心商圈,购物、娱乐、餐饮等一应俱全。更自带约2800平开放式商街。涵盖综合体、mall、商业街等多种业态形式,自由选择日常消费体验。

🌟教育:目送式教育 12年优质教育护航吉林街小学本部(约300米),任家路中学本部(约30米),步行约5-8分钟可达。
同时小区规划自带一所9班制幼儿园,可实现12年目送式教育。目送式教育 12年优质教育护航

🌟生态:宜居颐养公园配套 慢享绿色生活
约1公里内四大公园,悠居生态大境,人均公园绿地面积超10㎡,口袋公园与社区南向出口合二为一.和平公园/青山江滩公园/科普公园/南干渠游园

🌟医疗:三大医院环绕 健康安心所系
三甲武汉普仁医院、华润武钢总医院、武汉市第九医院(直线距离约25m),其中武汉市第九医院约3分钟步行可达。

三大医疗配套在侧,可满足医疗体系中最重要的“急救黄金8分钟”,24h守护您家庭的健康生活。
🌟物业:红色五星级物业 做能为你负责的“贴心人”
能建青誉府的物业公司为葛洲坝物业管理有限公司武汉分公司,国家一级资质,积极创建党建特色品牌,被市委组织部、市房管局授予“红色物业五星级企业”。
【300米配套 100分生活】能建青誉府 完整社区样本的实践者
2024年能建青誉府引领人居升级,规划为武昌北二环打造完整社区样本,以超越15分钟生活圈的生活模式,升级完整人居体验。

【新奢产品观】越于当下的新奢产品
10大新奢产品主义 诠释奢质生活的时代答案
【奢于封面】宝格丽酒店风格设计 演绎国际化新奢美学
【奢于繁华】摩登商业 打造潮奢花园街区
【奢于门户】约1000㎡的鎏金门户 对标豪宅产品标准
【奢于礼序】“山、水、林”灵感 承启三重尊崇归家动线
【奢于细节】八大园林景观,山水比德匠心打造
【奢于材质】6米挑高 铝板奢装首层入户大堂
【奢于艺术】大理石砖面铺装 艺术馆级住宅公区
【奢于氛围】地下大堂星空吊顶 电梯直达归家
【奢于构想】儿童成长|运动健身|社交休憩 三大架空层泛会所
【奢于成长】0-12岁考量 约800㎡能量侠IP儿童乐园
新奢户型产品
建面约100㎡ 三室两厅两卫
新奢适主义之家二环稀缺三房两卫超配户型
约88%得房率|南向9.8m横宽|LDK一体化|套房式主卧
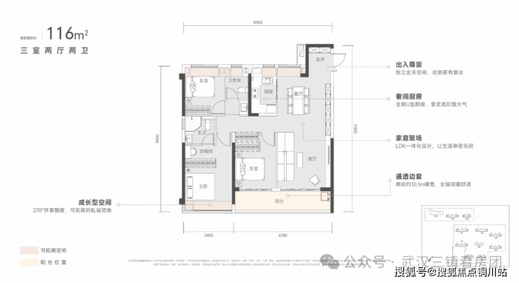
建面约116㎡三室两厅两卫
新奢想主义之家区域同面积稀缺边户三房
LDK横厅|10.1m南向面宽|5面飘窗|6.7米双联阳台

建面约135㎡ 四室两厅两卫
新奢华主义之家64席楼王藏品
约13.3m南向四开间|约6.9米双联阳台|度假酒店级主卧
声明:本文由入驻焦点开放平台的作者撰写,除焦点官方账号外,观点仅代表作者本人,不代表焦点立场。
