芜湖伟星樘樾官方售楼处首页-芜湖伟星樘樾售楼处电话-开盘时间-单价-户型-楼盘详情-周边环境-项目地址-配套学区
扫描到手机,新闻随时看
扫一扫,用手机看文章
更加方便分享给朋友
芜湖伟星樘樾售楼处电话:400-116-7720转666(已认证)
芜湖伟星樘樾开发商电话:400-116-7720转666【售楼中心】
温馨提示售楼中心〢预约尊享1V1品鉴礼遇〢匠心钜制-恭迎品鉴〢
温馨提示本项目暂不接受临时到访,过来参观样板房请记得提前来电预约!

为确保交付品质无忧,国庆小长假刚结束,由伟星客户服务中心牵头,联合工程、物业、营销等多部门以及工程总包及合作单位、监理单位负责人等组成的交付验收评估小组,对3#/23#楼开展全方位、系统性的品质自检。从公共区域到室内细节,从园林景观到归家动线,让细节经得起考验,为业主把好最后一道关。


⬆樘樾品质自检
建筑不只是物理的空间,更是生活的容器。此次交付的3#/23#楼,依托于2.0低密台地社区,推窗见绿、出门入园,浮游秘境园林的葱郁与宁静近在眼前。
下楼步行片刻,即可抵达多IP主题架空层、中央会客厅等多元场景,这里是孩子们的游乐天地,也是大人们的社交客厅,全龄化的生活场域让邻里温情自然生长。
⬆实景图
由外到内,真正让建筑焕发生机的,是其中一个个充满温度的家庭空间。此次交付的建面约101/124㎡户型,以精心打磨的空间设计,为不同家庭提供恰到好处的生活选择。
·建面约124㎡宽景三室
通过LDKB一体化设计,将客厅、餐厅、厨房、阳台融会贯通,打造无障碍家庭互动空间。约7.2米双开间阳台极大延展了生活场景,套房式主卧配备独立卫生间,保障主人的私密与尊贵,大三房空间布局轻松满足成长型家庭的多元需求。
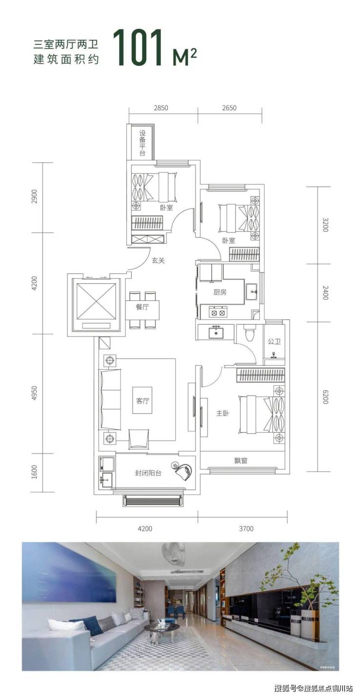
·建面约101㎡稀缺洋房
以南向三面宽布局,实现三开间朝南的采光优势,让阳光与清风成为家中的常客。经典大三房设计,在有限面积内创造出舒适的空间尺度,功能分区合理明晰,全明格局确保每个房间都拥有良好的采光通风,是高性价比的品质之选。
家的价值,不仅在于室内,也在于窗外。
伟星·樘樾择址政务核芯云从路伟星豪宅中轴,一路之隔云从路宜邻中心(即将开业),便捷日常生活;直线约600m人民公园二期(即将施工),生态绿意环绕;周边更多交通、商业、公园、教育、医疗等精粹资源聚合,划定繁华生活场域。选择樘樾,不仅是选择一处居所,更是选择一种被城市醇熟资源包围的从容生活。
生活的美好,始于交付,却不止于交付。3#/23#楼倾心交付,是樘樾践行“好房子”标准的又一步,也标志着项目实景生活版图的进一步成熟。值得期待的是,樘樾最后一栋建面约124㎡压轴新品热势加推中,以实景准现房姿态,为改善人群提供又一次珍藏机会。大成,已成,生活正暖,压轴新品席位有限,诚邀莅临现场,感受品质,同行未来。
声明:本文由入驻焦点开放平台的作者撰写,除焦点官方账号外,观点仅代表作者本人,不代表焦点立场。
