苏州鸿湖上售楼处电话-(2026苏州鸿湖上最新)楼盘详情-房价-户型-周边配套-交房时间-小区环境-苏州鸿湖上售楼处位置
扫描到手机,新闻随时看
扫一扫,用手机看文章
更加方便分享给朋友
苏州鸿湖上
苏州鸿湖上售楼处电话:400-116-7720转888(中介勿扰)
苏州鸿湖上售楼处电话:400-116-7720接通后输入888楼盘详情介绍,位置、小区环境、房价、周边商业配套、户型等楼盘详情;
预约咨询—提前联系咨询售楼中心置业顾问—进行预约登记来访!
城南又有新项目了!鸿湖上,即苏地2024-WG-Z17号地块项目最新批后公示了,这也意味着项目规划基本确定了!这也是龙湖东吴原著和东吴序之后,城南第三个将要面世的项目!


规划曝光!洋房+别墅
鸿湖上,即,苏地2024-WG-Z17号地块项目,位于吴中经开区城南街道白云街南侧、下田路西侧,是2024年10月11日,南通市鸿远置业有限公司以总价110086万元竞得,成交楼面价21698元/平,溢价率0.46%。


该项目的地块用途为城镇住宅用地,占地面积49739.6平,建筑面积90441.98平,计容建筑面积50734.39平,容积率1.02.
根据规划,项目拟建29栋3-9F住宅,其中,23栋3F合院,6栋9F洋房。

1,项目的容积率为1.02,这是纯低密的住宅社区;
2,项目的产品为合院、洋房;
3,项目的洋房为第四代住宅产品;
4,网传其代建为旭辉建管;

规划户型出炉
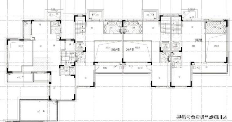
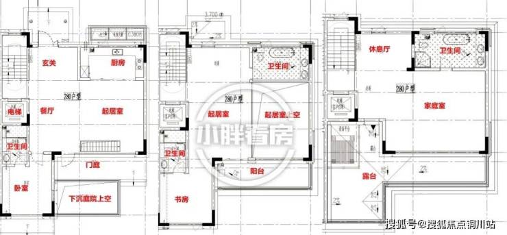
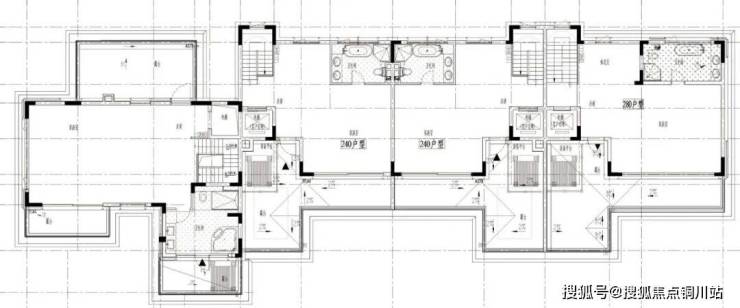
在本次公示中,鸿远置业吴中城南17号地块项目同样发布了合院的标准层户型,从公示来看,项目合院共计有3种面积段,分别是240平、260平和360平!
其合院外立面的材料分别为深灰银铝板、深灰色水泥瓦、金色压花金属板、石材、香槟金铝板和金色铝板!

1#
一层层高3.5米,二层、三层层高3.1米
240平

这个户型是中间两户,从平面图上来看,两个户型前面都是有院子的!
280平

这一户型在西边户,也是有独立院子的。
360平

这一户型是东边户,也是带有院子!




周边界面不错!一线临河
鸿远置业17号地块项目,位于吴中经开区城南街道白云街南侧、下田路西侧,属于吴中城南板块!
周边界面来看,也是比较成熟了。北面和东面是宝带桥-澹台湖景区,南面是河流,西面也是河流,隔河相望的也是住宅小区碧水湾花园。
周边配套来说,也是比较齐全的的。
交通上面,小区南面靠近地铁2号线宝带桥南路,往西1站就是石湖东路站,是2号线和4号线的换乘站点,往西2站是郭巷站,可以换乘7号线!整体来看,轨道交通出行是比较便利的!
自驾上面,小区附近有石湖东路、吴东快速路和东吴南路等主干道,日常出行也是比较便利的!

商业上面,小区周边也是板块top级别!
西面靠近龙湖东吴天街和海星生活广场,吃喝玩乐一站式补齐!西面还有万达广场,北面有丽丰购物中心!此外,周边还有吴中区公共文化中心和现代文体中心。
教育资源上,周边有碧波实验小学、碧波中学、苏州外国语学校(吴中校区)和苏苑中学新校区等。
苏州鸿湖上
苏州鸿湖上售楼处电话:400-116-7720转888(中介勿扰)
苏州鸿湖上售楼处电话:400-116-7720接通后输入888楼盘详情介绍,位置、小区环境、房价、周边商业配套、户型等楼盘详情;
预约咨询—提前联系咨询售楼中心置业顾问—进行预约登记来访
声明:本文由入驻焦点开放平台的作者撰写,除焦点官方账号外,观点仅代表作者本人,不代表焦点立场。
