郑州电建金桥华曦府售楼处电话_预约看房_郑州电建金桥华曦府楼盘详情-2025最新房价-项目户型图
扫描到手机,新闻随时看
扫一扫,用手机看文章
更加方便分享给朋友
🏡郑州电建金桥华曦府
🌈郑州电建金桥华曦府售楼处电话☎️400-116-7720转接777(专人接听)
🌈郑州电建金桥华曦府营销中心电话:☎️400-116-7720转777【营销中心】
🌈温馨提示:拨打400电话,听到嘀声后,输入分机号777即可!
这个位置的难得之处在于项目的北侧和东侧紧邻运河公园和西运河,两面环河,270度临水,站在楼上8000亩内湖一览无余,观景资源丰富。
特别是东边和北边的楼栋,预订了最佳观景位。

效果图
但尴尬的是,这里不算是南岸核心区,周边有冠景君悦湖、宏光揽境等小开发商项目,豪宅气息被拉低。
ONE52隔河对望的是保利珑熙(单价6.1w)和正商珑湖上境(单价5.3w)等豪宅;南侧龙湖内环路一路之隔是金茂如意府(单价4.6w)。
从单价上就能感受到,南岸核心区的魅力。

02
ONE52凭什么卖10万/㎡呢?
首先是配套,可圈可点。
项目西侧是郑东西亚斯外籍子女学校和河南省实验小学北龙湖校区;南侧约600米有地铁6/8号线小营站;临众意西路、朝阳路,出行非常便利;距离金融岛商业中心约1公里......
地块素质也不差。
项目占地92亩,限高24米,容积率<1.7,规划有23栋7层建筑,只有375户,机动车停车位1011个,标准层高3.35米,一楼和顶层为3.5米。

虽然拿地已经是第四个年头了,才刚拿预售证,但丝毫不耽误人家的进度,从目前的施工进度看,部分楼栋已经封顶。

在不缺低密度洋房的龙湖南岸,ONE52最大的亮点在于高颜值的外立面以及标新立异的规划设计。
产品面积267平起步,最大650平,单瞅这个面积段,绝对的顶级豪宅了。
通透性非常不错,房间内部几乎没有承重墙,只有四边有少量承重柱,可以从南向阳台一眼望穿北向次卧,外立面大量的落地窗。

从效果图来看,就像是一个大玻璃盒子。

这个是650㎡的楼王户型,非常具有代表性。
抛弃了传统的承重墙结构,仅靠14根承重立柱,保证了整体通透性,真正意义上的大平台产品。
这样设计也不无道理,毕竟项目想要点式建筑和全玻璃幕墙的立面。
只能说,是好是坏、见仁见智,至于体验感如何?还要自己去样板间自行感受。
此外,ONE52还是普利兹克得主在中原的首个作品。

03
关于该项目最大的质疑声无非是开发商。
毕竟很多人都知道关于此地块的那段前尘往事,之前闹得也是风风雨雨,大家的担心是可以理解的。
但是细扒下来会发现,现在确定性更强,因为背后是央企电建。
电建在北龙湖的布局不止如此,还有郑政东出〔2022〕5号(网)地,即电建金桥华曦府。
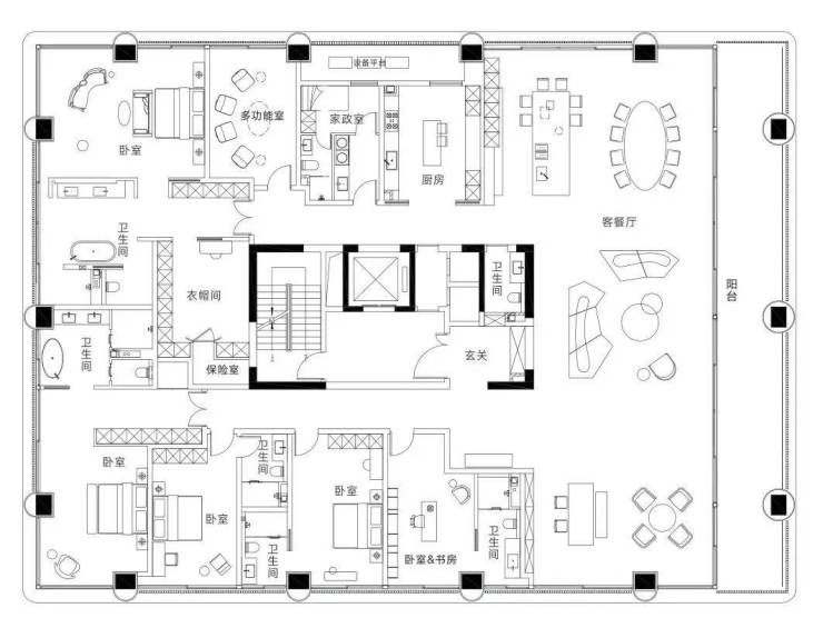
共占地约91亩,容积率2.49,规划有19栋9-16层小高层,其中1栋9层高、3栋13-14层高、15栋16层高、楼王10号楼设置有架空层。
规划总户数928户,机动车停车位1249个,非机动车停车位1487个。
该项目的设计单位为杭州绿城,公建化外立面,铝板+玻璃幕墙的结合,标准的绿城风格。

四个面积段:145-163-185-192㎡,都是四房户型。

143㎡和163 ㎡的占比多,主要分布在小区外围的楼栋上;185㎡和192㎡的主要分布在中间几栋楼王位置。

有意思的是,这个盘曾经入市过,后来就销声匿迹了。
🌈郑州电建金桥华曦府售楼处电话☎️400-116-7720转接777(专人接听)
🌈郑州电建金桥华曦府营销中心电话:☎️400-116-7720转777【营销中心】
声明:本文由入驻焦点开放平台的作者撰写,除焦点官方账号外,观点仅代表作者本人,不代表焦点立场。
