【官网发布】2026苏州澜庭壹号院售楼处电话丨苏州澜庭壹号院售楼部地址丨楼盘位置丨详情丨项目动态
扫描到手机,新闻随时看
扫一扫,用手机看文章
更加方便分享给朋友
苏州澜庭壹号院售楼处电话✅:400-116-7720转999
✅苏州澜庭壹号院营销中心电话☎:400-116-7720转999【营销中心已认证】🥇🥇
✨苏州澜庭壹号院售楼处电话✅:400-116-7720转999

全盘总计205套,又是“一把清”的节奏,效果图惊鸿一瞥!重点是,面积段总价段控制合理,不仅有狮山绝版联排,更有洋房小户型,预计要靠抢!




2、狮山绝版小洋房115㎡起!联排院子最大300㎡、上叠露台+下叠院子!带下沉式庭院会所
下面重点来看产品亮点。根据居居拿到的一手爆料——
洋房面积段115-135㎡,狮山绝版小洋房??
叠加230-275㎡,得房率超90%,客厅挑空,上叠送露台,下叠送院子;
联排最小也要260㎡+,最大370㎡,最大院子超300㎡,得房率相当逆天!!
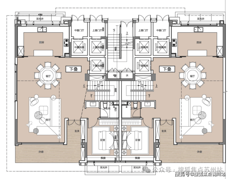
简单曝光几大户型。合院265㎡4房3厅4卫户型↓二层挑空、三层带露台,超高使用面积。

下叠一层平面图如下:南向面宽约10.3米。

下叠二层平面图如下:客厅挑空,得房率超90%。

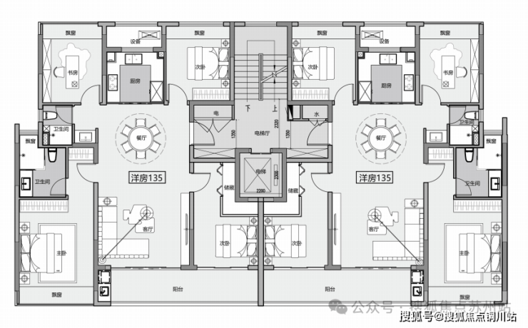
洋房135㎡3+1房2厅2卫户型图如下:
阳台开间约7.75米,南向开间约11.45米,主卧套房,开间3.7米。

苏州澜庭壹号院售楼处电话✅:400-116-7720转999
✅苏州澜庭壹号院营销中心电话☎:400-116-7720转999【营销中心已认证】🥇🥇
✨苏州澜庭壹号院售楼处电话✅:400-116-7720转999
声明:本文由入驻焦点开放平台的作者撰写,除焦点官方账号外,观点仅代表作者本人,不代表焦点立场。
